Chain-free family home with large garden and garage near Highcliffe schools.
Detached Tudor-style family house in quiet cul-de-sac
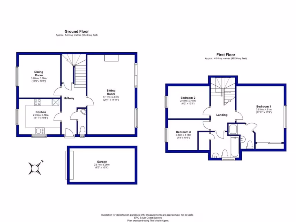
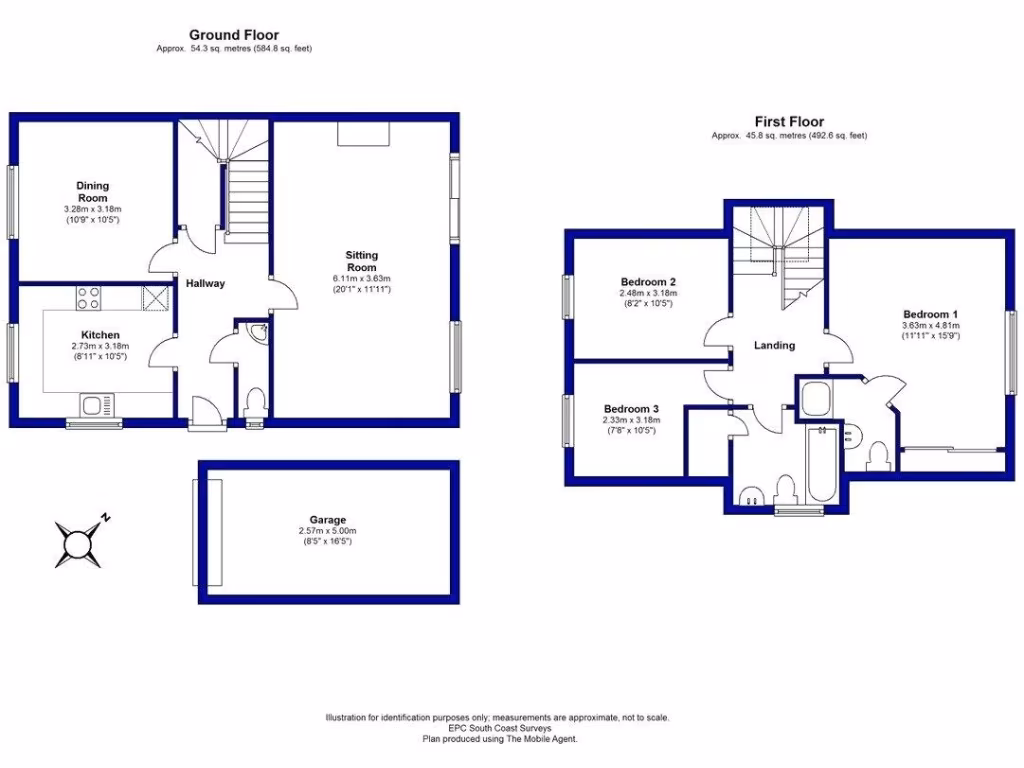
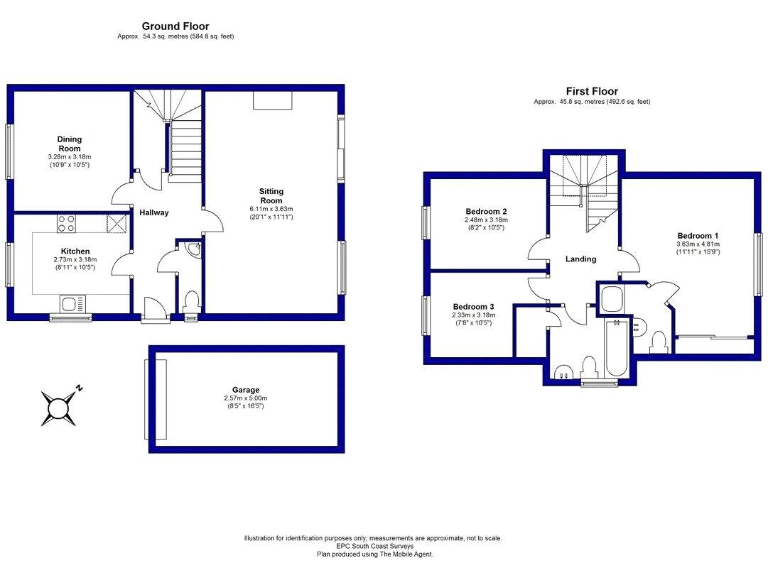
This detached Tudor-style home sits at the head of a quiet cul-de-sac and will suit a family seeking easy access to local schools, shops and the nearby cliff top and beach. The house is presented in good order with a new fitted kitchen, a bright lounge opening to the landscaped garden, and useful ground-floor reception space that can double as a playroom or home office.
There are three generous first-floor bedrooms served by two modern bathrooms, one en-suite, plus a fourth reception/bedroom on the ground floor — useful for guests or flexible family use. Practical features include a long driveway, detached garage, double glazing and mains gas central heating; EPC rating C.
Notable positives are the large private rear garden, off-road parking and location within the Highcliffe School catchment. The property is offered chain free and has fast broadband and low local crime levels, making it straightforward for families wanting to move quickly.
A few practical points to note: the overall internal floor area is around 1,100 sq ft, so rooms are comfortable rather than expansive. The house dates from the 1980s/90s rather than new build specification; while presented well, further modernisation is possible if a buyer prefers a different finish. School performance locally is mixed, with the nearby primary showing a lower Ofsted rating and the secondary rated Good.
4 bedroom detached house for sale in Winsford Close, Highcliffe, Christchurch, Dorset, BH23 — £725,000 • 4 bed • 2 bath • 1870 ft²
4 bedroom detached house for sale in Knightwood Close, Highcliffe, Dorset, BH23 — £775,000 • 4 bed • 2 bath • 2204 ft²
4 bedroom detached house for sale in Knightwood Close, Highcliffe On Sea, Christchurch, Dorset, BH23 — £775,000 • 4 bed • 2 bath • 1925 ft²
4 bedroom detached house for sale in Hinton Wood Avenue, Highcliffe On Sea, Christchurch, Dorset, BH23 — £1,100,000 • 4 bed • 2 bath • 2600 ft²
3 bedroom detached house for sale in Somerford Avenue, Christchurch, Dorset, BH23 — £425,000 • 3 bed • 2 bath • 1347 ft²
5 bedroom detached house for sale in Stuart Road, Highcliffe, Dorset, BH23 — £900,000 • 5 bed • 3 bath • 2201 ft²


































































