Spacious four-bedroom home near the New Forest — ideal for family living and woodland access.
- Detached four-bedroom family home in sought-after Sway cul-de-sac
- Private walled rear garden with patio and lawn, ‘secret garden’ character
- Garage in rear block; driveway parking for several vehicles
- Principal bedroom with en suite; useful ground-floor study
- EPC C (current 74) and mains gas central heating
- Double glazing installed before 2002; property built c.1976–82
- Council Tax Band F — relatively expensive
- Ultrafast broadband available; mobile signal average
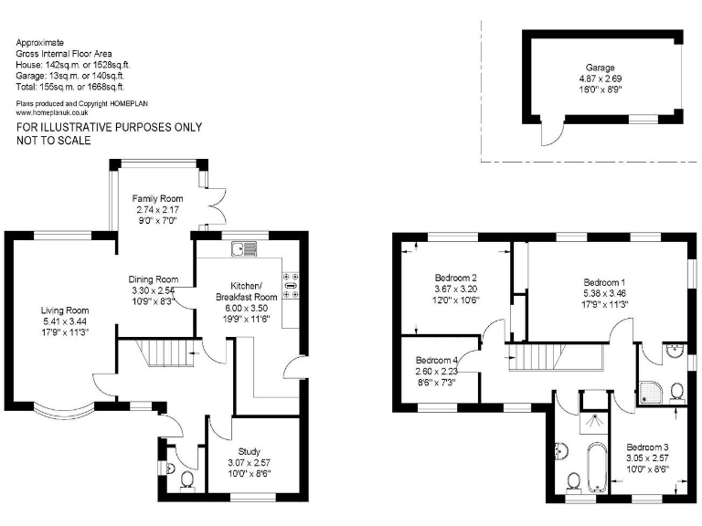
Set in a desirable Sway cul-de-sac within the New Forest National Park, this four-bedroom detached home suits family life and easy access to open forest walks. The layout is well configured: a bright sitting room with bay window, dining room with French doors to a private walled garden, kitchen/breakfast room with utility and a ground-floor study. Upstairs the principal bedroom benefits from an en suite and three further rooms share a modern family bathroom.
Practical strengths include a garage (located in a block at the rear), driveway parking, mains gas central heating, double glazing and a C-rated EPC. Fast ultrafast broadband is available and the village provides rail links to Southampton and London, strong primary schooling options and plentiful local recreation.
The house dates from the late 1970s–early 1980s, so while presented well there are a few pragmatic considerations: the double glazing was installed before 2002, and the garage is accessed from the rear block rather than directly from the driveway. Council Tax sits in Band F (noted as expensive). Buyers should note the ageing demographic profile of the area when considering long-term resale expectations.
Overall this is a comfortable, spacious family home in a very desirable rural-fringe location. It will appeal to families wanting space, good local schools and immediate access to the New Forest, and to buyers looking for a well-presented property with modest, straightforward maintenance rather than a major renovation project.
4 bedroom detached house for sale in Durrant Way, Sway, Lymington, SO41 — £765,000 • 4 bed • 1 bath • 1070 ft²
4 bedroom detached house for sale in Oakenbrow, Sway, Lymington, SO41 — £750,000 • 4 bed • 2 bath • 1489 ft²
4 bedroom link detached house for sale in Stanford Rise, Sway, Lymington, SO41 — £580,000 • 4 bed • 2 bath • 1042 ft²
4 bedroom detached house for sale in Manchester Road, Sway, Lymington, Hampshire, SO41 — £750,000 • 4 bed • 2 bath • 1571 ft²
3 bedroom detached house for sale in Bond Close, Sway, Lymington, SO41 — £680,000 • 3 bed • 1 bath • 1354 ft²
4 bedroom detached house for sale in Durrant Way, Sway, Lymington, SO41 — £875,000 • 4 bed • 3 bath • 2153 ft²














































































