Modern three-bedroom shared ownership with driveway, garden and EPC B — ideal first-time buyers.
42% shared ownership on a 122-year leasehold
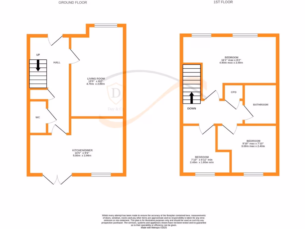
A modern three-bedroom semi detached home offered on a 42% shared ownership basis, designed for first-time buyers or small families seeking affordable entry to the market. Built in 2020, the property benefits from gas central heating, double glazing and an EPC B rating, which helps keep running costs reasonable. Practical features include an off-street driveway with an electric car charge point, pleasant enclosed rear garden and distant rear views.
Internally the layout is straightforward: entrance hall, downstairs WC, living room and a fitted dining kitchen with French doors to the garden. Upstairs are three bedrooms and a single bathroom with shower-over-bath. The house is compact at about 553 sq ft, so it suits buyers expecting efficient, easy-to-manage accommodation rather than large-family living.
Important considerations are factual: the sale is 42% shared ownership on a 122-year lease (leasehold), so buyers should budget for rent/top-up payments and service/management charges where applicable. The local area shows above-average crime statistics and is within a very deprived neighbourhood, which may affect resale prospects and should be weighed against the low purchase price.
This home is well placed for local primary schools rated Good and offers fast broadband and excellent mobile signal — practical benefits for working from home or family life. For a buyer wanting an affordable, low-maintenance modern home with parking and outdoor space, this presents a sensible starter option, though full ownership buyers should note tenure and area dynamics.
3 bedroom semi-detached house for sale in Cheval Way, Long Lee, Keighley, BD21 — £66,500 • 3 bed • 1 bath • 554 ft²
3 bedroom town house for sale in Halifax Road, Thornton Hills, Denholme, BD13 — £114,000 • 3 bed • 2 bath • 1033 ft²
2 bedroom house for sale in Brompton Drive, Bradford, BD10 — £152,750 • 2 bed • 1 bath • 646 ft²
2 bedroom semi-detached house for sale in Church Close, Apperley Bridge, BD10 — £115,000 • 2 bed • 1 bath • 717 ft²
3 bedroom town house for sale in Lisset Mews, East Morton, Keighley, West Yorkshire, BD20 — £90,000 • 3 bed • 2 bath • 1034 ft²
3 bedroom semi-detached house for sale in Crosley Wood Road,
Bingley,
BD16 4QE, BD16 — £96,800 • 3 bed • 1 bath


































































