Affordable shared-ownership home near green walks and local amenities.
65% shared ownership — £152,750 (full value £235,000)
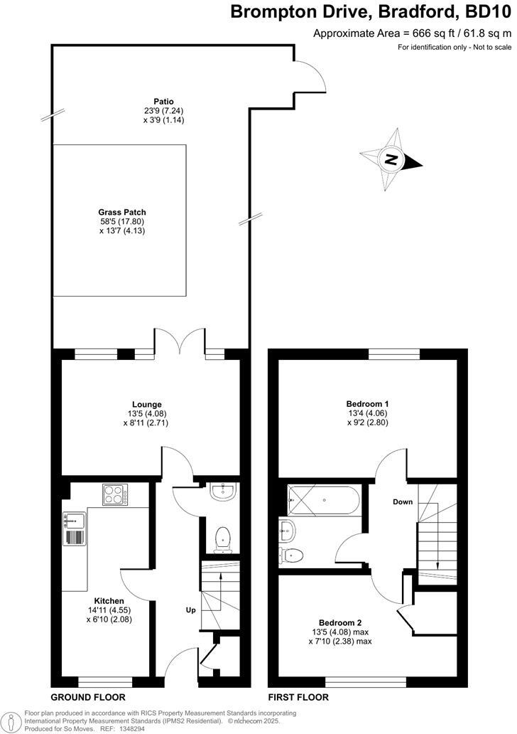
Open-plan living/dining with contemporary fitted kitchen
Two well-proportioned bedrooms, EPC B (good energy efficiency)
Private rear garden (small-to-average) and allocated off-street parking
Built 2018, modern low-maintenance terrace, approx 646–666 sq ft
Leasehold with c.119 years remaining; monthly rent £212.69
Monthly service charge £20.00 and lease management fee £25.43
Area has above-average crime rates; small plot size typical of estate
A bright, modern two-bedroom mid-terrace built in 2018, offered as a 65% shared ownership (£152,750 of a £235,000 RICS valuation). The open-plan living/dining room and contemporary fitted kitchen create a practical, low-maintenance layout across approximately 646–666 sq ft. The property benefits from a private rear garden and allocated off-street parking — useful extras for family life or renters.
The house sits on a quiet residential development close to canal-side and woodland walks, with good local amenities and schools within easy reach. Energy performance is strong (EPC band B), broadband and mobile signal are excellent, and the remaining lease term is healthy at around 119 years.
Important practical details: this is a leasehold shared ownership home with a monthly rent of £212.69, a service charge of £20.00pcm, and a lease management fee of £25.43pcm. Council tax is described as affordable. The area records above-average crime levels, and the rear garden and overall plot are modest in size — typical for modern terraces.
This property suits first-time buyers or young families seeking an affordable step on the housing ladder or buy-to-let investors wanting a low-maintenance asset. Buyers should be comfortable with shared-ownership terms and the ongoing monthly charges before proceeding.
4 bedroom terraced house for sale in Burnham Avenue, Bierley, Bradford, BD4 — £183,750 • 4 bed • 2 bath • 1065 ft²
2 bedroom ground floor flat for sale in Quarry Street, Bradford, West Yorkshire, BD9 — £52,500 • 2 bed • 1 bath • 604 ft²
2 bedroom flat for sale in May Tree Close, Bradford, West Yorkshire, BD14 — £40,000 • 2 bed • 1 bath • 605 ft²
2 bedroom terraced house for sale in Brompton Drive, Bradford, West Yorkshire, BD10 — £117,500 • 2 bed • 1 bath • 653 ft²
2 bedroom flat for sale in Quarry Street, Bradford, West Yorkshire, BD9 — £56,250 • 2 bed • 1 bath • 648 ft²
2 bedroom apartment for sale in Quarry Street, Bradford, BD9 — £52,500 • 2 bed • 1 bath • 549 ft²














































































