**Standout Features:**
- Beautifully converted stone barn in a peaceful hamlet
- Two double bedrooms with stylish shower room
- Immaculate open-plan living space with wood burning stove and underfloor heating
- Generous private gardens and allocated parking
- Close proximity to Padstow and the North Cornish coastline
- Eco-friendly features including solar hot water
**Summary:**
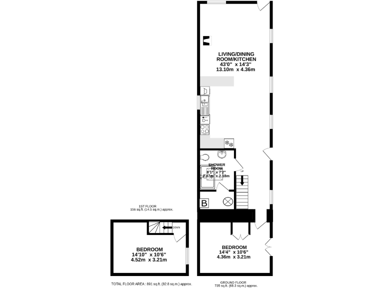
Discover a slice of Cornish tranquility at 1 Tredinnick Farm Barns, a meticulously renovated stone barn conversion located in the idyllic hamlet of Tredinnick. This inviting two-bedroom home boasts an open-plan living and kitchen area illuminated by charming large windows, showcasing breathtaking countryside views. The downstairs master bedroom provides direct access to a beautifully landscaped garden that surrounds the property, inviting outdoor relaxation. The eco-friendly features, such as solar hot water, reflect a modern sensibility within a traditional design. Ideal for families or as a lucrative holiday let, this property couples charm with practical benefits like allocated parking and ample storage in a former piggery outbuilding.
Located just a short drive from both the picturesque harbor town of Padstow and stunning local beaches, this barn offers not just a home but a lifestyle. Strong rental potential in a desirable tourist area makes it a compelling investment opportunity. Don’t miss your chance to own a piece of paradise tailored for comfort and elegance in the heart of Cornwall.
3 bedroom barn conversion for sale in 5 Trevibban Barton Barns, Nr Padstow, PL27 — £450,000 • 3 bed • 1 bath • 1089 ft²
7 bedroom barn conversion for sale in St Petrocs Barns, Nr Padstow, PL27 — £1,495,000 • 7 bed • 5 bath • 3174 ft²
4 bedroom barn conversion for sale in St. Issey, Wadebridge, Cornwall, PL27 — £1,350,000 • 4 bed • 3 bath • 2976 ft²
1 bedroom cottage for sale in St Issey, PL27 — £269,950 • 1 bed • 1 bath • 503 ft²
2 bedroom end of terrace house for sale in 1 Tregella Farm Cottages, Padstow, PL28 — £325,000 • 2 bed • 2 bath • 699 ft²
4 bedroom detached house for sale in Winnards Perch, St. Columb, TR9 — £825,000 • 4 bed • 4 bath • 2437 ft²










































































































