Energy-efficient one-bed cottage with parking and tiered patio near Padstow.
Detached one-bedroom barn conversion with character features
Set on the outskirts of St Issey, this detached one-bedroom barn conversion combines period character with recent energy-focused upgrades. The property has been newly improved with modern insulation and solar panels, lowering running costs while retaining exposed beams, wooden floors and a cosy multi-fuel stove. The layout suits single occupants or couples seeking a low-maintenance permanent home or a holiday base near Padstow and Wadebridge.
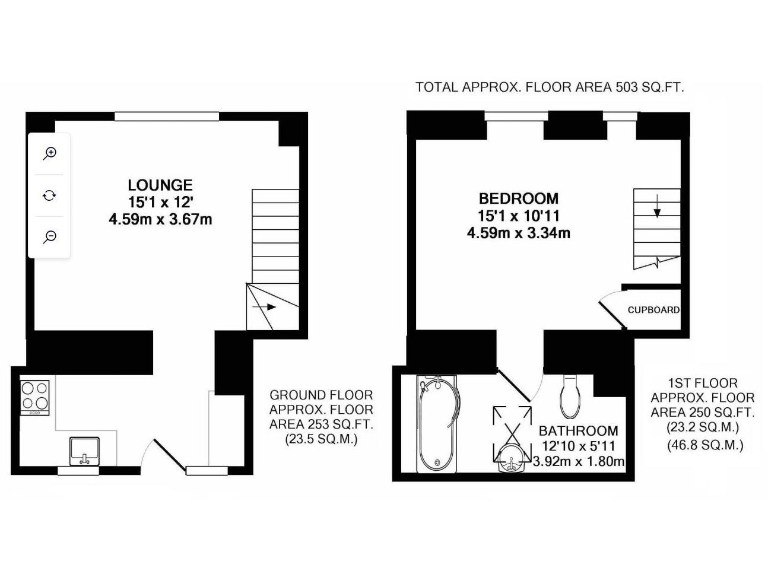
Internally the accommodation is compact but well planned: a cottage-style kitchen opens to a comfortable living room, and a vaulted double bedroom leads to a generous en-suite with a P-shaped jacuzzi bath and shower. Practical touches include built-in storage, UPVC double glazing and a slate hearth for the stove. Outside, a tiered patio garden provides three levels of outdoor space and a parking space sits to the side behind a Cornish stone wall.
Important practical facts: the house totals about 503 sq ft and has only one parking space, so it will suit buyers who accept compact living and limited vehicle parking. Broadband speeds are reported as very slow and mobile signal is average — factors to consider if you work from home. The property is freehold, council tax is very low, and there is no flood risk.
This barn presents a straightforward, characterful home with reduced energy running costs thanks to the solar panels and improved insulation. It will appeal to first-time buyers or those wanting a low-upkeep countryside retreat close to North Cornwall’s coastline, but buyers should be comfortable with the modest size and rural connectivity limitations.
2 bedroom barn conversion for sale in Tredinnick Farm Barn, Wadebridge, PL27 — £460,000 • 2 bed • 1 bath • 891 ft²
3 bedroom barn conversion for sale in 5 Trevibban Barton Barns, Nr Padstow, PL27 — £450,000 • 3 bed • 1 bath • 1089 ft²
1 bedroom barn conversion for sale in Trelights, Port Isaac, PL29 — £515,000 • 1 bed • 3 bath • 884 ft²
7 bedroom barn conversion for sale in St Petrocs Barns, Nr Padstow, PL27 — £1,495,000 • 7 bed • 5 bath • 3174 ft²
4 bedroom barn conversion for sale in Retire, Bodmin, PL30 — £625,000 • 4 bed • 2 bath • 1811 ft²
4 bedroom detached house for sale in Winnards Perch, St. Columb, TR9 — £825,000 • 4 bed • 4 bath • 2437 ft²


























































































