Four-bedroom detached home with large garden and new roof and windows, ideal for families.
Large corner plot with remote-controlled electric gates
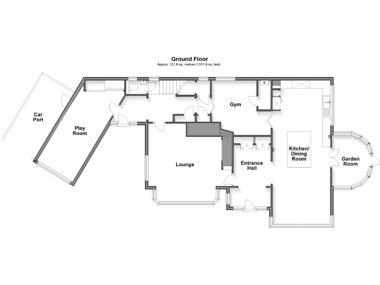
Set on a very large corner plot in Lympne, Tall Trees is a newly renovated four-bedroom detached family home built in the 1950s–60s. The heart of the house is a generous open-plan kitchen/dining room with a central island, complemented by a spacious lounge, large playroom and separate gym — layouts that suit family life and entertaining. Remote-controlled electric gates, off-street parking, carport and secure front and rear gardens give privacy and practical outdoor space for children.
Practical upgrades include a new roof and new windows fitted in 2024, and modern heating supplied by a mains-gas boiler and radiators. Bedroom 1 benefits from an en-suite shower and dressing area; the main bathroom has a large walk-in shower. The house is well placed for families: Lympne Church of England primary is within walking distance and a wider range of amenities and transport links are a short drive away towards Hythe and the M20.
Notable considerations: broadband speeds are very slow, which may affect home working or streaming. The property’s cavity walls are understood to have been built without insulation (assumed), so additional insulation work could be needed to improve energy efficiency. Council tax is described as expensive. Although recently renovated internally and externally, buyers should verify age and condition of other services, and check planning/consents for any past extensions.
This home will suit buyers seeking a spacious, family-friendly house in a quiet village setting with strong local schools and good road links. It offers immediate practical living space with clear potential to upgrade energy performance and digital connectivity to match modern needs.
4 bedroom detached house for sale in Stone Street, Lympne, Hythe, Kent, CT21 — £875,000 • 4 bed • 3 bath • 2422 ft²
4 bedroom detached house for sale in Manor Farm Close, Lympne, CT21 — £480,000 • 4 bed • 2 bath • 1281 ft²
5 bedroom detached house for sale in Stone Street, Lympne , CT21 — £525,000 • 5 bed • 2 bath • 2306 ft²
5 bedroom detached house for sale in Stone Street, Lympne, CT21 — £750,000 • 5 bed • 3 bath • 2369 ft²
5 bedroom detached house for sale in Octavian Drive, Lympne, CT21 — £499,999 • 5 bed • 2 bath • 1632 ft²
4 bedroom detached house for sale in Beacon Way, Lympne, Kent, CT21 — £525,000 • 4 bed • 2 bath • 1522 ft²










































































