Characterful dual-occupancy home with garden and countryside walks from the doorstep.
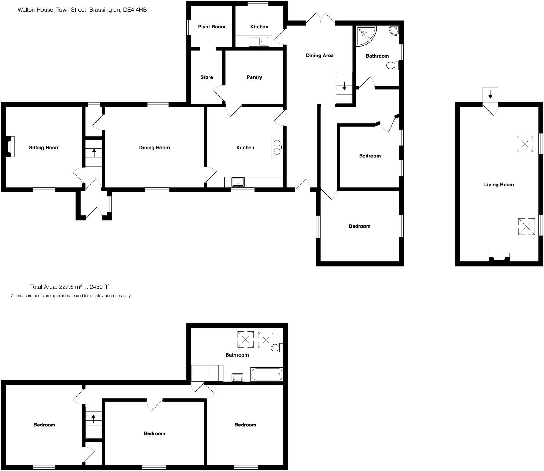
Stone-built main house plus adjoining two-bed cottage for flexible use
Five double bedrooms across two connected dwellings
Currently produces holiday-let potential; separate access to cottage
Private, secluded rear garden with raised lawn and stocked borders
Gated driveway provides off-street parking for two vehicles
Oil-fired central heating; buyers should note fuel costs
Council Tax band E; EPC currently TBC
No mobile phone signal in immediate area
A rare find in the heart of Brassington, this stone-built property combines original character with practical flexibility. The main house offers three double bedrooms, a bespoke breakfast kitchen and cosy reception rooms with exposed beams and working multi-fuel stoves. An adjoining, cleverly upgraded two-bedroom cottage provides independent accommodation currently used as a holiday let.
The pair can remain separate for income potential, provide independent space for relatives, or be opened up to create one substantial five-bedroom family home. Outside, a walled forecourt and a private, well-stocked rear garden sit behind a gated driveway with parking for two cars; the plot enjoys seclusion and attractive countryside surroundings.
Important practical points: heating is oil-fired, council tax is band E, and some rooms have restricted head height. Mobile phone signal is reported as none locally. The property is offered freehold with no upward chain, EPC pending — making it suitable for buyers wanting character, rental potential, or a project to tailor finishes.
4 bedroom house for sale in Well Street, Brassington, Matlock, Derbyshire, DE4 — £475,000 • 4 bed • 2 bath • 1429 ft²
2 bedroom detached house for sale in Church Street, Brassington, DE4 — £330,000 • 2 bed • 1 bath • 614 ft²
3 bedroom detached house for sale in East View, Town Street, Brassington, Derbyshire, DE4 — £489,950 • 3 bed • 2 bath • 1358 ft²
2 bedroom cottage for sale in Brassington, Matlock, DE4 — £180,000 • 2 bed • 1 bath • 1035 ft²
5 bedroom cottage for sale in Town Street, Brassington, Derbyshire DE4 4HB, DE4 — £575,000 • 5 bed • 2 bath • 2037 ft²
3 bedroom cottage for sale in Main Street, Birchover, Matlock, DE4 — £250,000 • 3 bed • 2 bath • 1217 ft²










































































































