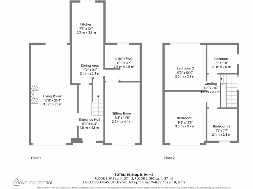
Spacious family home with flexible rooms and generous outdoor parking.
Cul-de-sac location in desirable Woolton area
Through lounge with sliding doors to rear garden
Substantial fitted kitchen plus utility/WC
Garage converted to bedroom/second reception (no garage)
Three bedrooms; potential fourth via flexible living space
Contemporary three-piece family bathroom only (single bathroom)
Large paved driveway with ample off-street parking
EPC D (61) with improvement potential to B (82)
This well-presented three-bedroom semi-detached house sits at the end of a peaceful cul-de-sac in desirable Woolton and offers comfortable family living over two floors. The layout includes a generous through lounge with sliding doors to the rear garden, a substantial fitted kitchen with French doors, and a useful utility/WC. A former garage has been converted to provide a ground-floor bedroom or a second reception room, giving flexible living space for a growing household.
Upstairs are two good-sized double bedrooms and a third single room, all finished to a neat standard, plus a contemporary three-piece bathroom. The property is freehold, sits on a decent plot with a manicured rear garden and a large paved driveway providing ample off-street parking — practical features for family life. Local amenities and several well-regarded primary and secondary schools are within easy reach.
Practical considerations: the home currently has an EPC of D (score 61) with scope to improve to band B (score 82) through insulation, heating or window upgrades. There is a single family bathroom only, and the garage conversion means there is no separate garage space. Overall, the house is ready to occupy but offers clear potential for modest energy and layout improvements to increase comfort and value.
3 bedroom semi-detached house for sale in Mackets Lane, Woolton, Liverpool, L25 — £375,000 • 3 bed • 2 bath • 1351 ft²
4 bedroom semi-detached house for sale in Budworth Drive, Woolton, Liverpool, L25 — £300,000 • 4 bed • 2 bath • 1192 ft²
3 bedroom detached house for sale in Cuckoo Close, Woolton, Liverpool, L25 — £415,000 • 3 bed • 1 bath • 1338 ft²
3 bedroom semi-detached house for sale in School Lane, Woolton, Liverpool, L25 — £385,000 • 3 bed • 2 bath • 1258 ft²
3 bedroom semi-detached house for sale in Manor Crescent, Woolton, Liverpool, L25 — £385,000 • 3 bed • 1 bath • 992 ft²
3 bedroom semi-detached house for sale in Millcroft Road, Liverpool, Merseyside, L25 — £260,000 • 3 bed • 2 bath • 1105 ft²


























































































