Ground-floor 2-bed retirement flat with private patio and sea views.
Ground-floor retirement flat with direct shoreline patio access
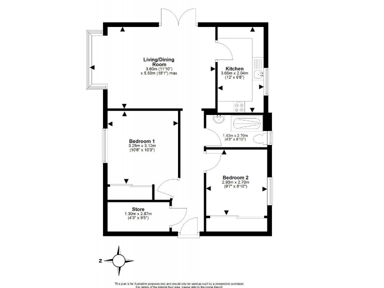
A rare ground-floor retirement flat positioned directly on the shoreline, designed for easy, low-maintenance coastal living. Patio doors from the open-plan living/dining room open onto a private paved patio with uninterrupted views over the Firth of Forth — a genuine standout feature that brings the sea into daily life. The development is for residents aged 55+ and is freehold.
Internally the flat is compact but well laid out: a modern white high-gloss kitchen, contemporary white shower room suite, two well-proportioned bedrooms and a useful store room. Neutral finishes and fast broadband make the property move-in ready for most buyers or suitable for a holiday let. Mobile signal is excellent and council tax is described as affordable.
Practical considerations are straightforward: the overall footprint is small (approximately 569 sq ft) and the second bedroom is the smaller of the two — space is efficient rather than generous. The development charges are around £900 per annum (paid quarterly), and while communal outdoor areas and a shoreline patio give excellent amenity, external garden space is modest. The wider area is classified as very deprived, which may affect local services and long-term value trends.
This flat will suit downsizers or retirees seeking a seaside lifestyle with minimal upkeep, people wanting a coastal second home, or investors targeting holiday or long-term let markets. Early viewing is advisable to appreciate the uninterrupted sea outlook and the privacy of the ground-floor patio.
2 bedroom retirement property for sale in 53 Bellevue Court, Queens Road, Dunbar, EH42 1YR, EH42 — £255,000 • 2 bed • 2 bath • 990 ft²
2 bedroom flat for sale in 4 Roxburghe Lodge Wynd, Dunbar, EH42 1LP, EH42 — £230,000 • 2 bed • 2 bath • 732 ft²
2 bedroom retirement property for sale in 83 High Street, Tigh Mhor, North Berwick, EH39 4HD, EH39 — £190,000 • 2 bed • 1 bath • 657 ft²
1 bedroom retirement property for sale in 19 Bellevue Court, Queens Road, Dunbar, EH42 1YR, EH42 — £150,000 • 1 bed • 1 bath • 517 ft²
1 bedroom retirement property for sale in 34 Bellevue Court, Queens Road, Dunbar, EH42 1YR, EH42 — £150,000 • 1 bed • 1 bath • 527 ft²
2 bedroom flat for sale in Roxburghe Lodge Wynd, Dunbar, EH42 — £230,000 • 2 bed • 2 bath • 722 ft²






































































