Compact, well-located home ideal for first-time buyers or modest investors.
Freehold three-bedroom semi-detached with no onward chain
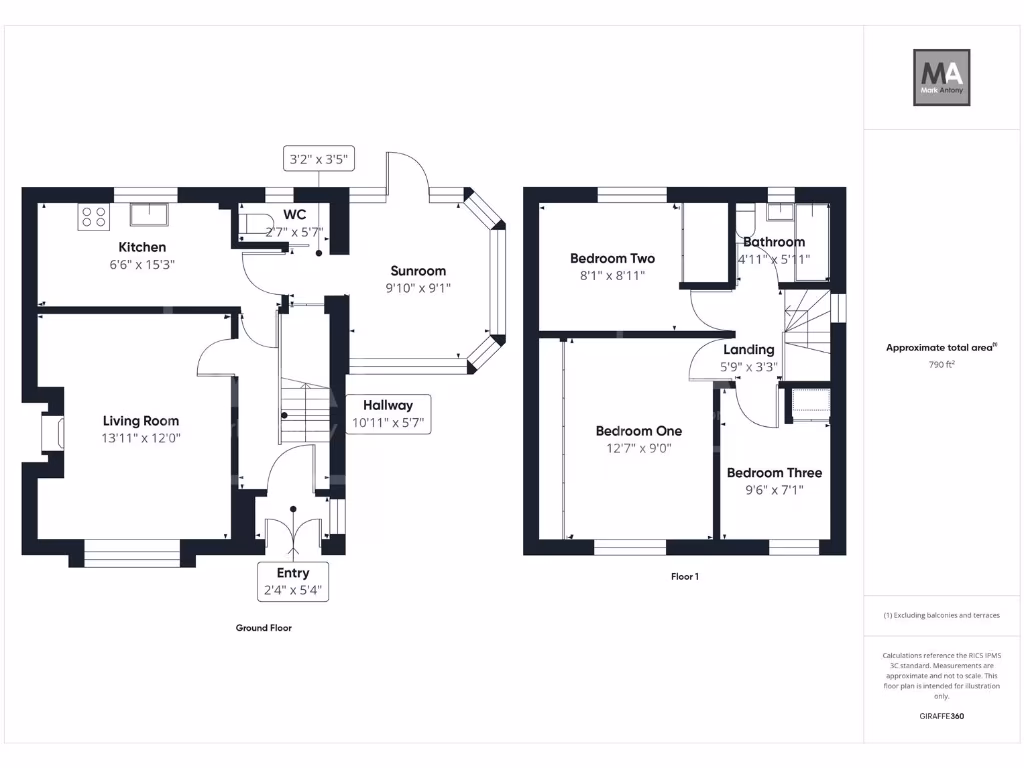
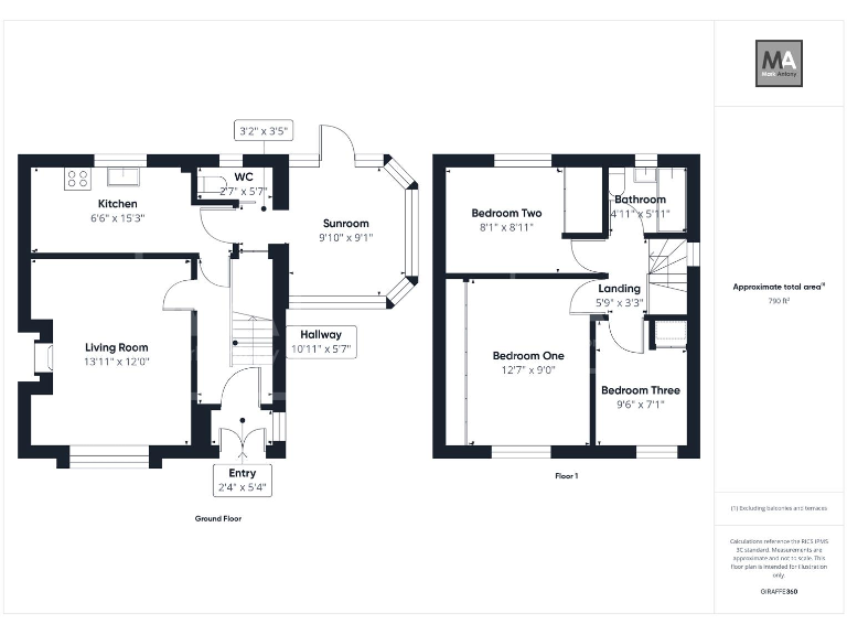
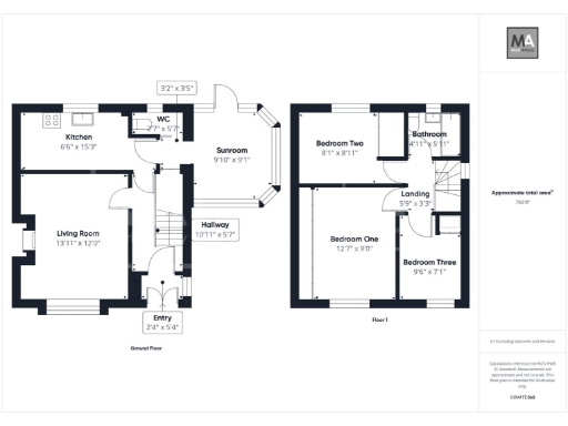
This three-bedroom semi-detached home on Bridgewater Avenue offers an affordable entry into Warrington with no onward chain and freehold title. The house is compact but practical, featuring a light living room with fireplace, a fitted kitchen, downstairs WC and a conservatory that opens to a private rear garden. A driveway and garage add valuable off-street parking and storage.
Set close to Victoria Park and local shops, the property benefits from fast broadband, good mobile signal and convenient transport links including quick access to the M62. The local schools listed nearby have Good Ofsted ratings, making this a sensible choice for first-time buyers or investors seeking rental potential.
The house dates from the mid-20th century and is generally well maintained, though internal photos suggest scope for modest modernisation to suit contemporary tastes. There is only one bathroom and the overall internal floor area is small (around 790 sq ft), so space-conscious buyers should check room dimensions carefully.
Practical considerations: the area records above-average crime and high deprivation indicators, which may concern some purchasers. Flooding risk is low and running costs are helped by mains gas heating and very low council tax. This is a straightforward, affordable property that rewards modest updating and offers immediate occupancy without a chain.
3 bedroom semi-detached house for sale in Powder Mill Road, Warrington, WA4 — £280,000 • 3 bed • 2 bath • 925 ft²
3 bedroom semi-detached house for sale in Richmond Avenue, Latchford, Warrington, WA4 — £210,000 • 3 bed • 2 bath • 902 ft²
3 bedroom semi-detached house for sale in Wash Lane, Warrington, WA4 — £315,000 • 3 bed • 1 bath • 1131 ft²
3 bedroom semi-detached house for sale in Lindley Avenue, Warrington, WA4 — £270,000 • 3 bed • 1 bath • 868 ft²
3 bedroom terraced house for sale in Oldham Street, Latchford, Warrington, WA4 — £160,000 • 3 bed • 1 bath • 862 ft²
3 bedroom terraced house for sale in Powder Mill Road, Warrington, WA4 — £245,000 • 3 bed • 3 bath • 1011 ft²






























































