Character-filled family home close to Tonbridge station and schools.
Chain free three-bedroom period mid-terrace with original fireplaces
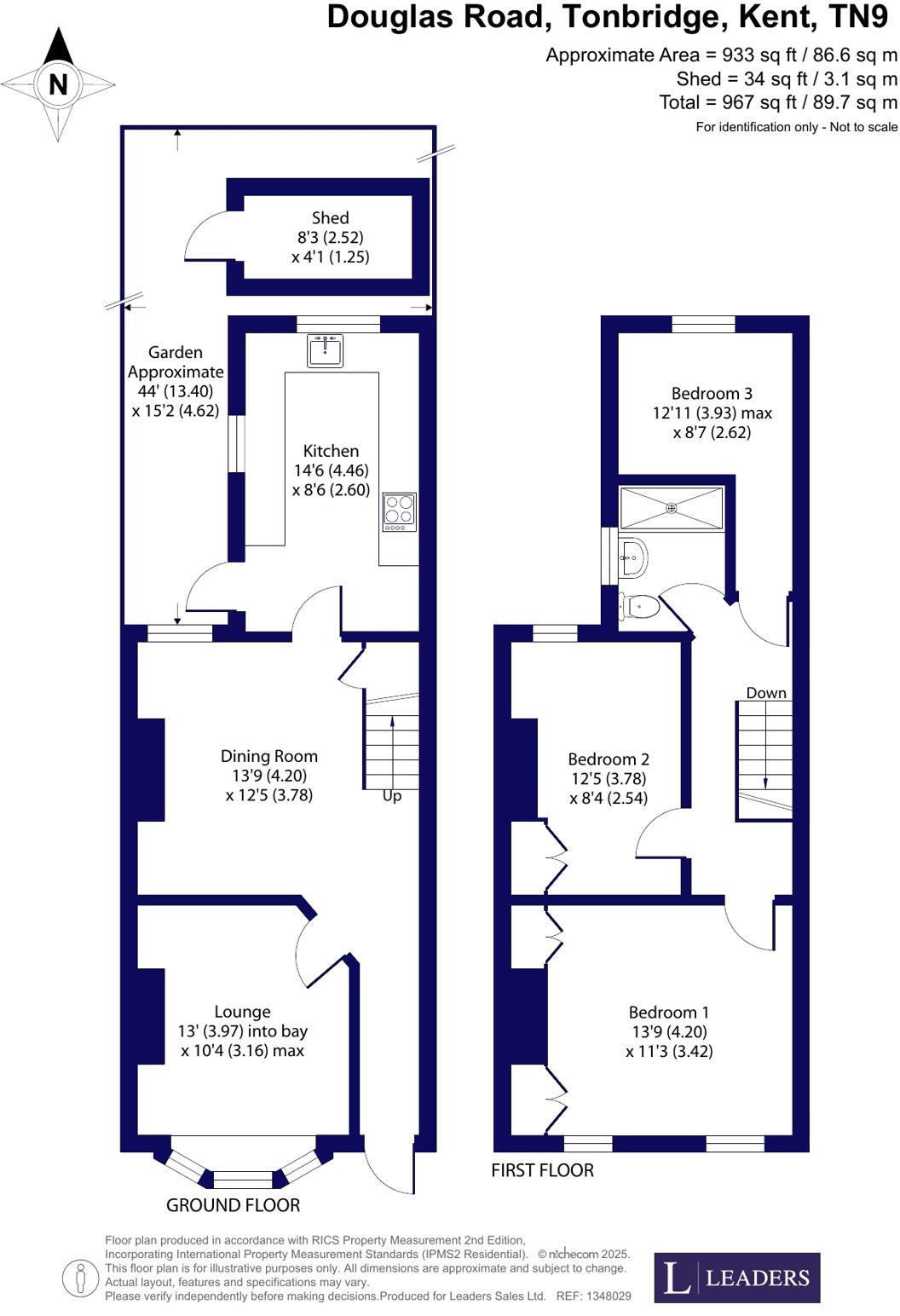
A classic early 20th-century mid-terrace, this three-bedroom home sits a short walk from Tonbridge town centre and rail links, offering practical family living with genuine period character. The principal room benefits from a wide bay window and original cast-iron fireplaces, while two reception rooms and plentiful built-in storage make everyday life straightforward. The property is offered chain free, making it suitable for buyers looking to move quickly.
The layout is traditional and well-proportioned: sitting room to the front, dining room to the centre, and a bright dual-aspect kitchen at the rear with direct garden access. Upstairs are three bedrooms and a single family bathroom; the principal bedroom spans the width of the house and includes fitted wardrobes and a period fireplace. The enclosed rear garden is private and mostly lawned — a safe outdoor space for children or pets but modest in size.
Practical considerations are clear: the house has period single-cavity walls (assumed uninsulated in parts) and double glazing of unknown age, so buyers should expect to add their own stamp and consider modernisation work to improve thermal efficiency. There is no off-street parking and only one bathroom for three bedrooms. The area is very affluent with excellent schools and transport links, but local crime levels are higher than average, which may matter to some purchasers. Overall, this property will suit families or first-time buyers seeking character, proximity to amenities and commuter convenience, and who are willing to invest in selective updating.
2 bedroom house for sale in Pembury Grove, Tonbridge, Kent, TN9 — £350,000 • 2 bed • 1 bath • 741 ft²
3 bedroom terraced house for sale in Dernier Road, Tonbridge, Kent, TN10 — £350,000 • 3 bed • 1 bath • 831 ft²
3 bedroom terraced house for sale in Stanley Road, Tunbridge Wells, Kent, TN1 — £400,000 • 3 bed • 1 bath
2 bedroom end of terrace house for sale in Mill Crescent, Tonbridge, TN9 — £425,000 • 2 bed • 1 bath • 1281 ft²
2 bedroom terraced house for sale in Priory Road, Tonbridge, TN9 2BP, TN9 — £290,000 • 2 bed • 1 bath • 540 ft²
2 bedroom terraced house for sale in Nelson Avenue, Tonbridge, TN9 — £300,000 • 2 bed • 1 bath • 658 ft²


















































































