Full planning consent for a compact two-storey home near local amenities.
Full planning permission for a single two-storey dwelling
Approx 970 sq ft compact urban plot, narrow frontage
Long leasehold interest — very long term remaining
Close proximity to Springview Village and local amenities
Adjacent to existing terraced housing; direct street frontage
Located in a very deprived area; affects values and demand
Fast broadband and excellent mobile signal on site
Further due diligence required on title and utility connections
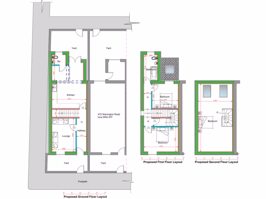
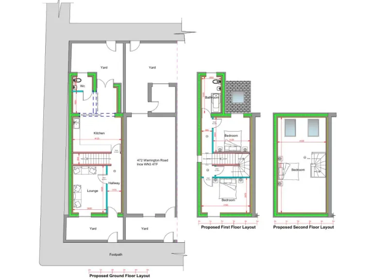
This compact infill plot on Warrington Road offers an affordable entry into residential development in Ince, Wigan. Full planning permission is already in place for a small two-storey dwelling, reducing early-stage risk and speeding project timelines. The site benefits from direct street frontage, neighbouring brick terraces, and nearby mains services, which should help contain build costs.
The plot is constrained — roughly 970 sq ft with a narrow frontage and limited design flexibility. The surrounding area is a very deprived, blue-collar neighbourhood, which will influence resale values and rental demand; buyers should factor local market conditions into appraisal and exit plans. The site is leasehold with a very long term remaining (998 years originally; 857 years currently noted), and the price reflects the compact size and urban setting.
Practical positives include excellent mobile signal, fast broadband, and proximity to several well-rated schools and local amenities, including Springview Village. The location and planning consent make this suitable for an investor seeking a quick-build infill unit or a buyer wanting a bespoke small home in an established street. Full due diligence is recommended: confirm exact site area, title details, planning documentation, and utility connections before committing.
Land for sale in Mill Lane, Appley Bridge, WN6 — £95,000 • 1 bed • 1 bath
Residential development for sale in 101 Gathurst Lane, Shevington, Wigan, WN6 — £250,000 • 1 bed • 1 bath
Plot for sale in 101 Gathurst Lane, Shevington, Wigan, WN6 — £250,000 • 1 bed • 1 bath • 1056 ft²
Land for sale in Irwin Road, St Helens, WA9 — £99,950 • 4 bed • 1 bath • 1104 ft²
Land for sale in Land Adjacent To 202a Chaddock Lane, Worsley, M28 1DN, M28 — £90,000 • 3 bed • 3 bath
Land for sale in Sportsman Street, Leigh, WN7 5AA, WN7 — £140,000 • 1 bed • 1 bath














