**Standout Features:**
- Large plot size of approximately 0.24 acres (0.1 hectares)
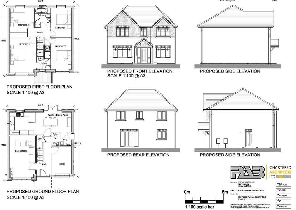
- Outline Planning Consent for 2 detached residential properties
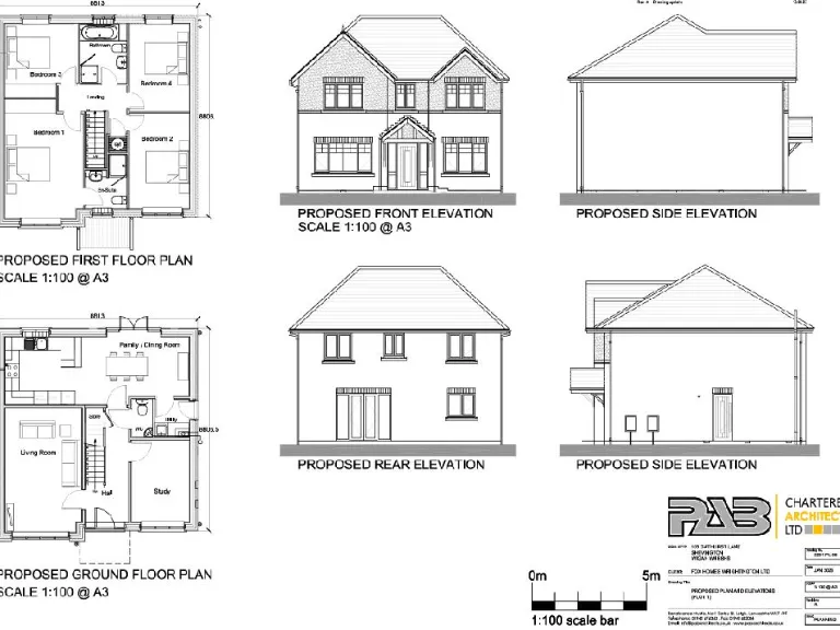
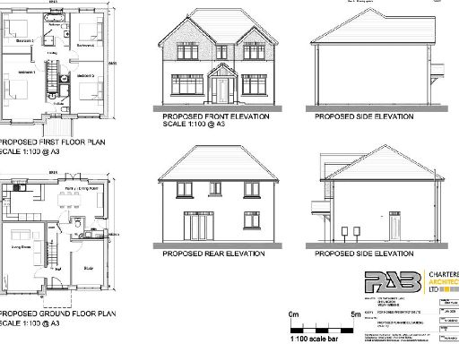
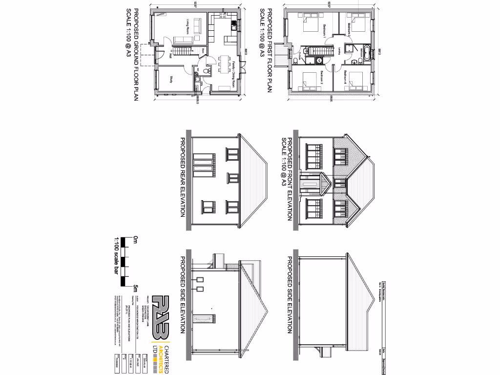
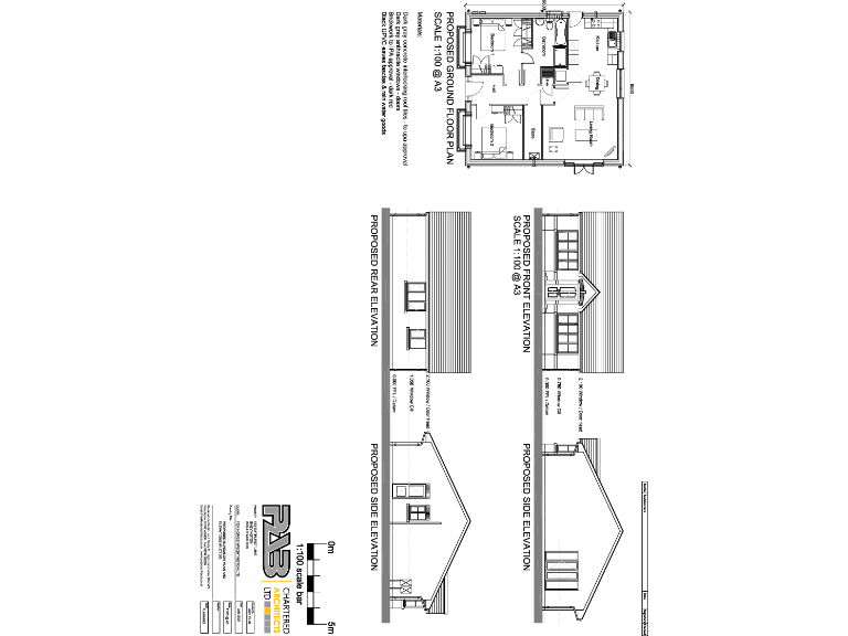
- Proposed two-storey home with 4 bedrooms and a detached garage
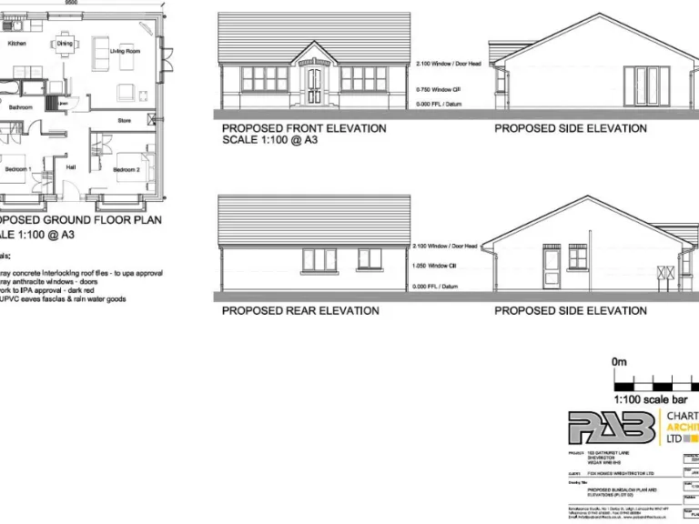
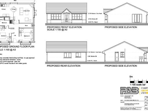
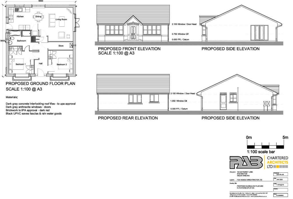
- Single-storey bungalow with 2 bedrooms
- Located in a desirable, well-established neighborhood in Shevington, Wigan
- Close to local amenities and excellent transport links to M6 (Junction 27)
- Very low crime rate and average broadband speeds
- Freehold tenure, providing ongoing ownership flexibility
**Summary:**
Discover a unique opportunity to invest in a prime plot of land in the sought-after village of Shevington, Wigan. Spanning 0.24 acres, this property comes with outline planning consent for two detached residential homes—a spacious two-storey four-bedroom property with a garage, and a cozy two-bedroom bungalow—providing the perfect blend of living options for families or potential tenants. Nestled in a tranquil suburban setting, enjoy the balance of peaceful living with the convenience of local amenities just a short stroll away and easy access to Junction 27 of the M6 Motorway for seamless commutes.
This area is surrounded by a charming residential neighborhood, offering mature greenery while providing ample opportunities for growth and development in a very affluent community. With excellent potential for rental income or a personalised new home, this property is ripe for visionary buyers looking to create their ideal living space. Seize this rare opportunity before it slips away!
Residential development for sale in 101 Gathurst Lane, Shevington, Wigan, WN6 — £250,000 • 1 bed • 1 bath
Land for sale in Development Land, Warrington Road, Wigan, Lancashire, WN3 — POA • 1 bed • 1 bath
Land for sale in Land at Spring Road, Orrell, WN5 — £16,000 • 1 bed • 1 bath
Land for sale in Mill Lane, Appley Bridge, WN6 — £95,000 • 1 bed • 1 bath
Land for sale in Chorley Road, Standish, Wigan, Lancashire, WN1 2XN, WN1 — £1,500,000 • 1 bed • 1 bath
Residential development for sale in Land Adjacent to 4 Knowley Brow, Chorley, Lancashire, PR6 9BG, PR6 — £75,000 • 1 bed • 1 bath • 3267 ft²










































