Affordable shared-ownership route into an established small-town neighbourhood.
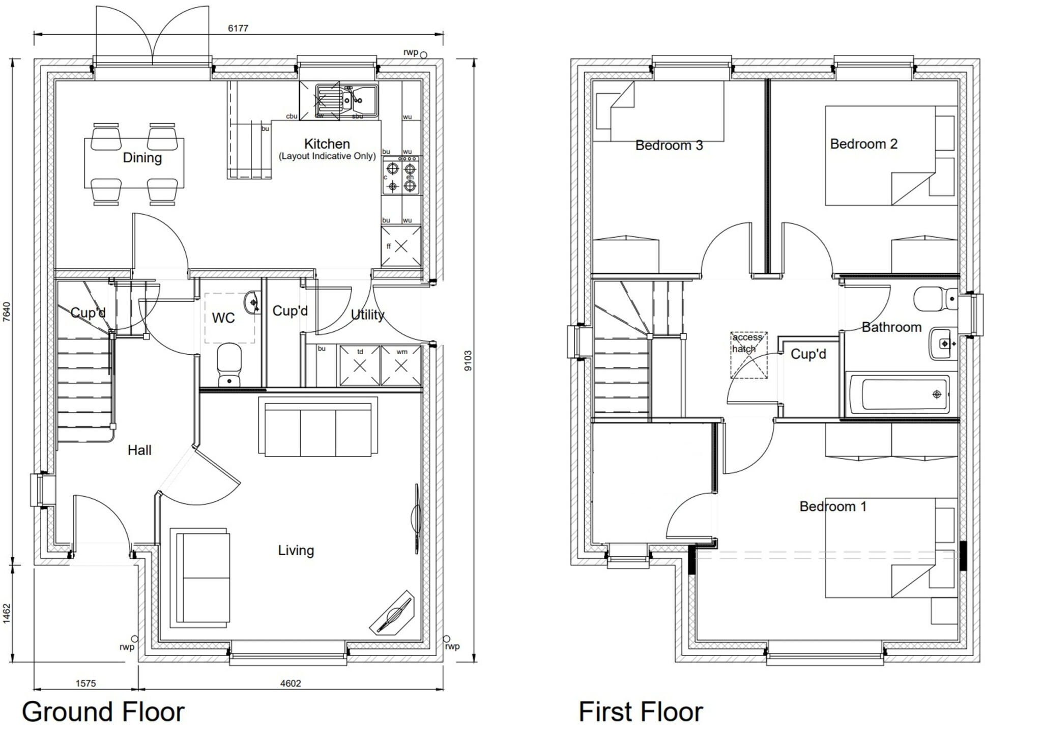
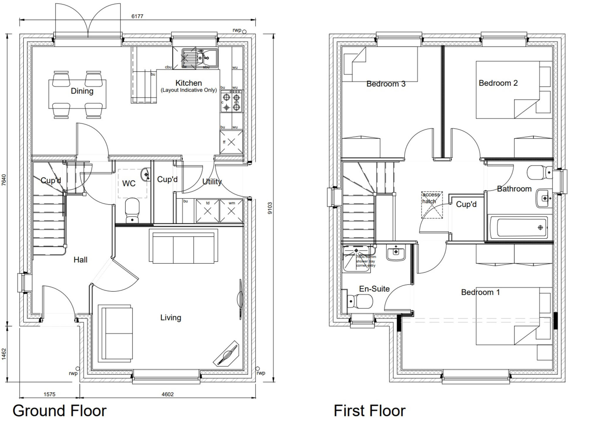
Three-bedroom detached home with private garden and allocated off-street parking
A contemporary three-bedroom detached home offered via shared ownership on a long lease, ideal for first-time buyers looking to get onto the market with a lower upfront cost. The property presents practical family layout: lounge, fitted kitchen, ground-floor WC, three bedrooms and a single family bathroom. Outside there is a private garden and an allocated off-street parking space.
This listing advertises a 40% share (shareable between 10%–75%) with the 40% share price at £136,000 and a full market value of £340,000. Monthly costs at the advertised share include rent (approx. £467.50) plus a service charge of £66.28 — the service charge is below average and the lease has 990 years remaining, so lease length is not a near-term concern.
Benefits include modern construction with solar panels, fast broadband and excellent mobile signal, and placement in a very affluent, small-town fringe neighbourhood close to a mix of primary and secondary schools (ratings range from Requires Improvement to Outstanding). Important practical notes: this is a leasehold shared-ownership sale, so purchasers must meet shared-ownership eligibility and be aware of rent, service charges, staircasing costs, nomination/management rules and the potential for repossession if obligations are not met.
Overall this is a sensible route onto the housing ladder for buyers prioritising lower deposit and monthly outlay over purchasing outright. Prospective purchasers should review the shared-ownership key information, ongoing costs and any local nomination or resale conditions before proceeding.
2 bedroom semi-detached house for sale in Harness Maker Way, Hethersett, Norwich, Norfolk, NR9 — £110,000 • 2 bed • 1 bath • 672 ft²
2 bedroom semi-detached house for sale in Noctule Grove, Hethersett, Norwich, NR9 3FQ, NR9 — £180,000 • 2 bed • 1 bath • 667 ft²
1 bedroom house for sale in Catlyn Place, Wymondham, Norfolk, NR18 — £95,000 • 1 bed • 1 bath • 503 ft²
3 bedroom house for sale in Laburnum Close, Wymondham, Norfolk, NR18 — £67,500 • 3 bed • 1 bath • 936 ft²
3 bedroom semi-detached house for sale in Smockmill Close, Bunwell, Norwich, NR16 — £162,500 • 3 bed • 2 bath • 996 ft²
2 bedroom semi-detached house for sale in Towler Drive, Sprowston, Norwich, NR7 — £73,500 • 2 bed • 2 bath • 491 ft²






































