Practical low-maintenance home near schools and town amenities.
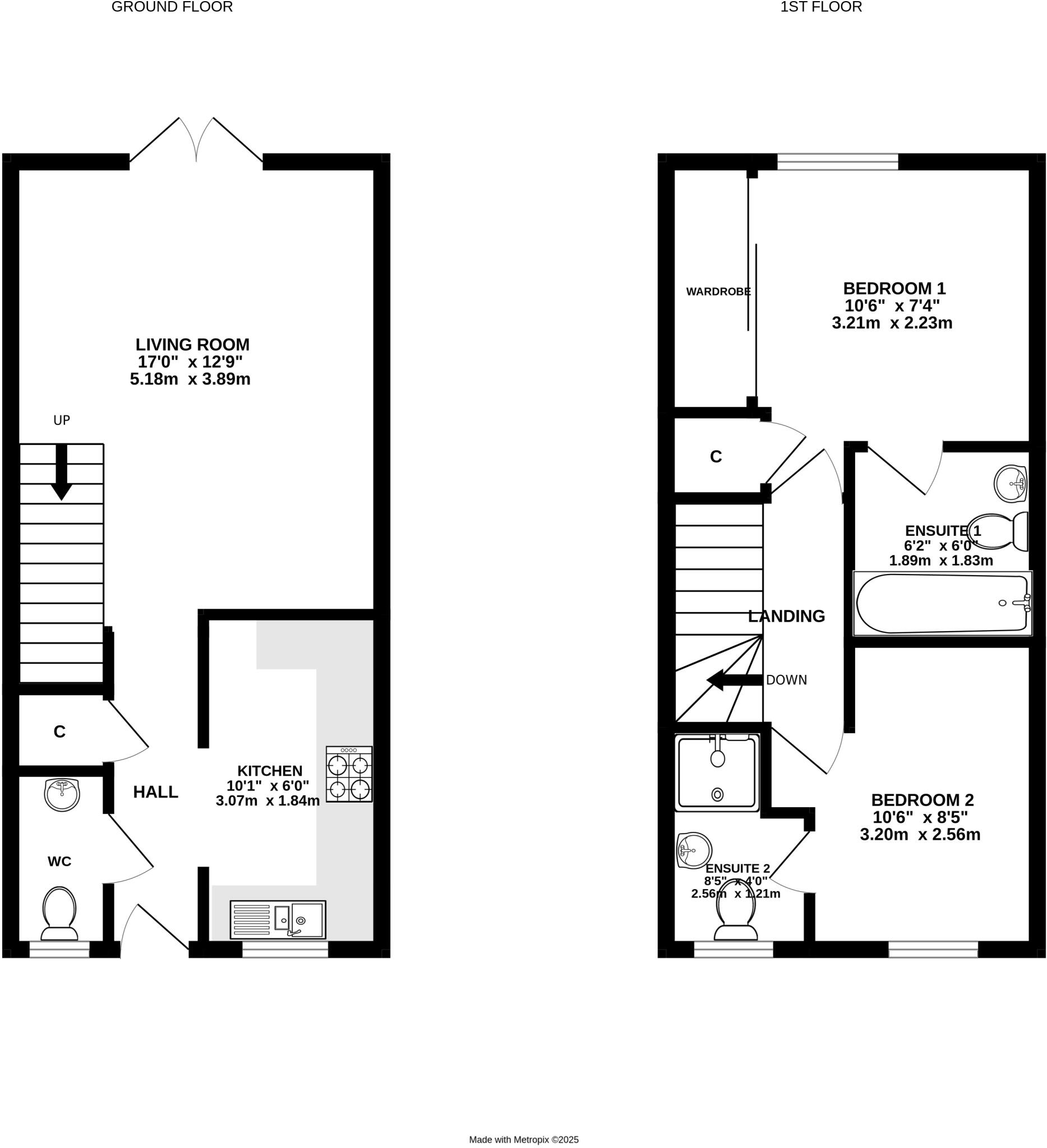
2 double bedrooms with two bathrooms/en suites
Small overall size — approximately 541 sq ft
Paved, low-maintenance rear garden
Allocated off-street parking space
Freehold tenure; offered with no onward chain
Fast broadband and excellent mobile signal
Very low flood risk; low local crime levels
Limited internal space and small plot size
Set on Morse Road in Norton Fitzwarren, this neat two-bedroom terraced house offers a compact, low-maintenance home for a small family or first-time buyer. The layout includes a living room/diner, fitted kitchen, a ground-floor WC and two bedrooms served by two bathrooms/en suites, arranged over a modest footprint of about 541 sq ft.
Outside there is a paved, fenced garden that’s easy to manage and an allocated off-street parking space — practical features for everyday family life. Broadband speeds are fast and mobile signal is excellent, while local schools and amenities are within easy reach of this very low flood-risk location.
Prospective buyers should note the property’s overall size and small plot; living and storage space will be limited compared with larger family homes. The house is freehold and offered with no onward chain, presenting a straightforward purchase route for those seeking an affordable foothold in the Taunton area.
4 bedroom terraced house for sale in Morse Road, Norton Fitzwarren, Taunton, Somerset, TA2 — £269,950 • 4 bed • 2 bath • 393 ft²
2 bedroom terraced house for sale in Compton Close, Taunton, TA2 — £220,000 • 2 bed • 1 bath • 596 ft²
2 bedroom terraced house for sale in Monkton Heathfield, TA2 — £210,000 • 2 bed • 1 bath • 545 ft²
3 bedroom terraced house for sale in Mill House Road, Norton Fitzwarren, Taunton, Somerset, TA2 — £278,000 • 3 bed • 2 bath • 1122 ft²
5 bedroom terraced house for sale in Morse Road, Norton Fitzwarren, TA2 — £274,000 • 5 bed • 2 bath • 1212 ft²
2 bedroom terraced house for sale in Haywood Road, Taunton, Somerset, TA1 — £220,000 • 2 bed • 1 bath • 547 ft²






















































