Leafy village plot with large garden, double garage and versatile reception space.
Four double bedrooms, principal with en-suite and walk-in wardrobe
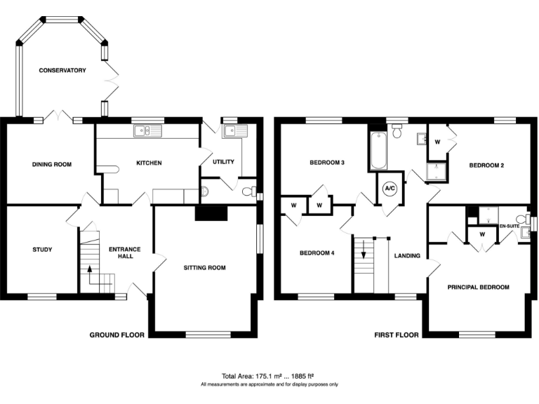
Set well back from a cul-de-sac in desirable High Kelling, this four-double-bedroom detached house sits on a generous 0.38-acre plot with established lawns, paved seating and a managed woodland wildlife area. The layout suits family life, with three reception rooms plus a large conservatory that opens onto the garden and a welcoming galleried landing that fills the home with light.
The principal suite includes a walk-in wardrobe and en-suite shower room, while three further double bedrooms share a family bathroom. Ground-floor living is practical: a fitted kitchen, utility and cloakroom support everyday use, and a study provides a quiet work or play space. A double garage (one remote-operated door), plentiful driveway parking and gated side access to the rear garden add convenience and secure vehicle storage.
Built in the early 1990s and with double glazing fitted after 2002, the house is well insulated and heated by a mains gas boiler and radiators; the EPC is rated C. There is very low local crime, excellent mobile signal and good access to Holt’s shops, schools and services two miles away. The North Norfolk coast at Weybourne is about 3.2 miles, offering easy seaside days.
Notable practical considerations: broadband speeds in the area are slow and the property sits in Council Tax Band F, so running costs should be factored in. Overall, this is a comfortable, well-proportioned family house on a substantial plot, appealing for full-time living or as a peaceful second home close to Holt and the coast.
4 bedroom detached bungalow for sale in A Beautifully Refurbished Detached Bungalow On A Mature Half-acre Plot In High Kelling, NR25 — £675,000 • 4 bed • 3 bath • 1891 ft²
2 bedroom detached bungalow for sale in High Kelling, Holt, NR25 — £375,000 • 2 bed • 1 bath • 1000 ft²
4 bedroom detached bungalow for sale in Warren Road, NR25 — £650,000 • 4 bed • 2 bath • 1977 ft²
3 bedroom cottage for sale in Bridge Road, High Kelling, Holt, NR25 — £400,000 • 3 bed • 2 bath • 2088 ft²
3 bedroom detached house for sale in 52 Pineheath Road, NR25 6RH, NR25 — £529,950 • 3 bed • 2 bath • 1362 ft²
3 bedroom detached bungalow for sale in Chain Free in High Kelling, NR25 — £625,000 • 3 bed • 3 bath • 1700 ft²






















































































