Large garden and garage near Holt and the Norfolk coast.
Around one third of an acre plot with mature hedging and outbuildings
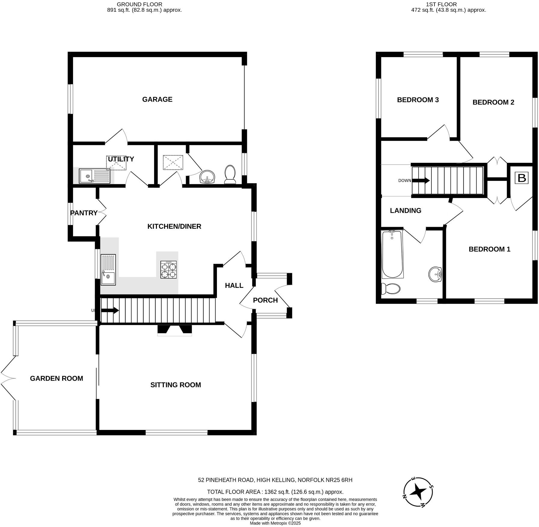
Set on a generous plot of around one third of an acre (STS), this 1950s detached house offers spacious family accommodation and clear scope for improvement. The ground floor includes a treble-aspect sitting room with brick fireplace, a garden room, a kitchen/diner and useful utility and cloakroom. Upstairs are three bedrooms and a family bathroom—two bedrooms benefit from dual aspect windows.
The plot is a key asset: mature hedging gives privacy, there are lawns, patios and several outbuildings, plus a shingle parking area and a single garage with power. The property has uPVC sealed-unit double glazing and a gas-fired Worcester Bosch boiler providing central heating. Its location in High Kelling places it about 1.5 miles from Holt, close to good local schools and the North Norfolk coast.
Important to note: the house needs updating and renovation throughout. Cosmetic and modernisation work will be required to kitchen, bathroom and general decoration; buyers should budget for upgrades. Broadband speeds are reported slow, which may affect home-working until improved. EPC currently TBC.
For a family seeking a spacious home with a large, private garden and scope to add value, this property represents a strong opportunity. For buyers seeking a move-in-ready home with fast broadband, this will require additional investment and planning.
4 bedroom detached bungalow for sale in A Beautifully Refurbished Detached Bungalow On A Mature Half-acre Plot In High Kelling, NR25 — £675,000 • 4 bed • 3 bath • 1891 ft²
3 bedroom detached bungalow for sale in Rowan Way, Holt, Norfolk, NR25 — £450,000 • 3 bed • 2 bath • 1337 ft²
4 bedroom detached bungalow for sale in Warren Road, NR25 — £650,000 • 4 bed • 2 bath • 1977 ft²
2 bedroom detached bungalow for sale in High Kelling, Holt, NR25 — £375,000 • 2 bed • 1 bath • 1000 ft²
3 bedroom detached bungalow for sale in Chain Free in High Kelling, NR25 — £625,000 • 3 bed • 3 bath • 1700 ft²
3 bedroom cottage for sale in Bridge Road, High Kelling, Holt, NR25 — £400,000 • 3 bed • 2 bath • 2088 ft²






















































