Compact, low-maintenance home ideal for a first purchase or rental income.
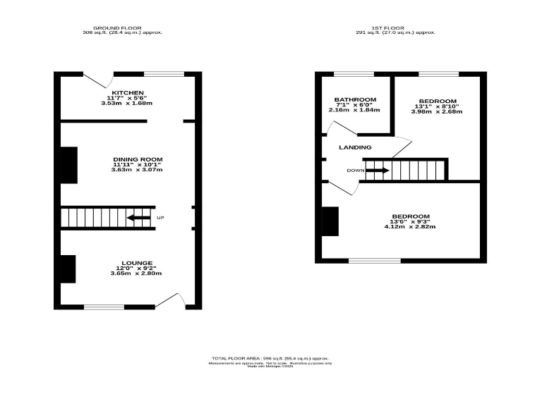
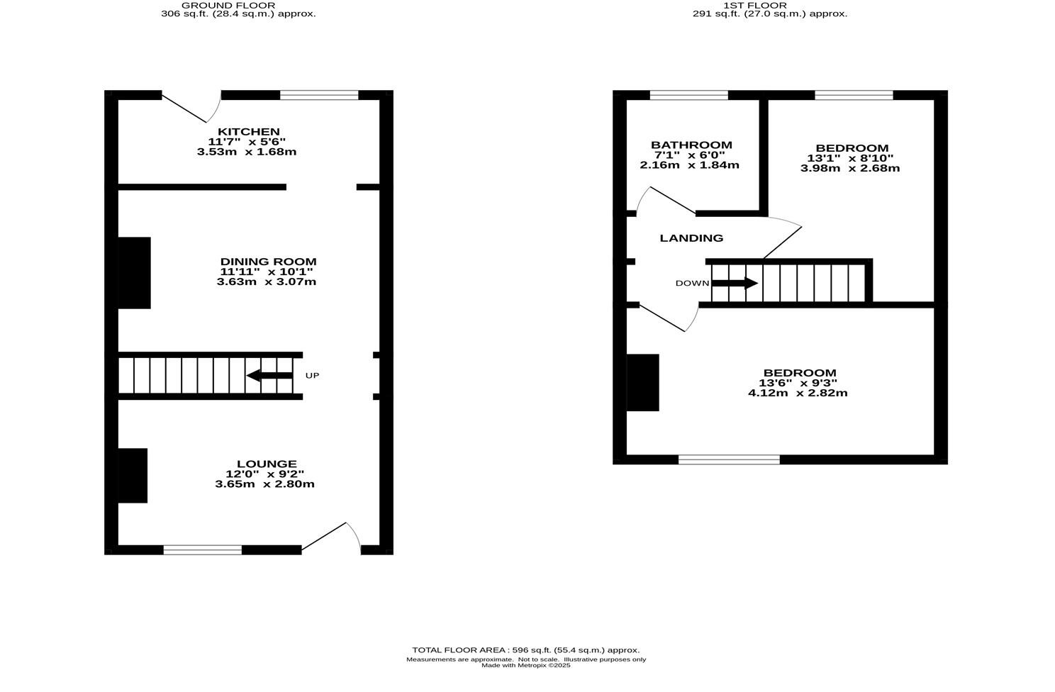
Two double bedrooms with larger-than-average first-floor rooms
This well-presented two-bedroom mid-terrace occupies a central Macclesfield location within walking distance of shops, transport links and local amenities. The home offers two reception rooms and a fitted kitchen arranged for sociable living, with larger-than-average first-floor accommodation and two double bedrooms. A low-maintenance gravel garden, brick outbuilding and shed add practical outdoor storage.
Internally the finish is modern and move-in ready: wooden flooring in the reception rooms, a contemporary kitchen with grey units, and an updated bathroom with shower over bath. Gas central heating, double glazing and an efficient layout make this a straightforward, low-effort purchase for a first-time buyer or investor seeking a compact city-centre property.
Buyers should note the property’s small overall footprint (approx. 576 sq ft) and period solid-brick construction likely without wall insulation. Storage is modest despite built-in wardrobes; the plot and garden are compact. Council tax is very cheap and flood risk is low, supporting affordable ongoing costs.
2 bedroom end of terrace house for sale in Crompton Road, Macclesfield, SK11 — £255,000 • 2 bed • 1 bath • 894 ft²
2 bedroom end of terrace house for sale in Delamere Drive, Macclesfield, SK10 — £210,000 • 2 bed • 1 bath • 819 ft²
2 bedroom end of terrace house for sale in Waters Green, Macclesfield, SK11 — £180,000 • 2 bed • 1 bath • 703 ft²
2 bedroom terraced house for sale in High Street, MACCLESFIELD, Cheshire, SK11 — £200,000 • 2 bed • 1 bath • 759 ft²
2 bedroom end of terrace house for sale in Brocklehurst Avenue, Macclesfield, Cheshire, SK10 — £225,000 • 2 bed • 1 bath • 710 ft²
2 bedroom end of terrace house for sale in Fountain Street, Macclesfield, SK10 — £172,500 • 2 bed • 1 bath


















































