RG9 2EW - 3 bed henley semi detached home in Henley, RG9 2EW

View on Property Piper

3 bedroom semi-detached house for sale in Crisp Road, Henley-on-Thames, Oxfordshire, RG9

Summary - 135, CRISP ROAD, HENLEY-ON-THAMES RG9 2EW

3 bed 1 bath Semi-Detached

Three-bedroom semi with garden and extension potential, a short walk to Henley town centre..
Three bedrooms with two rooms overlooking garden and fields
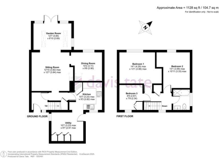
Set just half a mile from Henley-on-Thames town centre, this three-bedroom semi-detached home combines convenient access with a peaceful, suburban setting. The ground floor offers generous reception space, a bright dining area with French doors to the deck, and a large utility room — practical for family life. Upstairs are three bedrooms and a single family bathroom; two bedrooms enjoy views over the garden and adjoining fields.

The rear garden is attractively planted, with a decked seating area and secondary patio, backing onto open land — a pleasant, private outdoor space despite the overall small plot. There is on-street parking nearby and good local transport links, including fast rail services to Reading and London, and a strong selection of local schools.

The house was built in the late 1960s/early 1970s and is offered chain free, presenting clear potential for improvement and extension, subject to planning permission (STPP). Practical considerations include a single bathroom, an EPC rating of D, and the likely need for targeted updating in places to unlock further value. This will suit a buyer wanting comfortable family accommodation with scope to modernise.

Property Details

Brochure Descriptions

Image Descriptions

Floorplan Description

Rooms

Textual Property Features

Target Audience

AI Tags

Detected Visual Features

EPC Details

Nearby Schools

Nearest Bars And Restaurants

,,,,}

Nearest General Shops

,,}

Nearest Grocery shops

,,}

Nearest Supermarkets

,,}

Nearest Religious buildings

,,}

Nearest Medical buildings

,,,}

Nearest Airports

}

Nearest Leisure Facilities

,,,,}

Nearest Tourist attractions

,,}

Nearest Train stations

,,,,}

Nearest Bus stations and stops

,,,,}

Nearest Hotels

,,}

Tags

Local Market Stats

AirBnB Data

Similar Properties

Meta

High Res Images

Compatible Images

Low res Images

Thumbnails

Raw Images

High Res Floorplan Images

Compatible Floorplan Images

Low res Floorplan Images

FloorplanImages Thumbnail

Raw Floorplan Images