Chain-free Victorian end terrace with three bedrooms and easy ring-road access—ideal for first-time buyers or investors.
Chain-free Victorian end-terrace, three bedrooms
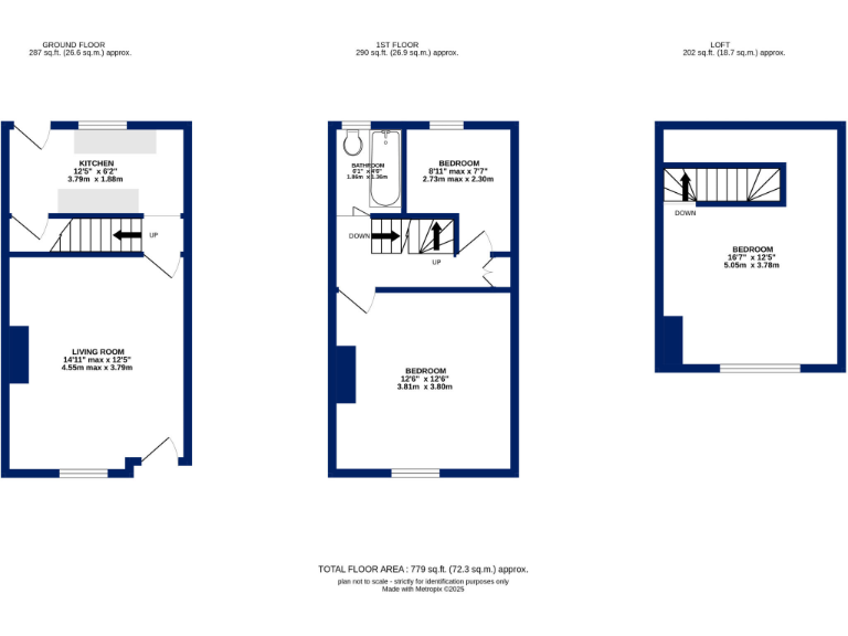
Approx 779 sq ft — compact multi-storey layout
Easy ring-road and motorway access; good bus routes
Paved rear garden; double glazing installed after 2002
Requires renovation; bathroom and general updating needed
Solid brick walls likely uninsulated (assumed)
High local crime and significant area deprivation
Freehold with very low council tax
This chain-free Victorian end-terrace offers three bedrooms across three storeys in a well-connected LS12 location. The house is compact (approximately 779 sq ft) but benefits from through layout, separate lounge and kitchen, and a paved rear garden — practical for low-maintenance outdoor use. Double glazing was fitted after 2002 and the property runs on mains gas with a boiler and radiators.
The area provides easy access to the ring road and motorway networks, regular bus routes, local shops and a range of schools including a nearby Good-rated primary and an Outstanding secondary. For a first-time buyer or investor this creates straightforward commuting and tenant demand potential in a major conurbation setting.
The house requires renovation: the bathroom and other finishes need updating, and the solid brick walls appear to have no insulation (assumed). The plot and rooms are small, and the neighbourhood records higher crime levels and notable area deprivation, which may affect resale values and rental pricing. Material information is available on request.
This freehold, multi-storey terrace suits buyers seeking an affordable entry into the market or a project with clear scope for improvement. Low council tax and no onward chain reduce ongoing costs and speed of purchase, but factor in renovation budgets and local market considerations before viewing.
3 bedroom town house for sale in Fawcett Way, Leeds, West Yorkshire, LS12 — £145,000 • 3 bed • 1 bath • 1134 ft²
3 bedroom end of terrace house for sale in Dent Street, Leeds, West Yorkshire, LS9 — £100,000 • 3 bed • 1 bath • 952 ft²
3 bedroom terraced house for sale in Tong Road, Leeds, West Yorkshire, LS12 — £139,995 • 3 bed • 1 bath • 1235 ft²
3 bedroom terraced house for sale in Landseer Avenue, Leeds, LS13 — £149,995 • 3 bed • 1 bath • 360 ft²
3 bedroom terraced house for sale in Holdforth Gardens, Leeds, West Yorkshire, LS12 — £100,000 • 3 bed • 1 bath
4 bedroom end of terrace house for sale in Branch Street, Leeds, West Yorkshire, LS12 — £150,000 • 4 bed • 1 bath • 1437 ft²














































