**Standout Features:**
- Guide Price: £510,000 - £525,000
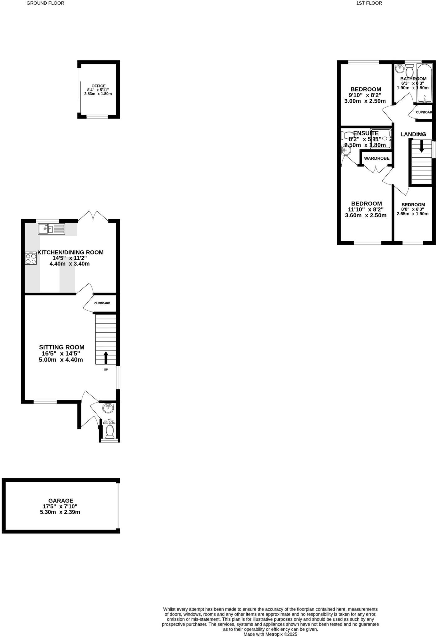
- Three spacious bedrooms, including a main bedroom with en suite
- South-facing garden with a bespoke home office featuring underfloor heating
- Well-maintained semi-detached home in a private development
- Garage plus allocated parking, with visitor parking available
- Short walk to Lingfield Train Station for easy commuting
- Low crime area, great local amenities, and schools nearby
Discover the perfect blend of charm and modern living in this exquisite three-bedroom semi-detached house, positioned in a serene private development. This well-maintained property invites families and professionals alike, featuring a welcoming lobby that leads to a spacious sitting room — ideal for both relaxation and entertaining. The kitchen/dining area is designed for functionality with ample cabinet space and room for all essential appliances.
Ascend to the first floor where the main bedroom boasts an en-suite bathroom and built-in wardrobe, complemented by two additional well-proportioned bedrooms and a family bathroom. The outdoor space showcases a south-facing garden, offering a tranquil retreat, and a bespoke office with underfloor heating, perfect for home-based work or study, alone in nature.
With Lingfield Train Station just a short walk away, commuting is a breeze, and the local community is rich in amenities—shops, cafés, and excellent schools are all easily accessible. Additionally, the property includes a garage and allocated parking, catering to all your storage and parking needs. This is a standout opportunity that balances comfort, convenience, and the potential for a vibrant family life—don't miss out!
3 bedroom semi-detached house for sale in Headland Way, Lingfield, RH7 6BP, RH7 — £575,000 • 3 bed • 2 bath • 1367 ft²
4 bedroom semi-detached house for sale in Station Road, Lingfield, RH7 6DX, RH7 — £550,000 • 4 bed • 2 bath • 1446 ft²
3 bedroom end of terrace house for sale in Lincolns Mead, Lingfield, RH7 — £515,000 • 3 bed • 1 bath • 860 ft²
2 bedroom terraced house for sale in Gray Close, Lingfield, RH7 — £385,000 • 2 bed • 2 bath • 689 ft²
4 bedroom end of terrace house for sale in Station Road, Lingfield, RH7 6DZ, RH7 — £500,000 • 4 bed • 2 bath • 1220 ft²
4 bedroom detached house for sale in New Place Gardens, Lingfield, RH7 6JD, RH7 — £800,000 • 4 bed • 2 bath • 2000 ft²


























































