Spacious, practical family home with garage and large driveway.
Corner plot with landscaped rear garden and timber deck
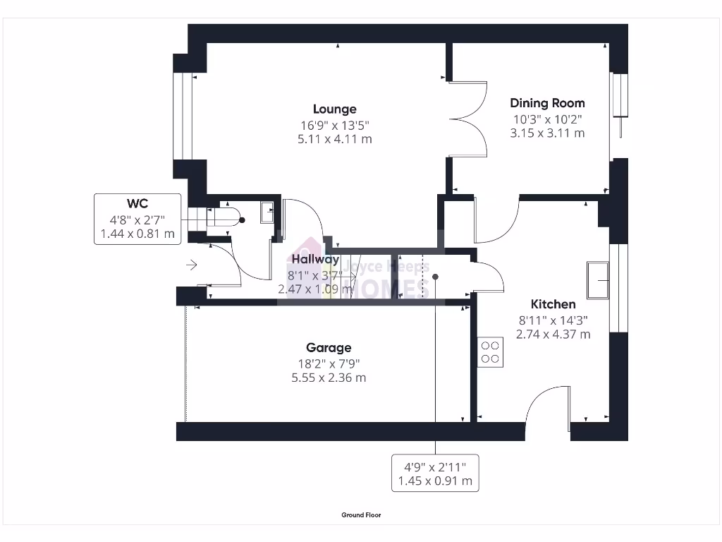
Set on a corner plot in Lindsayfield, this contemporary four-bedroom detached villa is arranged over two floors and suits a growing family. The ground floor offers a welcoming hall, cloakroom WC, spacious lounge with open aspect, separate dining room and a modern kitchen fitted with high-gloss units and integrated oven and gas hob. Upstairs are four well-proportioned bedrooms with built-in wardrobes, an en suite shower room and a stylish family bathroom. Loft access provides extra storage.
Outside, the house benefits from a large monobloc driveway for multiple cars and an integral garage, plus a low-maintenance landscaped rear garden with artificial lawn and a timber deck — good for children and easy upkeep. Practical features include gas central heating and uPVC double glazing; the property is sold freehold with fast broadband available, making it suitable for remote working and family connectivity.
Buyers should note a few material points: the property sits in an area described as very deprived, and Council Tax is band F which will be relatively expensive. Mobile signal is average. Internally the home is in move-in condition but generally presented in neutral finishes — ideal for buyers who prefer to personalise rather than undertake major renovation.
Overall, this is a sensible family home in a suburban setting near schools, shops and transport links into Glasgow. It offers immediate practicality for daily life with scope to add value through cosmetic updating or by utilising the loft if required.
4 bedroom detached villa for sale in Ermelo Gardens, Lindsayfield, East Kilbride, G75 , G75 — £270,000 • 4 bed • 3 bath • 1044 ft²
4 bedroom detached villa for sale in Cornfoot Crescent, Gamekeepers Wynd, East Kilbride G74 , G74 — £295,000 • 4 bed • 3 bath • 1044 ft²
4 bedroom detached house for sale in Bloomingdale Drive, Lindsayfield, East Kilbride, G75 — £270,000 • 4 bed • 3 bath • 518 ft²
5 bedroom detached house for sale in Mendip Lane, Lindsayfield, EAST KILBRIDE, G75 — £367,000 • 5 bed • 4 bath • 1839 ft²
4 bedroom detached house for sale in Campsie Road, Glasgow, G75 — £315,000 • 4 bed • 4 bath • 1336 ft²
4 bedroom detached house for sale in 76 Orwell Wynd, East Kilbride, G75 — £385,000 • 4 bed • 3 bath • 1798 ft²






























































































