**Standout Features:**
- Victorian mid-terraced property with period features, including a bay window and sash windows.
- 2 reception rooms and 2 bedrooms, ideal for small families or investors.
- Conveniently located near local amenities and schools with good ratings.
- Central heating and double glazing throughout.
- Small garden at the front and slabbed garden at the rear for low maintenance.
**Potential Concerns:**
- Above average crime rates in the area.
- Property requires modernization, especially the living room.
- Area classified as very deprived, which may affect future value and living experience.
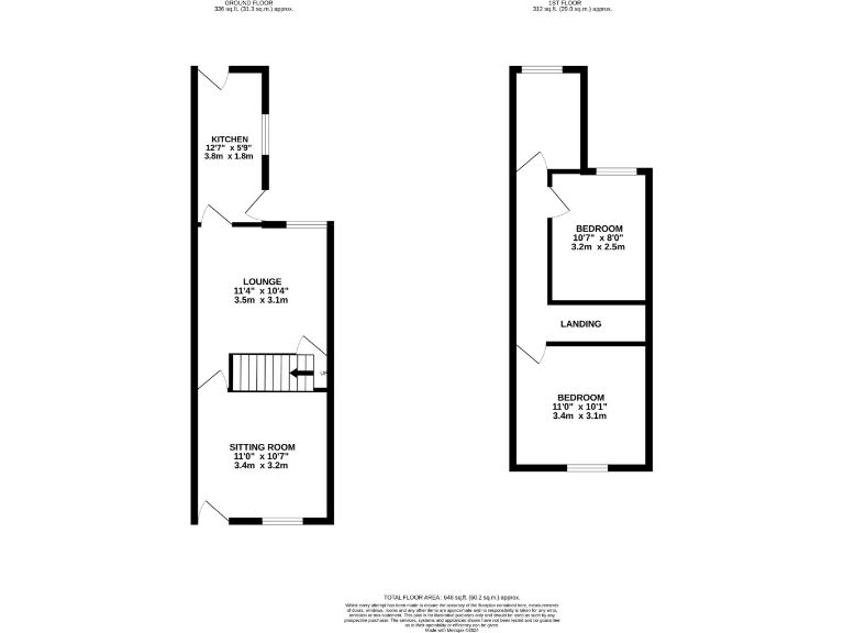
This charming Victorian terraced home offers a fantastic opportunity for first-time buyers, investors, or small families seeking a cozy space close to local amenities in postcode B8 3LD. With two reception rooms and upstairs bedrooms, there's significant room for comfort and personalization. The house features traditional design elements that add character, while the efficient layout includes a galley-style kitchen and a maintenance-friendly garden space—perfect for busy lifestyles.
Located within a vibrant community, you’ll have access to a variety of shops, bus routes, and reputable schools like the Outstanding-rated Shaw Hill Primary. While the property does require some modernization, this presents the perfect chance to customize the home to your specific tastes and needs. Don’t miss out on this affordable investment; properties in this area are increasingly sought after!
3 bedroom terraced house for sale in Clipston Road, Birmingham, B8 — £230,000 • 3 bed • 1 bath • 1173 ft²
2 bedroom terraced house for sale in Cornwall Road, Handsworth, Birmingham, B20 2HY, B20 — £170,000 • 2 bed • 1 bath
3 bedroom terraced house for sale in Tarry Road, BIRMINGHAM, West Midlands, B8 — £190,000 • 3 bed • 1 bath • 830 ft²
3 bedroom terraced house for sale in Brantley Road, Birmingham, West Midlands, B6 — £190,000 • 3 bed • 1 bath • 865 ft²
3 bedroom terraced house for sale in Swanage Road, Birmingham, B10 — £210,000 • 3 bed • 1 bath • 784 ft²
2 bedroom terraced house for sale in Edwards Road, Birmingham, West Midlands, B24 — £180,000 • 2 bed • 1 bath • 995 ft²






















































