Spacious single-floor principal suite, large gardens and course outlook — plenty of scope to personalise..
No onward chain; freehold on a very large plot
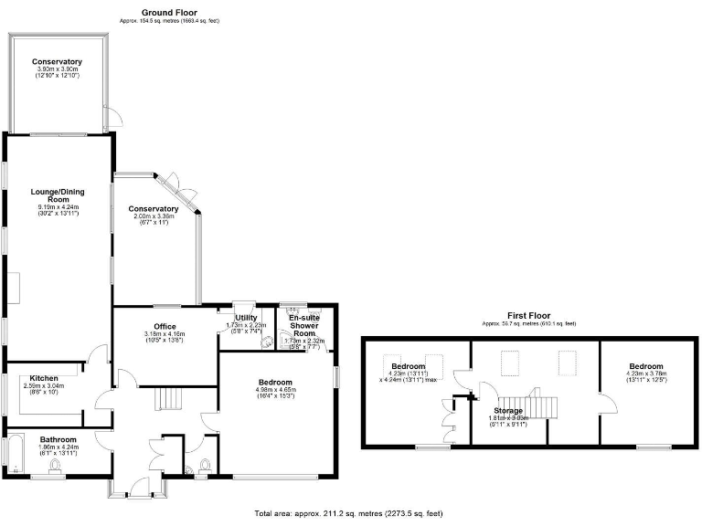
Set back on Golf Lane with a view over the adjacent course, Green Gables is a substantial detached chalet-bungalow on a very large plot. The property offers flexible accommodation including a ground-floor principal bedroom with en-suite plus two generous first-floor doubles with dormer views — useful for multi-generational living or work-from-home arrangements. Two conservatories and a dual-aspect living room bring light and easy access to the gardens, while a long shingle driveway provides ample off-street parking and turning space.
Internally the house blends classic details (parquet flooring, brick fireplace with wood-burning stove) with practical fittings such as a Shaker-style kitchen, utility room and good built-in storage. The galleried landing and twin roof lights give an airy feel upstairs. The overall footprint (approx. 2,273 sq ft) and flexible room count suit families, downsizers seeking single-floor living, or buyers wanting scope to personalise.
Notable practical points are factual: the property is chain-free and freehold, has an EPC of C, mains gas heating via boiler and radiators, and drainage details are listed as TBA. The construction era (late 1970s–early 1980s) and assumed partial cavity wall insulation mean some buyers may wish to upgrade thermal performance or modernise certain fittings to their taste. Council Tax is band F (expensive) which should be considered for ongoing costs.
Aldeburgh’s seaside location, nearby nature reserves and independent town amenities make this a desirable setting. The house’s size, private gardens and versatile layout deliver genuine scope for contemporary living or modest refurbishment to increase value and comfort.
5 bedroom detached house for sale in Golf Lane, Aldeburgh, IP15 — £1,350,000 • 5 bed • 2 bath • 2572 ft²
3 bedroom detached bungalow for sale in Aldeburgh, IP15 — £450,000 • 3 bed • 2 bath • 1033 ft²
2 bedroom semi-detached house for sale in Aldeburgh, Suffolk, IP15 — £450,000 • 2 bed • 1 bath • 698 ft²
5 bedroom detached house for sale in Aldringham Park, Aldringham, IP16 — £900,000 • 5 bed • 3 bath • 3855 ft²
3 bedroom detached house for sale in Linden Close, Aldeburgh, IP15 — £560,000 • 3 bed • 1 bath • 1017 ft²
4 bedroom detached house for sale in St. Peters Road, Aldeburgh, Suffolk, IP15 — £1,250,000 • 4 bed • 3 bath • 3359 ft²


















































































