Bright three-bedroom family home with extension potential and strong transport links.
Three double bedrooms plus two bathrooms, flexible family layout
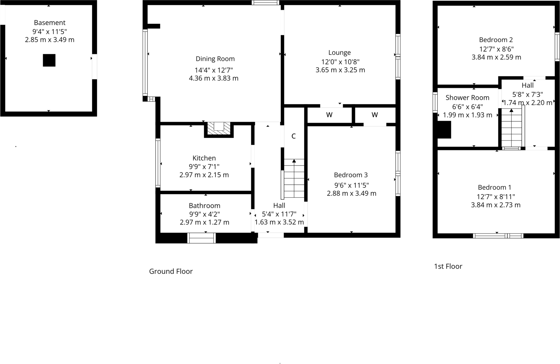
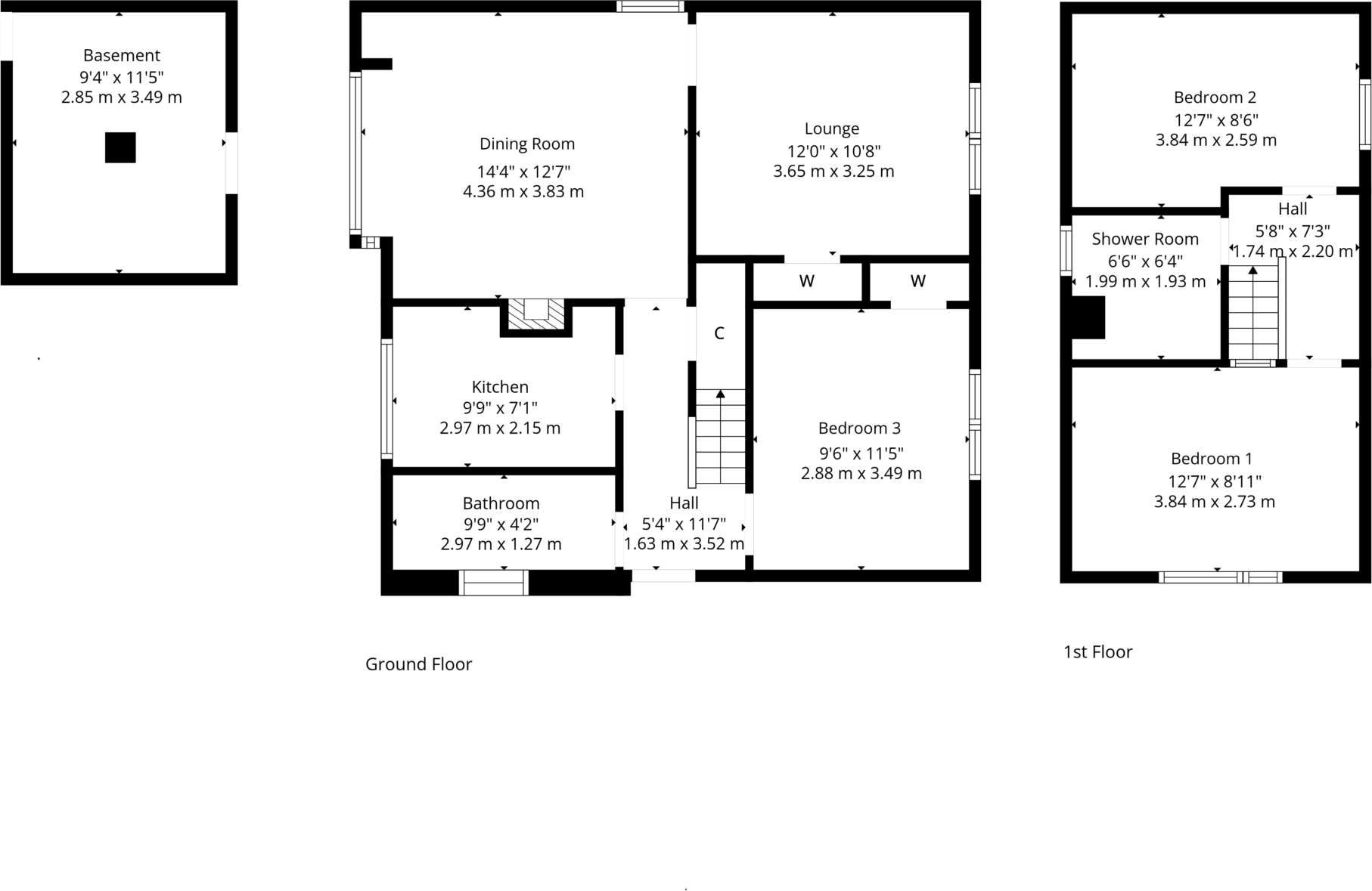
Set on a tucked-away corner plot in Clarkston, this three-bedroom semi-detached bungalow delivers versatile family living across two levels. A bright, ornate living room and separate dining room give formal entertaining space, while the galley-style kitchen is practical for everyday use. The principal bedroom and family bathroom are on the ground floor; two further bedrooms and a modern shower room sit upstairs, useful for children or home working.
Outside is a major asset: extensive wrap-around gardens, mature hedging and a driveway plus garage provide privacy, outdoor play space and storage. There is clear scope to extend or redevelop (subject to planning), so buyers seeking long-term growth can add value. The property is freehold, gas central heated, double glazed and presented in good order throughout.
Practical considerations are straightforward and important. Council tax is above average and the local area records higher deprivation indices, which some buyers will want to weigh against the home's strong schools, amenities and transport links. Any extension or development would require planning consent. The multi-level layout means not all accommodation is on one level, which may be relevant for mobility needs.
4 bedroom detached house for sale in 98 Beechlands Drive, Clarkston, G76 — £525,000 • 4 bed • 2 bath • 1862 ft²
4 bedroom detached bungalow for sale in Sundale Avenue, Clarkston, G76 — £440,000 • 4 bed • 2 bath • 1690 ft²
4 bedroom bungalow for sale in 3 Hillend Road, Clarkston, G76 — £350,000 • 4 bed • 1 bath • 1377 ft²
3 bedroom detached bungalow for sale in Seres Road, Clarkston, G76 — £395,000 • 3 bed • 1 bath • 1281 ft²
4 bedroom detached bungalow for sale in 5 Drumby Crescent, Clarkston, G76 — £435,000 • 4 bed • 2 bath • 1582 ft²
5 bedroom detached house for sale in Beechlands Drive, Clarkston, Glasgow, East Renfrewshire, G76 — £525,000 • 5 bed • 3 bath • 2025 ft²


























































































































































































































































