**Standout Features:**
- Large plot of land with full planning permission granted for 2 contemporary homes.
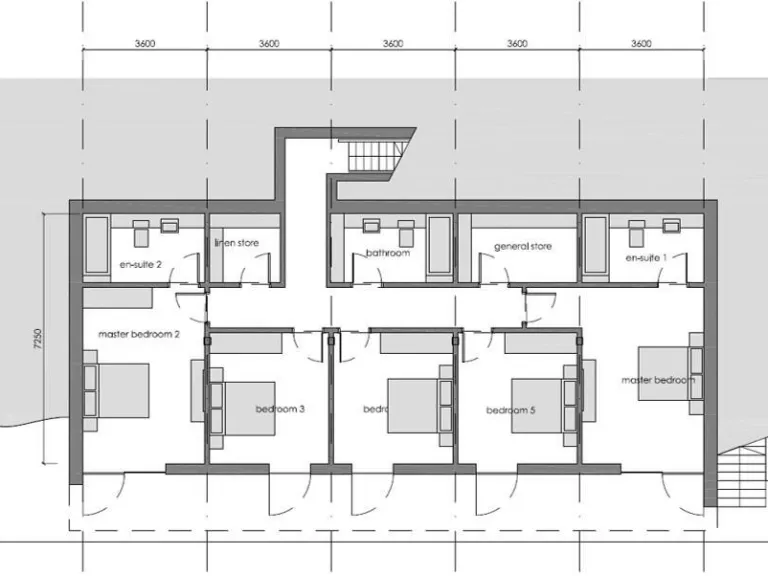
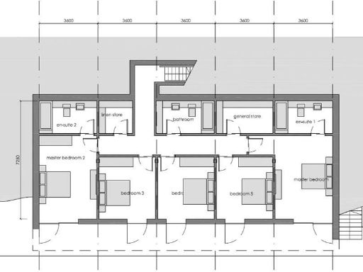
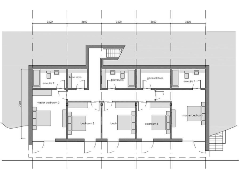
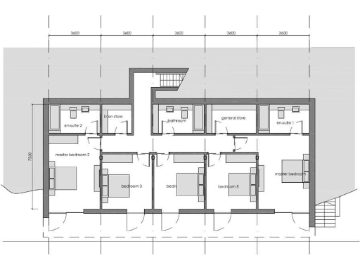
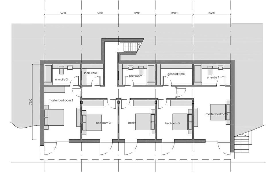
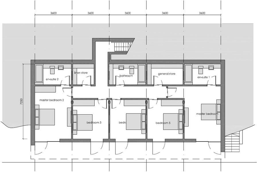
- Each property design includes 5 bedrooms and 3 bathrooms.
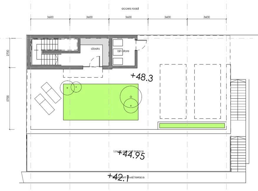
- Located in a desirable residential area with stunning open views.
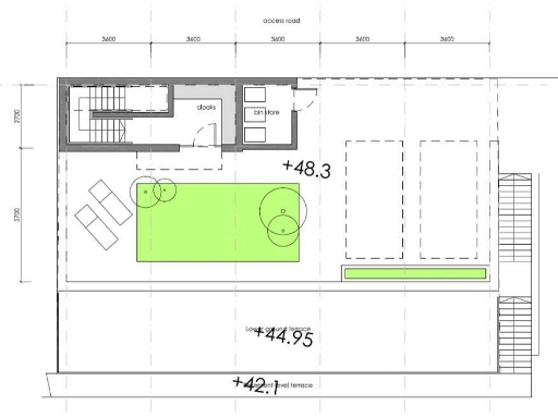
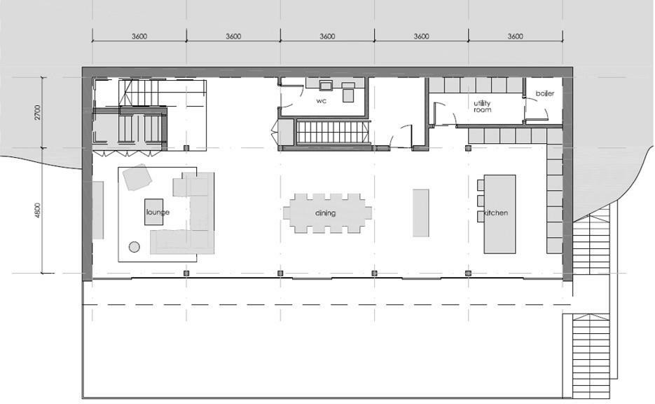
- Ample space for modern designs, with off-road parking and private gardens.
- Close to quality primary and secondary schools.
**Notable Concerns:**
- Planning reference is required for further verification.
- Potential buyers should confirm all conditions associated with land use.
**Property Summary:**
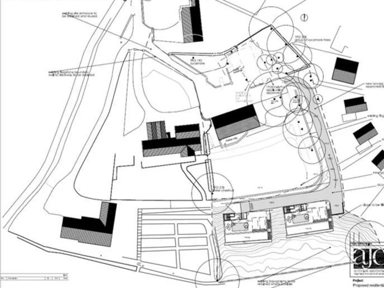
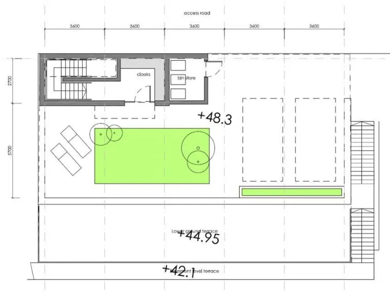
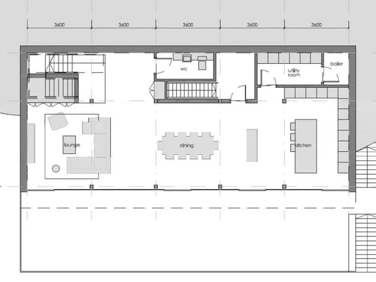
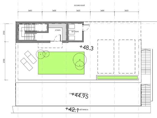
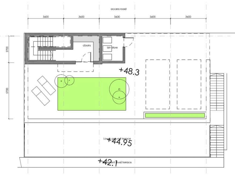
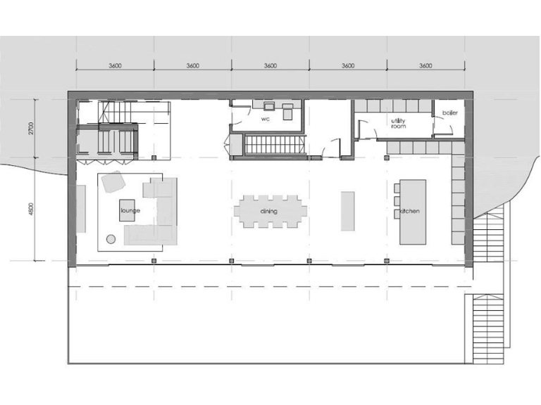
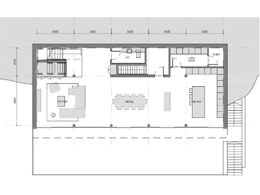
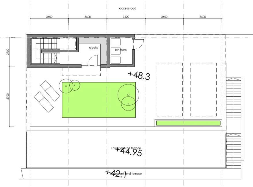
Discover a rare opportunity to develop two stunning contemporary homes in the highly desirable Bamford area of Rochdale. This spacious plot comes with full planning permission (Rochdale Planning Reference 20/00865/FUL) for two remarkable 5-bedroom, 3-bathroom residences. Nestled in a scenic environment, the land offers open views and is surrounded by similar high-end homes, establishing a sense of community and exclusivity. Each property has been designed to integrate modern living with outdoor terraces and dedicated off-street parking.
This well-positioned land is not just a footprint for construction; it's a canvas for future family memories or lucrative investment potential. With notable schools nearby, it's perfect for families or first-time buyers looking to craft their dream homes. Don’t miss this exceptional chance—land like this, with the flexibility for innovative designs, is sought after and unlikely to stay on the market for long.
Land for sale in Land off Bamford Way, Rochdale OL11 5NB , OL11 — £1,500,000 • 1 bed • 1 bath
Land for sale in Land adjacent to 4 Rudman Street , OL12 — £100,000 • 1 bed • 1 bath
Land for sale in Land at Falinge Fold, Healey, Rochdale OL12 6LE , OL12 — £180,000 • 1 bed • 1 bath • 1345 ft²
3 bedroom detached house for sale in Bury & Rochdale Old Road, Bamford, Rochdale OL10 — £550,000 • 3 bed • 2 bath • 7780 ft²
Land for sale in Rochdale Old Rd, Bury - Land With Planning For 5 Homes, BL9 — £200,000 • 3 bed • 2 bath
Land for sale in WHAM STREET & DUKE STREET, Heywood OL10 4QU, OL10 — £450,000 • 3 bed • 1 bath






























































































