**Standout Features:**
- Planning permission granted for 2 luxury three-storey detached houses (Application No 23-01090-FUL).
- Stunning rural views from the property.
- Located near Healey Dell Nature Reserve and Shawclough Village.
- Excellent local amenities within walking and cycling distance, including schools and recreational facilities.
- Very low crime rate in the area, ensuring a safe environment.
- Fast broadband and excellent mobile signal.
**Summary:**
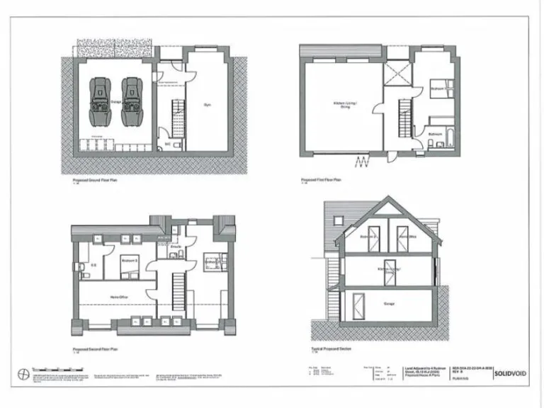
Discover a unique investment opportunity with this plot of land located adjacent to 4 Rudman Street, OL12. With planning permission in place for two luxurious three-storey detached homes, this property is poised for development. Each home is designed to maximize both space and breathtaking panoramic views, featuring striking layouts that include a gym/reception area, open-plan living spaces, and en-suite bedrooms.
Set within a vibrant community that boasts low crime rates and reputable schools—all within a short walk—this location is perfect for families and professionals alike. The surrounding landscape, including Healey Dell Nature Reserve, adds a touch of tranquility, ideal for those seeking a balance between nature and urban convenience. While the planning process has been established, it’s important for potential buyers to consider the initial groundwork necessary to bring this project to life. Don't miss out on this rare chance to secure a coveted piece of land—opportunities like this are hard to come by!
Land for sale in Land at Falinge Fold, Healey, Rochdale OL12 6LE , OL12 — £180,000 • 1 bed • 1 bath • 1345 ft²
Land for sale in Chadwick Hall Road, Bamford, Rochdale, OL11 — £390,000 • 1 bed • 1 bath • 632 ft²
Land for sale in Land adjacent to 34 Queen Street, Heywood OL10 4JY , OL10 — £55,000 • 1 bed • 1 bath • 1377 ft²
Land for sale in Land off Bamford Way, Rochdale OL11 5NB , OL11 — £1,500,000 • 1 bed • 1 bath
Land for sale in WHAM STREET & DUKE STREET, Heywood OL10 4QU, OL10 — £450,000 • 3 bed • 1 bath
Land for sale in Stubley View, Featherstall Road, Littleborough, OL15 8PJ , OL15 — £295,000 • 5 bed • 3 bath






























































