Compact, supported living near town amenities and transport links.
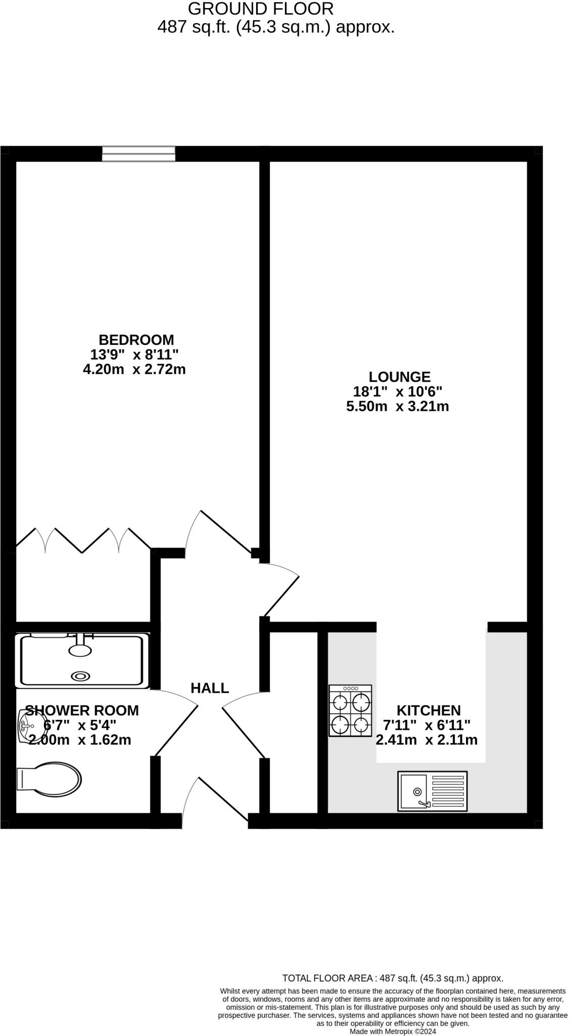
Top-floor, one-bedroom retirement apartment, chain-free
A top-floor one-bedroom retirement apartment offered chain-free, suitable for someone seeking a compact, low-maintenance home in central Sittingbourne. The flat has a fitted kitchen, living room and bedroom with fitted wardrobes, arranged within approximately 487 sqft of living space. The building is managed with an on-site warden, 24-hour care line, communal lounges and gardens, plus a guest room available for a small charge.
Practical features include double glazing and electric storage heating; the property is a leasehold unit constructed in the 1980s. The location is very walkable to the town centre and local shops, with a Tesco Metro, chemist, GP surgery and bus stops nearby. Broadband and mobile signals are reported as fast and excellent respectively, and there is no flood risk.
Costs and community factors are important: the annual service charge is high (approximately £5,760) and the tenure is leasehold, which will affect running costs and resale. The surrounding area has higher crime rates and is in a deprived district, which may be relevant for some buyers. Overall this is a practical retirement flat offering convenience, on-site support and communal facilities, but with above-average service charges and local social challenges.
1 bedroom retirement property for sale in Barkers Court, Sittingbourne, ME10 — £110,000 • 1 bed • 1 bath • 420 ft²
1 bedroom retirement property for sale in Barkers Court, Sittingbourne, ME10 — £87,000 • 1 bed • 1 bath • 369 ft²
1 bedroom retirement property for sale in West Lane, The Turrets West Lane, ME10 — £125,000 • 1 bed • 1 bath • 517 ft²
1 bedroom retirement property for sale in Barkers Court, Sittingbourne, Kent, ME10 — £98,000 • 1 bed • 1 bath • 369 ft²
1 bedroom ground floor flat for sale in West Lane, Sittingbourne, Kent, ME10 — £76,500 • 1 bed • 1 bath • 496 ft²
1 bedroom retirement property for sale in Canterbury Road, Sittingbourne, Kent, ME10 — £160,000 • 1 bed • 1 bath • 502 ft²










































































