Chain-free one-bedroom with communal garden and residents parking, ideal for over-55s.
Chain-free ground-floor one-bedroom, suitable for single occupant or couple
Residents’ off-street parking and pleasant communal garden
Double glazing and low-energy lighting fitted throughout
Electric storage heaters; running costs may be higher
Service charge approx £3,696 per year (average)
Lease length 89 years remaining; leasehold tenure
Flat is small — limited internal space and storage
Local area records higher-than-average crime rates
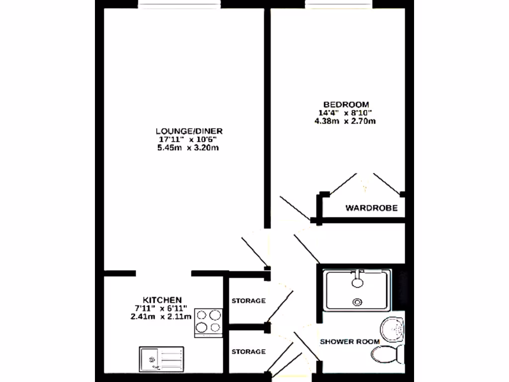
This ground-floor one-bedroom retirement apartment offers a compact, low-maintenance home for an over‑55 buyer seeking easy access and communal facilities. The accommodation includes a living/dining room, fitted kitchen, double bedroom and shower room, with useful built-in storage. Double glazing and low-energy lighting help with running costs.
Set in a purpose-built block with communal gardens and residents’ off-street parking, the property is chain-free and close to Sittingbourne town centre amenities and transport links, including the railway station and local bus routes. The communal grounds are pleasant and the layout suits someone who wants a simple, manageable home with nearby shops and services.
Notable practical points: heating is by electric storage heaters which can be costly, and the lease has 89 years remaining. Service charges average £3,696 per year and there is an elevated local crime rate in the area. The flat is small in overall size, so it’s best suited to a single occupant or couple who value convenience over space.
This is a straightforward retirement option for downsizers who want a low-maintenance property with communal support and good local transport. Buyers should budget for running costs (service charge and electric heating) and check lease details and building management before committing.
1 bedroom retirement property for sale in Barkers Court, Sittingbourne, ME10 — £110,000 • 1 bed • 1 bath • 420 ft²
1 bedroom ground floor flat for sale in West Lane, Sittingbourne, Kent, ME10 — £76,500 • 1 bed • 1 bath • 496 ft²
1 bedroom retirement property for sale in West Lane, The Turrets West Lane, ME10 — £125,000 • 1 bed • 1 bath • 517 ft²
1 bedroom flat for sale in Barkers Court, Sittingbourne, Kent, ME10 — £98,000 • 1 bed • 1 bath • 369 ft²
2 bedroom retirement property for sale in Barkers Court, Sittingbourne, ME10 — £175,000 • 2 bed • 1 bath • 689 ft²
1 bedroom retirement property for sale in Barkers Court, Sittingbourne, Kent, ME10 — £98,000 • 1 bed • 1 bath • 369 ft²






































