**Standout Features:**
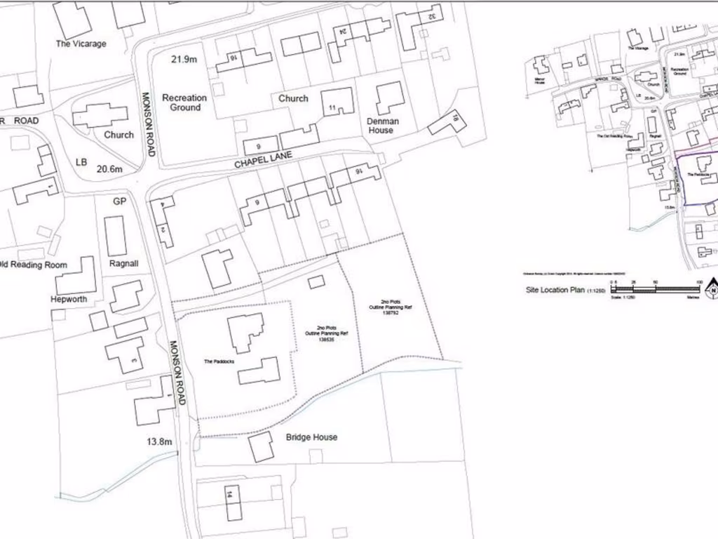
- Residential building plot with planning permission (Application No. 143365).
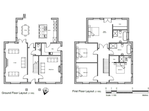
- Generous size of approximately 220.4 m2, expandable with roof space potential.
- Modern design with an open-plan kitchen diner, 4 bedrooms, living areas, and a double garage.
- Scenic rural location in Northorpe, surrounded by beautiful countryside.
- Ideal for family living with ample space and potential for landscaping.
**Potential Downsides:**
- Currently limited amenities nearby, with average broadband speeds and known slow mobile signal.
- Local schools have varied Ofsted ratings, with some rated as ‘Requires Improvement.’
**Summary:**
Presenting an exciting investment opportunity, this residential building plot on Monson Road in Northorpe offers the perfect canvas for your dream home. With granted planning permission for a spacious detached dwelling featuring approximately 220.4 m2 of living space plus additional rooms in the roof, this property is ideal for families seeking a modern, versatile layout. The ground floor accommodates a family-friendly, open-plan kitchen diner, a utility room, living room, and sitting room, while the upper level boasts four bedrooms, including a principal en-suite, all nestled within a tranquil rural setting.
The charming village of Northorpe provides a peaceful lifestyle amidst picturesque countryside views—perfect for those who value serenity. Although amenities are limited and broadband access is slow, this plot's generous size and potential for beautifully landscaped gardens make it a tantalizing prospect. Don’t miss the chance to secure this unique opportunity; properties with such flexibility and permission are rare in this desirable area!
Land for sale in Monson Road, Northorpe, Gainsborough, DN21 — £150,000 • 1 bed • 1 bath • 2110 ft²
Plot for sale in Residential Building Plot, Off Monson Road, Northorpe, Gainsborough, DN21 4AF, DN21 — £150,000 • 1 bed • 1 bath
Land for sale in Copplestones, Scawby Road, Scawby Brook, Brigg, Lincolnshire, DN20 9JU, DN20 — £80,000 • 1 bed • 1 bath
Land for sale in Building Plot Adjacent To Glentworth Road, Kexby, DN21 — £165,000 • 1 bed • 1 bath • 5328 ft²
Land for sale in Land to the Rear, 3A & B Church Street, DN21 — £115,000 • 3 bed • 2 bath • 1636 ft²
Plot for sale in Hawthorne Close, Glentworth, Gainsborough, DN21 — £100,000 • 4 bed • 2 bath • 894 ft²






















