TW12 3JQ - 3 bed spacious corner bungalow in Cotswold Road, TW12 3JQ

View on Property Piper

3 bedroom bungalow for sale in Cotswold Road, Hampton, TW12

Summary - 1 COTSWOLD ROAD HAMPTON TW12 3JQ

3 bed 2 bath Bungalow

Flexible family home with studio, parking and excellent local schools.
Large corner plot with decent private garden
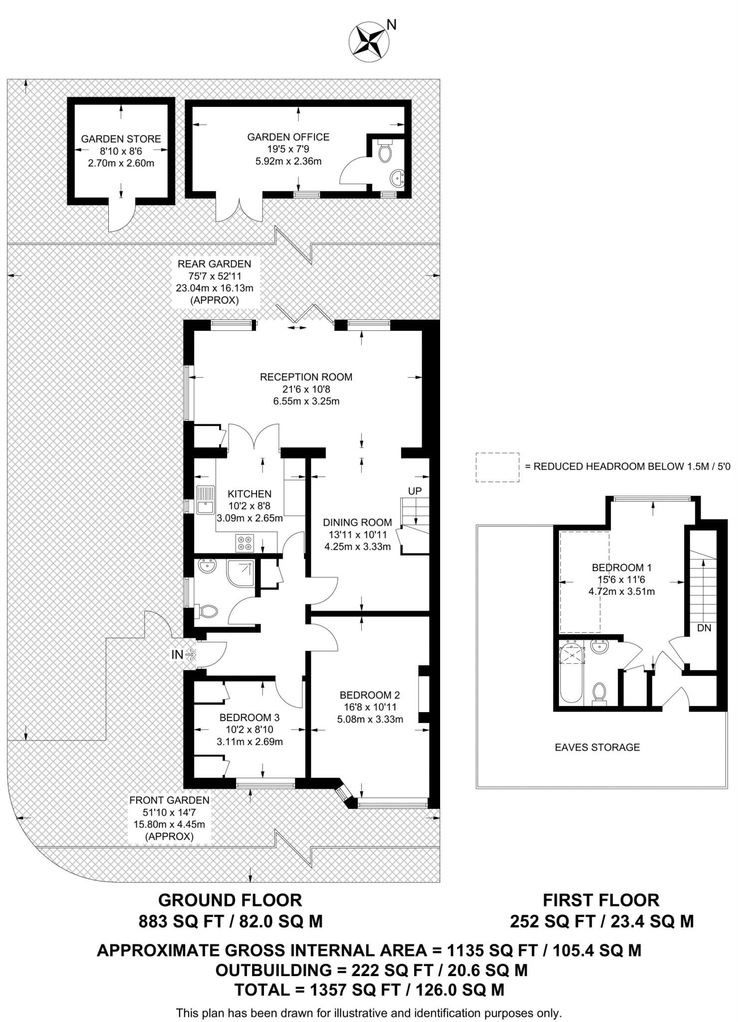
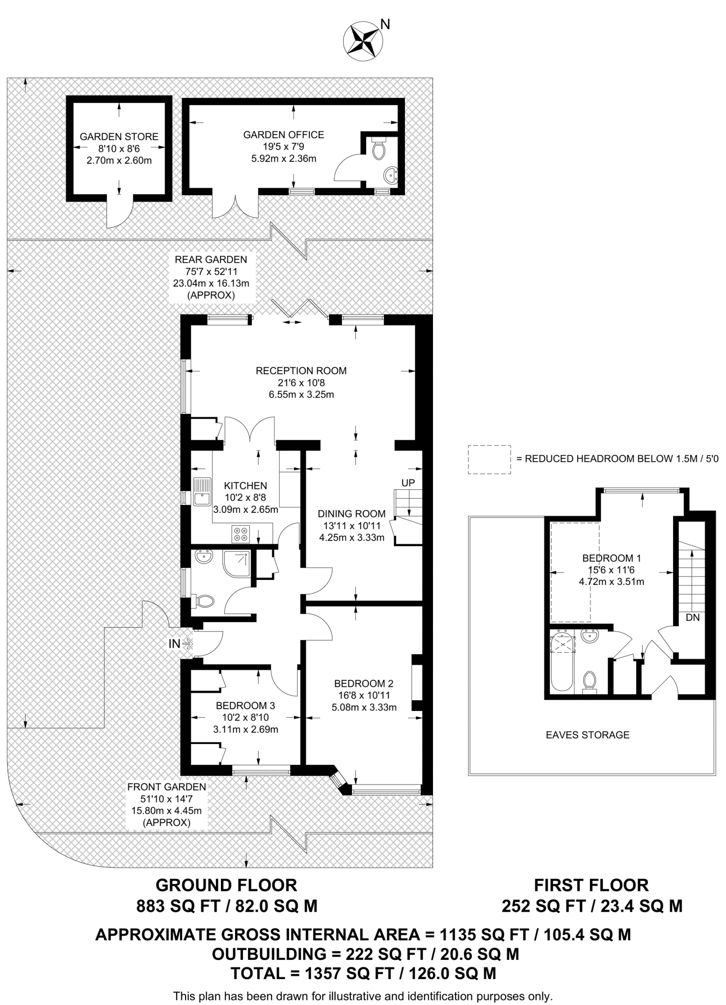
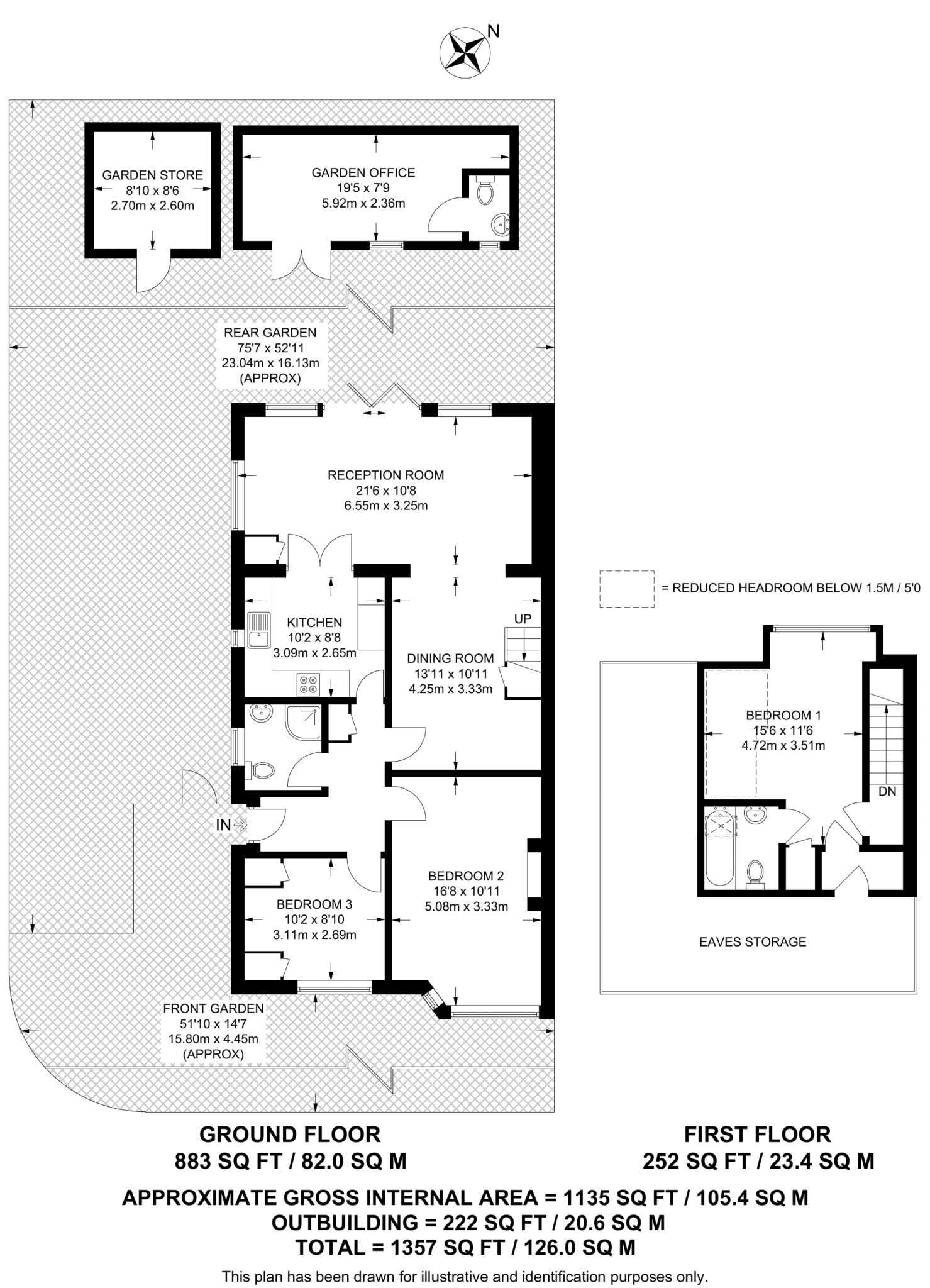
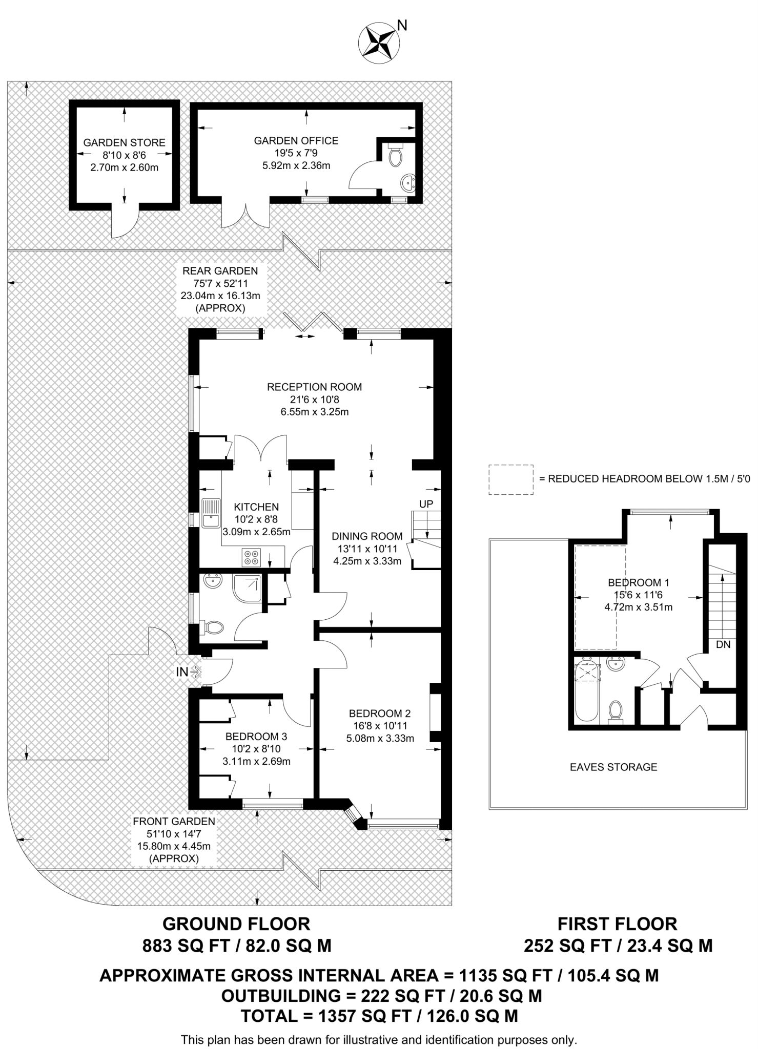
Set on a generous corner plot in a quiet Hampton road, this spacious 3-bedroom bungalow offers flexible family living across a sizable 1,357 sq ft footprint. The principal rooms are bright and well-proportioned, with a modern kitchen that opens onto the garden and a converted first-floor bedroom adding adaptable space. A separate studio/office with its own WC supports working from home or hobby use.

Practical features include two bathrooms, off-street parking to the rear and double glazing fitted after 2002. The property sits close to highly regarded schools, local shops and green recreational spaces, and benefits from fast broadband and excellent mobile signal—useful for commuters and families alike.

The house is solid-brick construction from the late 1960s/early 1970s and the exterior and some internal areas will benefit from updating. Insulation in the walls is assumed absent, so buyers should budget for energy-efficiency improvements. Overall this freehold bungalow suits buyers seeking generous single-storey living with clear scope to personalise and add value.

Property Details

Image Descriptions

Floorplan Description

Rooms

Textual Property Features

Target Audience

AI Tags

Detected Visual Features

EPC Details

Nearby Schools

Nearest Bars And Restaurants

,,,,}

Nearest General Shops

,,}

Nearest Grocery shops

,,}

Nearest Supermarkets

,,}

Nearest Religious buildings

,,}

Nearest Medical buildings

,,,}

Nearest Airports

,}

Nearest Leisure Facilities

,,,,}

Nearest Tourist attractions

,,}

Nearest Train stations

,,,,}

Nearest Bus stations and stops

,,,,}

Nearest Hotels

,,}

Tags

Local Market Stats

Similar Properties

Meta

High Res Images

Compatible Images

Low res Images

Thumbnails

Raw Images

High Res Floorplan Images

Compatible Floorplan Images

Low res Floorplan Images

FloorplanImages Thumbnail

Raw Floorplan Images