Well-located property with garage, garden and convenient commuter links.
Three bedrooms and two bathrooms suitable for family living
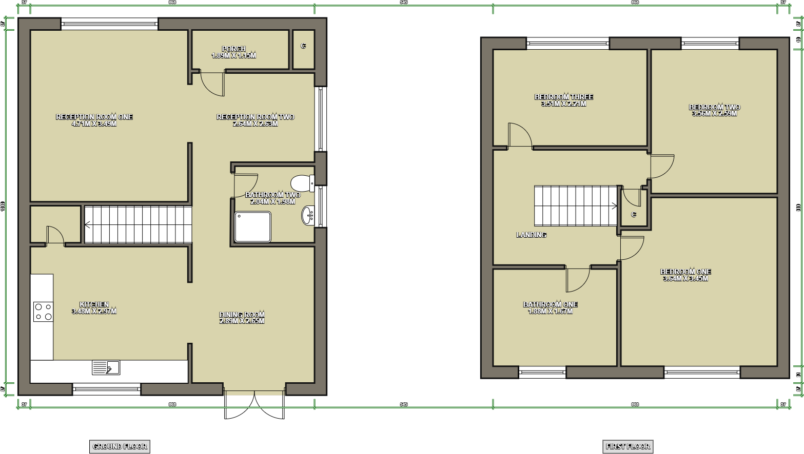
This three-bedroom semi-detached home on Exeter Drive offers practical family accommodation with a private garden, detached garage and long driveway for multiple cars. The layout includes a small porch and snug, a main reception and dining area that opens to the kitchen, plus a ground-floor shower room and a first-floor family bathroom. At around 869 sq ft the property is an average-sized, well-laid-out house suited to everyday family life.
Location is a strong selling point: local shops, bus links and good primary schools are close by, and Rivington Pike is a short drive for countryside access and weekend walks. Commuter links are convenient for nearby towns and the wider Wigan area. The plot is decent with an enclosed rear garden offering privacy and space for children or pets.
Be upfront about a few practical points: the EPC is rated D and could benefit from energy improvements, and the property sits in a medium flood-risk zone, which may affect insurance and future measures. The house is described as average-sized with standard fixtures and will suit buyers wanting a ready-to-live-in home rather than a high-end finish.
Overall this home will suit families or first-time buyers seeking a comfortable, well-located property with outdoor space and parking. It offers sensible potential for incremental improvements (insulation, heating or energy upgrades) while delivering immediate liveability and easy access to local amenities and schools.
3 bedroom semi-detached house for sale in Wigan Road, Aspull, Wigan, WN2 1DU, WN2 — £155,000 • 3 bed • 1 bath • 591 ft²
3 bedroom semi-detached house for sale in Kirkless Street, Aspull, WN2 — £300,000 • 3 bed • 2 bath • 1160 ft²
3 bedroom semi-detached house for sale in Kirkless Street, Aspull, WN2 — £150,000 • 3 bed • 1 bath • 749 ft²
3 bedroom semi-detached house for sale in Balcarres Road, Aspull, WN2 — £180,000 • 3 bed • 2 bath • 1056 ft²
3 bedroom semi-detached house for sale in St. Davids Crescent, Aspull, WN2 1SZ, WN2 — £180,000 • 3 bed • 1 bath • 672 ft²
3 bedroom semi-detached house for sale in Granary Square, Aspull, WN2 — £260,000 • 3 bed • 2 bath • 1128 ft²










































































