Large south-facing garden and woodland access for family living.
10-year structural warranty included
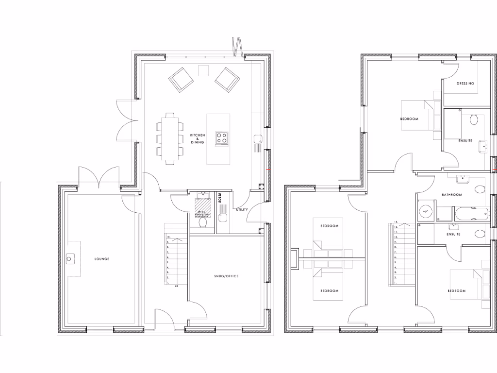
This substantial four-bedroom detached new build sits on a very large plot in a village setting, ideal for families who want space and countryside access. The home is built with efficiency and convenience in mind: solar panels, underfloor heating throughout, a natural slate roof and an EV charge point linked to the double garage reduce running costs and modernise daily life. A 10-year structural warranty provides reassurance for long-term ownership.
The ground floor features an integrated kitchen opening toward a lounge with wood burner views and direct access to an Indian sandstone patio and south-facing garden — a strong setup for indoor-outdoor living and family gatherings. Practical finishes include Karndean LVT flooring, a dressing room to the principal bedroom, and a walk-in shower in the contemporary bathroom suite.
Set on a private road with landscaped communal greens and a woodland walk providing direct access to Willingham Woods and the Lincolnshire Wolds, the location balances village calm with easy access into Market Rasen. Local schools are rated Good and the area is described as affluent, with excellent mobile signal and fast broadband — useful for home working or study.
Buyers should note a small annual service charge of £310.86 for communal maintenance and that council tax banding is still to be confirmed. As a new build, some fittings may vary from illustrations; purchasers should check full specification and appliance warranties before exchange.
4 bedroom detached house for sale in 1 Woodpecker Close, Market Rasen, LN8 — £550,000 • 4 bed • 3 bath • 1647 ft²
3 bedroom detached bungalow for sale in 19 Forest Way, Market Rasen, LN8 — £490,000 • 3 bed • 2 bath • 1228 ft²
4 bedroom detached house for sale in 2 Barn Owl Close, Market Rasen, LN8 — £450,000 • 4 bed • 3 bath • 2218 ft²
2 bedroom semi-detached house for sale in 1 Kestrel Close, Market Rasen, LN8 — £215,000 • 2 bed • 1 bath
4 bedroom detached house for sale in 4 Woodpecker Close, Market Rasen, LN8 — £500,000 • 4 bed • 3 bath
3 bedroom detached bungalow for sale in 4 Buzzard Close, Market Rasen, LN8 — £495,000 • 3 bed • 2 bath • 1497 ft²






















































