**Key Features:**
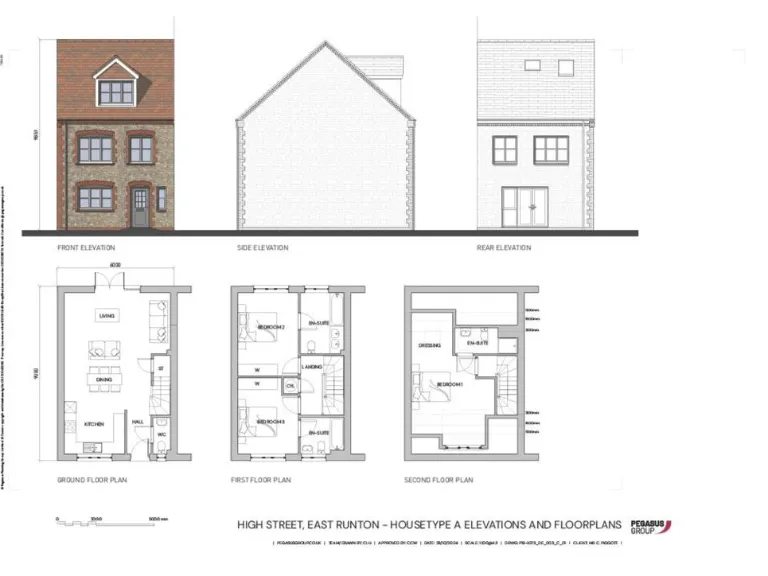
- Rare development opportunity with planning permission approved for four 3-bedroom semi-detached houses.
- Desirable coastal location in East Runton with potential for additional units (subject to further planning).
- Large plot size with gardens and off-street parking for each property.
- Chain-free sale with a freehold tenure, offering flexibility and security.
- Ideal for investors or developers seeking a lucrative venture in a picturesque village setting.
Discover an exceptional investment opportunity in the tranquil coastal village of East Runton, where full planning permission has been granted for the construction of four modern semi-detached homes. Each property is designed with spacious living in mind, featuring generous-sized gardens and two off-road parking spaces. The area's stunning sandy beach, diverse amenities, and tight-knit community create an appealing backdrop for family living or holiday rentals, making it a prime prospect for both seasoned developers and first-time investors.
While the properties promise contemporary comfort, the expansive plot presents the potential for further development subject to obtaining additional planning permissions, ensuring room for long-term value growth. Enjoy the convenience of local schools, shopping, and outdoor activities, all underlined by a peaceful village atmosphere. This opportunity to invest in a burgeoning community by the North Norfolk coast is not to be missed—secure your chance to shape the future of this sought-after locale today!
3 bedroom cottage for sale in East Runton, Cromer, NR27 — £500,000 • 3 bed • 2 bath • 1095 ft²
4 bedroom detached house for sale in West Runton, Cromer, Norfolk, NR27 — £770,000 • 4 bed • 2 bath • 2000 ft²
3 bedroom detached house for sale in Top Common, East Runton, NR27 — £475,000 • 3 bed • 1 bath • 1346 ft²
4 bedroom detached house for sale in Church Lane, West Runton, NR27 — £750,000 • 4 bed • 3 bath • 2398 ft²
3 bedroom detached house for sale in Cromer Road, West Runton, NR27 — £450,000 • 3 bed • 2 bath • 1109 ft²
2 bedroom detached bungalow for sale in West Runton, NR27 — £375,000 • 2 bed • 1 bath • 837 ft²










