SW4 7RT - 2 bedroom flat for sale in Medwin Street, SW4

View on Property Piper

2 bedroom flat for sale in Medwin Street, SW4

Summary - 7 MEDWIN STREET LONDON SW4 7RT

2 bed 1 bath Flat

**Standout Features:**
- Two bedrooms with potential to convert one into a home office
- Private garden and bedroom terrace
- Own entrance with a Victorian conversion
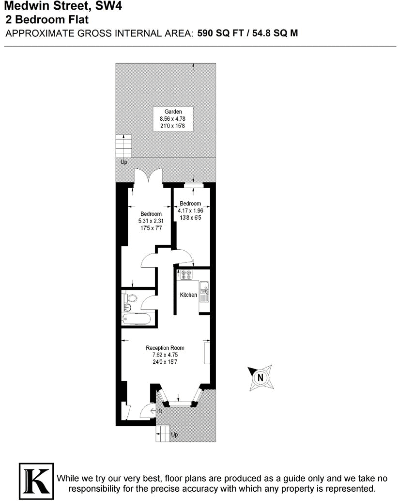
- Approximately 590 square feet of living space
- Chain-free sale with share of freehold granted upon completion
- Convenient location near Brixton and Clapham High Streets
- Fast broadband and excellent mobile signal

**Concerns:**
- Leasehold tenure
- Property requires personal touches and potential renovation

**Summary Description:**
This delightful Victorian two-bedroom apartment is a hidden gem nestled between Clapham and Brixton, offering your own private entrance that leads to charming living spaces bathed in natural light. Boasting nearly 600 square feet, the open-plan reception area features a lovely bay window and a wrap-around kitchen, making it the perfect setting for cozy evenings or entertaining friends.

Both bedrooms provide ample space, with the principal bedroom offering direct access to a serene terrace, ideal for unwinding after a busy day. The property is completed by a low-maintenance private garden, ready for you to landscape into your outdoor retreat. This is a fantastic opportunity for first-time buyers or investors looking to add their personal touch to a charming home in a vibrant community.

With quick access to central Brixton's lively amenities, including bustling markets, nightlife, and parks, plus excellent transport links to the Victoria and Northern lines all within a ten-minute walk, this property combines urban living with a cozy, secure sanctuary. Don’t miss the chance to claim this charming flat as your own!

Property Details

Brochure Descriptions

Image Descriptions

Floorplan Description

Rooms

Textual Property Features

Detected Visual Features

EPC Details

Nearby Schools

Nearest Bars And Restaurants

,,,,}

Nearest General Shops

,,}

Nearest Grocery shops

,,}

Nearest Supermarkets

,,}

Nearest Religious buildings

,,}

Nearest Medical buildings

,,,}

Nearest Airports

,,}

Nearest Leisure Facilities

,,,,}

Nearest Tourist attractions

,,}

Nearest Train stations

,,,,}

Nearest Bus stations and stops

,,,,}

Nearest Hotels

,,}

Tags

Local Market Stats

AirBnB Data

Similar Properties

Meta

High Res Images

Compatible Images

Low res Images

Thumbnails

Raw Images

High Res Floorplan Images

Compatible Floorplan Images

Low res Floorplan Images

FloorplanImages Thumbnail

Raw Floorplan Images