Spacious village-edge home with expansive gardens and tennis court, ideal for family living.
Grade II listed farmhouse — works likely to require listed consent
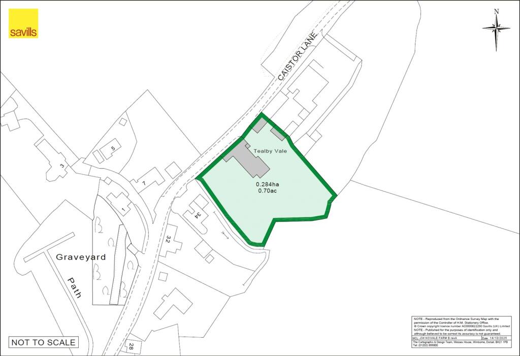
Set on the edge of Tealby with open countryside to the rear, this substantial Grade II listed farmhouse blends authentic period character with contemporary comforts. The heart of the home is an expansive open-plan kitchen and breakfast room with panoramic glazing and a part-glazed roof, opening to formal and informal reception rooms arranged for family life and entertaining.
Four double first-floor bedrooms include a generous principal suite with triple-aspect views across the gardens and grounds. Accommodation totals nearly 4,913 sq ft, with a large luxury family bathroom, two further shower rooms and an additional ground-floor shower room. Outside, the southwest-facing gardens, paved terrace and private tennis court sit within about 0.7 acres, with a gravel driveway, detached garage, store and a separate brick outbuilding.
Practicalities to note: the property is Grade II listed and lies in a conservation area — works will be restricted and may require permissions. The EPC rating is D and council tax is described as expensive. An additional 21.66 acres of land is available only by separate negotiation, not included in the quoted price.
5 bedroom detached house for sale in Rasen Road, Tealby, Market Rasen, LN8 — £650,000 • 5 bed • 3 bath • 1401 ft²
4 bedroom detached house for sale in Church Lane, Tealby, Market Rasen, Lincolnshire, LN8 — £550,000 • 4 bed • 1 bath • 2468 ft²
4 bedroom detached house for sale in The Manor House, Snarford, Market Rasen, Lincolnshire, LN8 — £795,000 • 4 bed • 3 bath • 3664 ft²
4 bedroom detached house for sale in Rasen Road, Tealby, Lincolnshire, LN8 — £775,000 • 4 bed • 3 bath • 1572 ft²
4 bedroom detached house for sale in Westlyn, Thorpe Lane, Tealby, Market Rasen, Lincolnshire, LN8 3XJ, LN8 — £725,000 • 4 bed • 2 bath • 2064 ft²
6 bedroom detached house for sale in Heighington House, 4 High Street, Heighington, Lincoln, LN4 — £950,000 • 6 bed • 5 bath • 5486 ft²






















































































