**Standout Features:**
- Beautifully finished four-bedroom detached Georgian Revival home
- Two spacious reception rooms with wood-burning stoves
- Principal bedroom with en-suite bathroom; additional guest bedroom with en-suite shower room
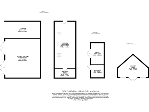
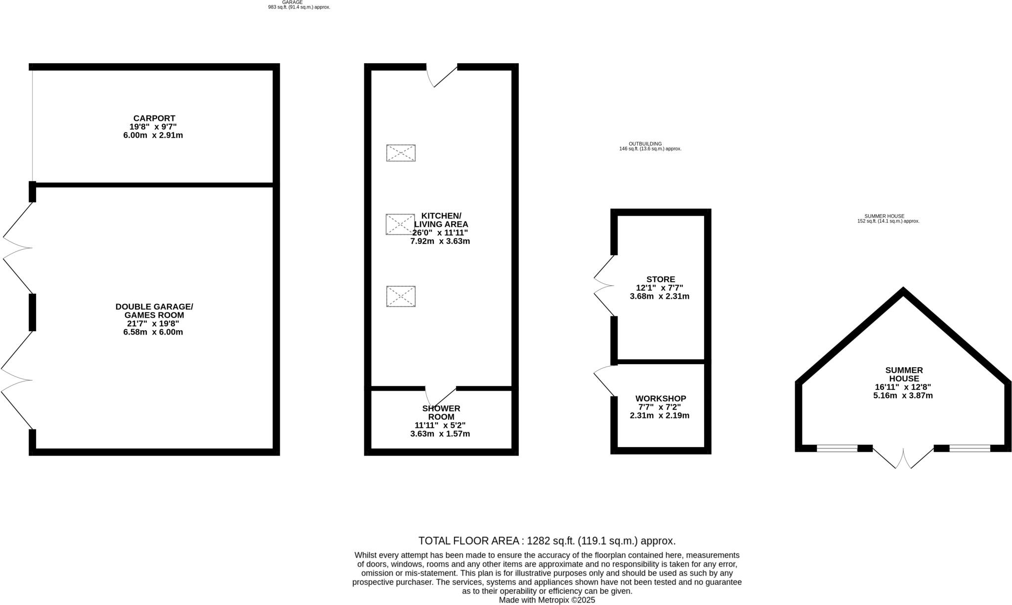
- Modern guest apartment above a detached triple bay garage, ideal for visitors or rental income
- Manicured gardens with stone patios and a summer house for outdoor entertainment
- Excellent location in the sought-after village of Tealby
- Electric vehicle charging station and fast broadband
**Summary:**
Step into this elegantly designed four-bedroom Georgian Revival home nestled in the charming village of Tealby, renowned for its vibrant community and stunning countryside views. Ideal for families or investors, the property boasts spacious reception areas with traditional stone fireplaces, a modern open-plan kitchen/dining area that flows seamlessly onto landscaped gardens, and luxurious en-suite accommodations. The additional guest apartment above the triple garage offers a wealth of potential for hosting visitors or generating rental income.
With its meticulously manicured gardens featuring stone patios and inviting outdoor spaces, this residence offers serenity and a spot for entertaining. Furthermore, local amenities including a well-regarded primary school and recreational facilities are just a stone's throw away, enhancing the area's appeal. While you’ll enjoy comfort and style throughout, the property is ready for your personal touch or enhancements to suit your lifestyle.
Don’t miss the opportunity to own a piece of this exclusive village charm; properties like this are rare and in high demand. Schedule your viewing today to secure your tranquil escape in beautiful Tealby!
4 bedroom detached house for sale in Church Lane, Tealby, Market Rasen, Lincolnshire, LN8 — £550,000 • 4 bed • 1 bath • 2468 ft²
4 bedroom detached house for sale in Springfields, Tealby, LN8 — £550,000 • 4 bed • 3 bath • 1680 ft²
2 bedroom house for sale in Caistor Lane, Tealby, Market Rasen, LN8 — £345,000 • 2 bed • 1 bath • 837 ft²
2 bedroom cottage for sale in Front Street, Tealby, LN8 — £310,000 • 2 bed • 1 bath • 939 ft²
4 bedroom detached house for sale in Rasen Road, Tealby, LN8 — £400,000 • 4 bed • 2 bath • 1830 ft²
5 bedroom detached house for sale in The Old Vicarage, 2 Caistor Lane, Tealby, Market Rasen, LN8 — £699,950 • 5 bed • 2 bath • 3709 ft²


























































































































































































