Planning-ready coastal infill ideal for small-scale investors and developers.
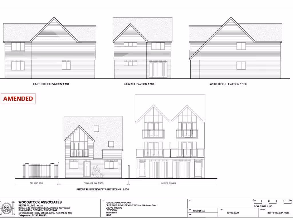
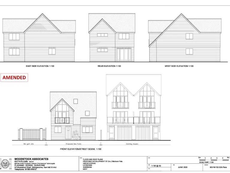
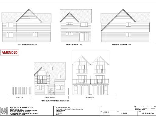
Full planning permission for two 2-bed, 1-bath apartments granted
Short-range uninterrupted sea and beach views (subject to clearance)
Small, freehold roadside plot — currently overgrown
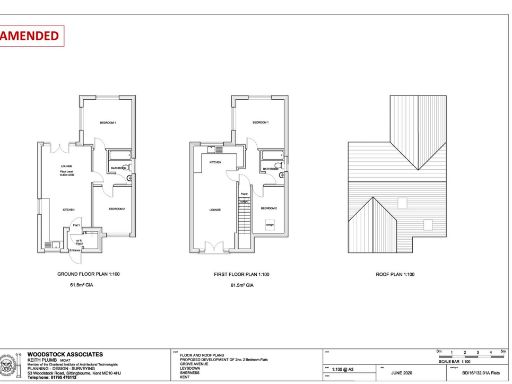
Includes garage and private garden area in the scheme
High local crime and very deprived area; affects yields and costs
Slow broadband speeds; excellent mobile signal
Small plot size limits development scale and layout flexibility
Good public transport and wide range of local seaside amenities
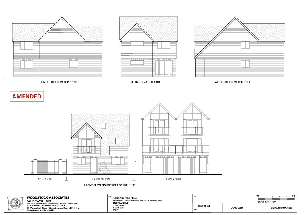
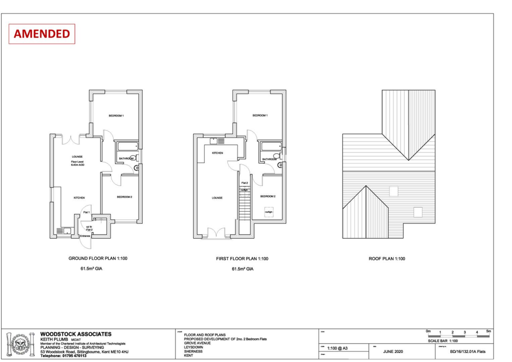
This small freehold plot on Grove Avenue arrives with full planning permission to build two new 2-bedroom, 1-bath apartments — a ready-made development opportunity for investors or builders. The proposed scheme features open-plan living areas and benefits from short-range uninterrupted sea and beach views, subject to final clearance and construction. The site sits directly off a residential street with existing kerb and footway and an integral garage and garden area shown on plans.
The location offers immediate seaside appeal and proximity to local amenities including shops, cafes, pubs and a recreation ground. Public transport links are good and mobile signal is excellent, supporting lettable units aimed at holiday or long-term rental markets. Flood risk is nil.
Buyers should note notable local challenges: the neighbourhood has high crime and the wider area is very deprived, which will influence rental yield, insurance costs and resale. Broadband speeds are slow and the plot is small and currently overgrown, so clearing and careful design will be required to maximise the permitted scheme.
Overall this is a compact, planning-ready coastal infill suitable for a focused developer or investor seeking a low-entry seaside project. The combination of granted consent and visible sea aspects makes it an attractive short-term build-and-let or resale prospect, provided the social and infrastructure constraints are factored into purchase and financing assumptions.
Plot for sale in Fleetwood Close, Minster On Sea, Sheerness, ME12 — £95,000 • 1 bed • 1 bath
Residential development for sale in Sea Street, Herne Bay, CT6 8JY, CT6 — £200,000 • 1 bed • 1 bath
Plot for sale in East Cliff Parade, Herne Bay, Kent, CT6 — £295,000 • 1 bed • 1 bath
Land for sale in Land at Plover Road, Minster on Sea, Kent, ME12 3BT, ME12 — £7,250,000 • 1 bed • 1 bath
Plot for sale in Barton Hill Drive, Minster on Sea, ME12 — £450,000 • 1 bed • 1 bath
Land for sale in Faversham Road, Seasalter, Whitstable, CT5 — £200,000 • 1 bed • 1 bath • 10125 ft²






















