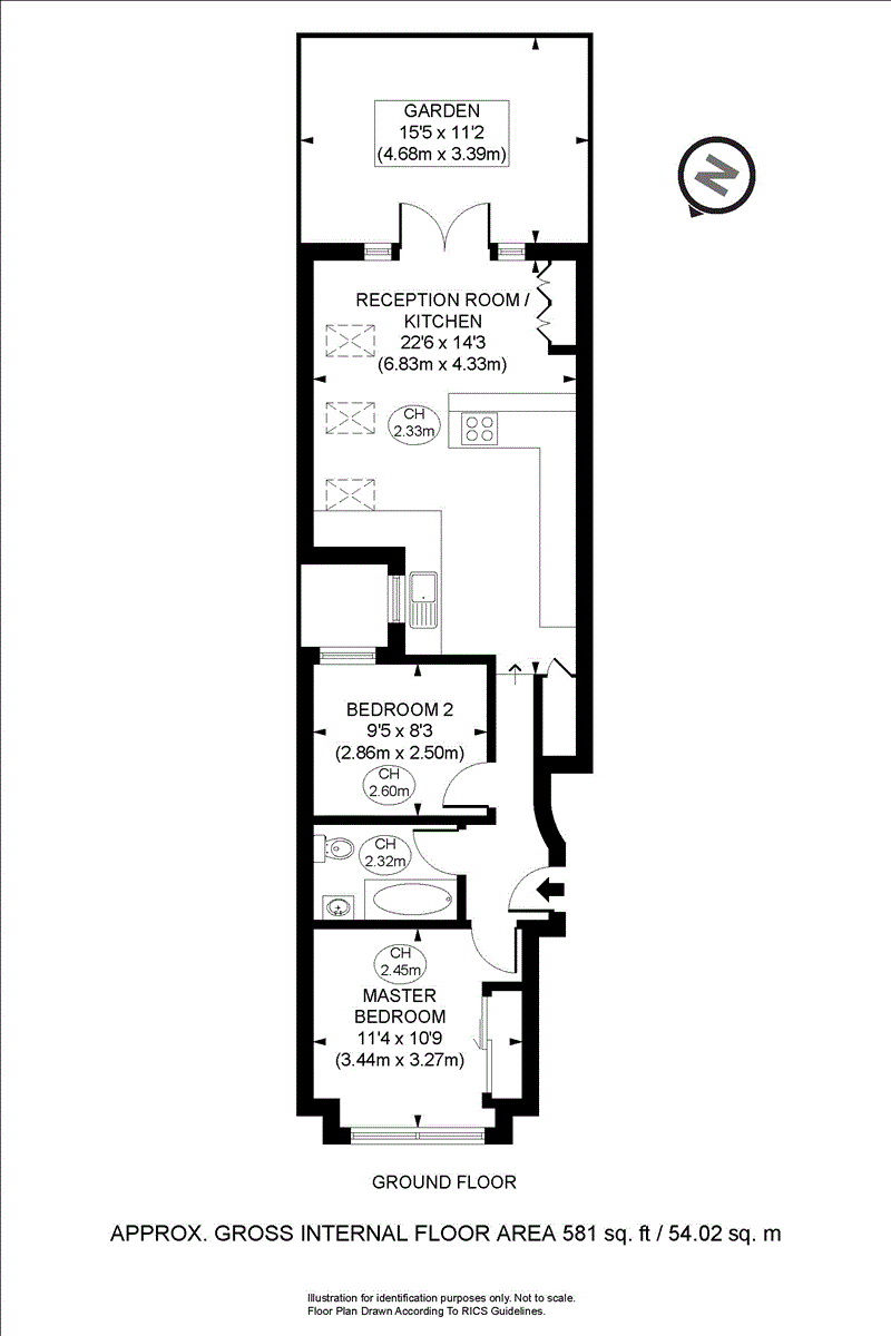
Refurbished two-double garden flat with skylights, close to Thames and Hammersmith amenities..
Two double bedrooms and stylish bathroom
Open-plan 22'6" x 14'3" reception/kitchen with skylights
Private, secluded south-facing rear garden (small)
Recently refurbished throughout; turnkey condition
Share of freehold; double glazing (install date unknown)
Compact overall size ~581 sq ft — small for family living
Area has above-average crime and very high deprivation
EPC Band D; cavity walls assumed uninsulated
A bright, newly refurbished two-double-bedroom ground-floor flat with a private south-facing garden, well suited to a first-time buyer or couple seeking an inner-London garden home. The open-plan reception and kitchen benefit from skylights, hardwood floors and wide French doors that bring natural light straight into the living space and onto the paved patio.
The layout is compact but efficiently planned: two double bedrooms and a stylish bathroom alongside a fitted kitchen with breakfast bar. The property comes with a share of freehold and double glazing; heating is by mains gas boiler and radiators. Its location on Biscay Road puts the Thames Path, riverside restaurants and Hammersmith Broadway shopping within easy walking distance.
Buyers should note the flat is small in overall size (approx 581 sq ft) and sits in an area with above-average crime and very high deprivation indices — factors to consider for those prioritising long-term resale or rental returns. The building dates from the 1930s–40s; cavity walls are assumed uninsulated. EPC Band D and council tax Band D reflect the present energy and cost profile.
Overall, this is a turnkey inner-city garden flat that offers contemporary finish, outdoor space and excellent local amenities, balanced by compact accommodation and some area-level drawbacks. Early viewing is recommended to appreciate the light, finishes and private garden.
 2 bedroom flat for sale in Hammersmith Grove, London W6 — £875,000 • 2 bed • 2 bath • 1091 ft²
 2 bedroom flat for sale in Hammersmith Grove, London W6 — £875,000 • 2 bed • 2 bath • 1091 ft² 1 bedroom apartment for sale in Gastein Road, Hammersmith, London, W6 — £499,950 • 1 bed • 1 bath • 446 ft²
 1 bedroom apartment for sale in Gastein Road, Hammersmith, London, W6 — £499,950 • 1 bed • 1 bath • 446 ft² 2 bedroom flat for sale in Brackenbury Road W6 — £630,000 • 2 bed • 1 bath • 614 ft²
 2 bedroom flat for sale in Brackenbury Road W6 — £630,000 • 2 bed • 1 bath • 614 ft² 2 bedroom flat for sale in Petley Road, Hammersmith, W6 — £650,000 • 2 bed • 1 bath • 616 ft²
 2 bedroom flat for sale in Petley Road, Hammersmith, W6 — £650,000 • 2 bed • 1 bath • 616 ft² 2 bedroom flat for sale in Goodwin Road, Shepherd's Bush, W12 — £750,000 • 2 bed • 1 bath • 861 ft²
 2 bedroom flat for sale in Goodwin Road, Shepherd's Bush, W12 — £750,000 • 2 bed • 1 bath • 861 ft² 2 bedroom apartment for sale in Tasso Road, Hammersmith , London, W6 — £750,000 • 2 bed • 1 bath • 718 ft²
 2 bedroom apartment for sale in Tasso Road, Hammersmith , London, W6 — £750,000 • 2 bed • 1 bath • 718 ft²






















































