**Standout Features:**
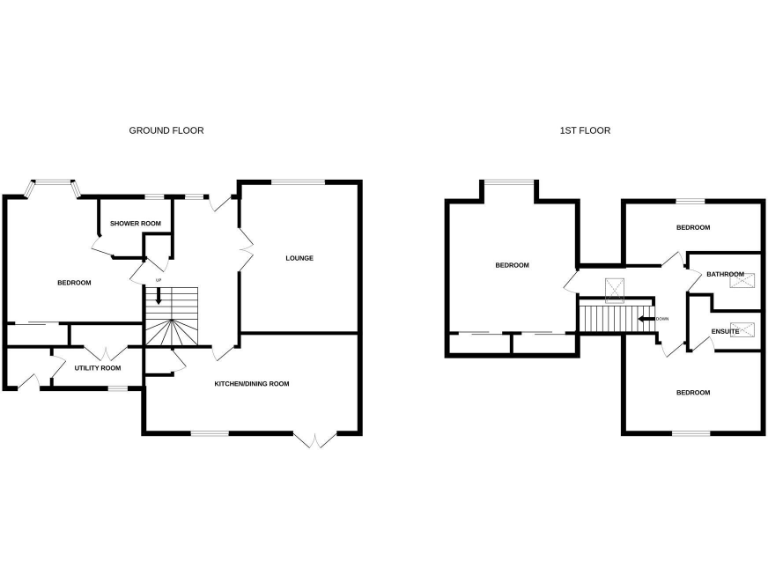
- Spacious, well-proportioned detached four-bedroom villa
- Stunning rural countryside views
- Double garage and ample parking space
- Generous kitchen/dining room with integrated appliances
- Utility room with included appliances
- En-suite shower room in one of the bedrooms
- Notable natural light throughout the property
- Quiet location near Kirkhill
**Potential Concerns:**
- Average mobile signal and internet speed
- Property situated in a region classified as "very deprived"
- Council tax rate above average
Discover the perfect family retreat in this impressive four-bedroom detached villa located in the picturesque Inchmore area, just a short drive from Kirkhill. This property offers an inviting blend of comfort and functionality, featuring spacious living areas filled with natural light, a well-equipped kitchen/dining room at its heart, and four generous double bedrooms, including one with an en-suite.
The serene surroundings provide stunning views and a tranquil atmosphere, while the double garage and ample parking ensure convenience for all your needs. The outdoor space is perfect for entertaining or relaxing, and the fenced garden adds an element of security and privacy. While the area may present some challenges, such as average mobile and broadband signals and a higher council tax bracket, the potential for creating cherished family memories in this charming home outweighs these concerns.
Experience a taste of countryside living—schedule your viewing to seize this opportunity before it’s gone!
4 bedroom detached house for sale in Ridgebrook, Kirkhill, Inverness, IV5 — £300,000 • 4 bed • 2 bath
4 bedroom detached house for sale in FoxHole, Beauly, IV4 — £450,000 • 4 bed • 1 bath • 2612 ft²
4 bedroom detached house for sale in Seabhac, Kiltarlity, Beauly, IV4 — £600,000 • 4 bed • 2 bath • 4121 ft²
4 bedroom detached house for sale in 7 Upper Slackbuie, Slackbuie, Inverness. IV2 6BY, IV2 — £665,000 • 4 bed • 4 bath • 3562 ft²
3 bedroom detached house for sale in Burnside, Bunchrew, Inverness, IV3 — £315,000 • 3 bed • 2 bath • 1837 ft²
4 bedroom detached bungalow for sale in Stenigar, Inverness, IV3 8RL, IV3 — £600,000 • 4 bed • 2 bath • 2164 ft²


































































































