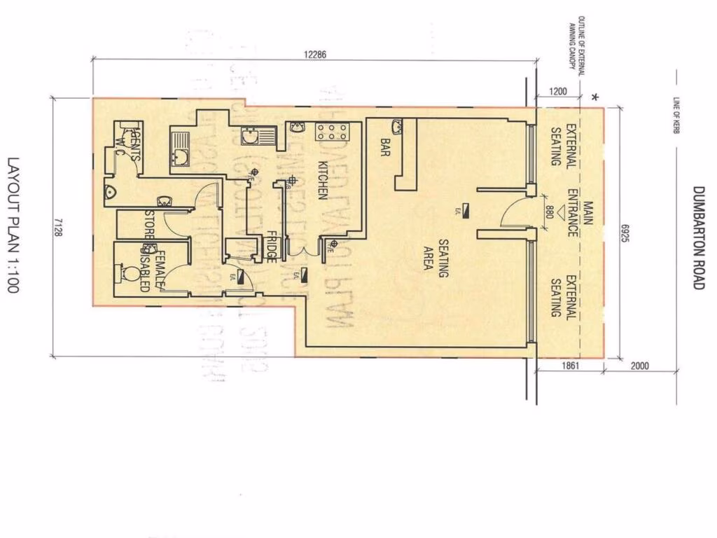
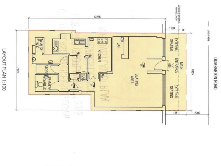
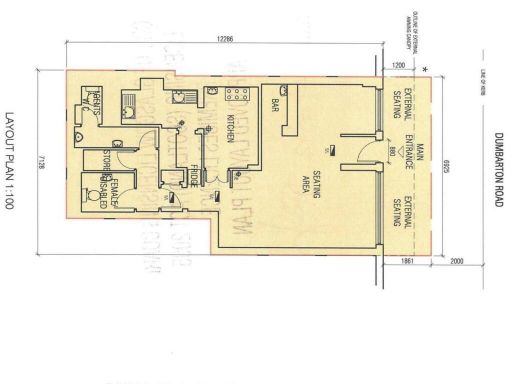
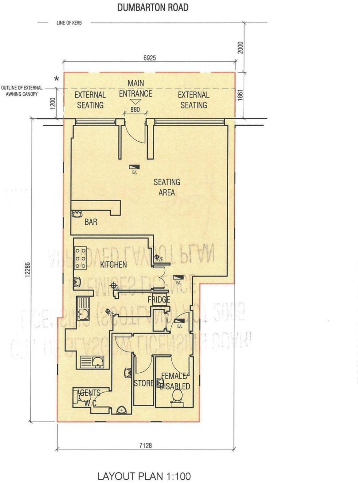
**Key Features:**
- Prime location on Dumbarton Road, West End of Glasgow
- Fully equipped commercial kitchen with extraction system
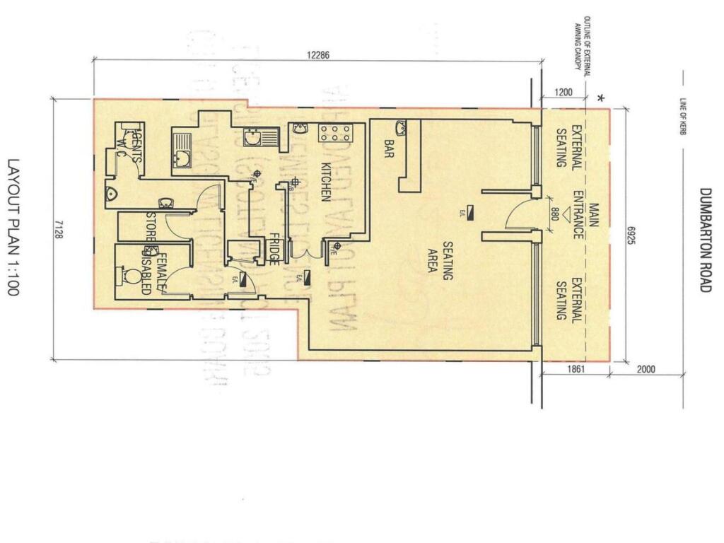
- Licensed premises with outdoor seating for 10
- Spacious capacity for approximately 30 covers indoors
- High visibility from street-level foot traffic
- EPC Rating: E
- Leasehold property with potential for various cuisines
- Competitive rental price of £20,000
Situated in the vibrant West End of Glasgow, this ground-floor restaurant, Bibi's, offers an exciting opportunity for an ambitious tenant to capitalize on its prime location and established presence. With a welcoming dining area bathed in natural light from large windows and adorned with characterful rustic decor, the venue is designed for comfort and community engagement. Its recently vacant status means that with some energetic rejuvenation, this space could return to its previous success or even expand into new culinary concepts.
The high foot traffic from surrounding cafes, bars, and the close proximity to Glasgow University, makes it an ideal spot for attracting students and local residents alike. Additionally, the property's fully equipped kitchen and licensing mean you're ready to hit the ground running, avoiding costly renovations or delays. However, it should be noted that the property is situated in an area marked by high deprivation, which may influence the target customer base.
With the current owner's focus shifting away from this business, there's a unique opportunity here for a new operator to step in and take Bibi's to new heights. Do not miss out on this chance to secure a promising lease in a sought-after neighborhood—properties like this are rare and tend to go fast!
Restaurant for sale in Roastits, 450 Dumbarton Rd, Glasgow, G11 6SE, G11 — £35,000 • 1 bed • 1 bath
Restaurant for sale in 8 Ruthven Lane, Glasgow, G12 9BG, G12 — POA • 1 bed • 1 bath
Restaurant for sale in 102 Dumbarton Road, Glasgow G11 6NX, G11 — £225,000 • 1 bed • 1 bath
Restaurant for sale in Gallowgate, Glasgow , Glasgow, G40 — £5,500 • 1 bed • 1 bath
Restaurant for sale in Bar Soba, 79 Albion Street
Merchant City, Glasgow, G1 1NY, G1 — POA • 1 bed • 1 bath • 6321 ft²
Restaurant for sale in Great Western Road, Glasgow, G12 — £595,000 • 1 bed • 1 bath • 6035 ft²






































