G1 1NY - Restaurant for sale in Bar Soba, 79 Albion Street Merchant…

View on Property Piper

Restaurant for sale in Bar Soba, 79 Albion Street Merchant City, Glasgow, G1 1NY, G1

Summary - 79, ALBION STREET G1 1NY

1 bed 1 bath Restaurant

**Standout Features:**
- Prime location within vibrant Merchant City, Glasgow
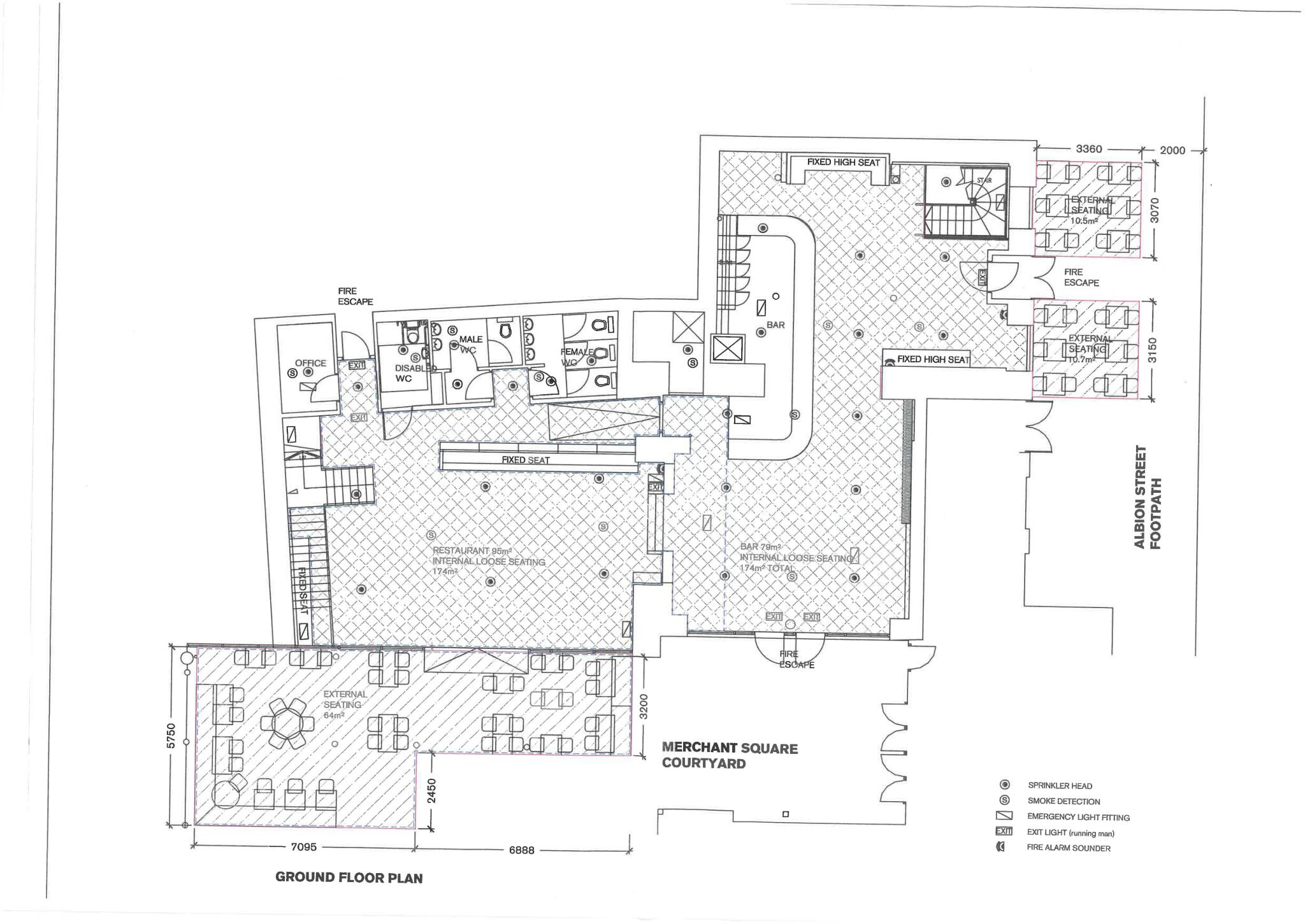
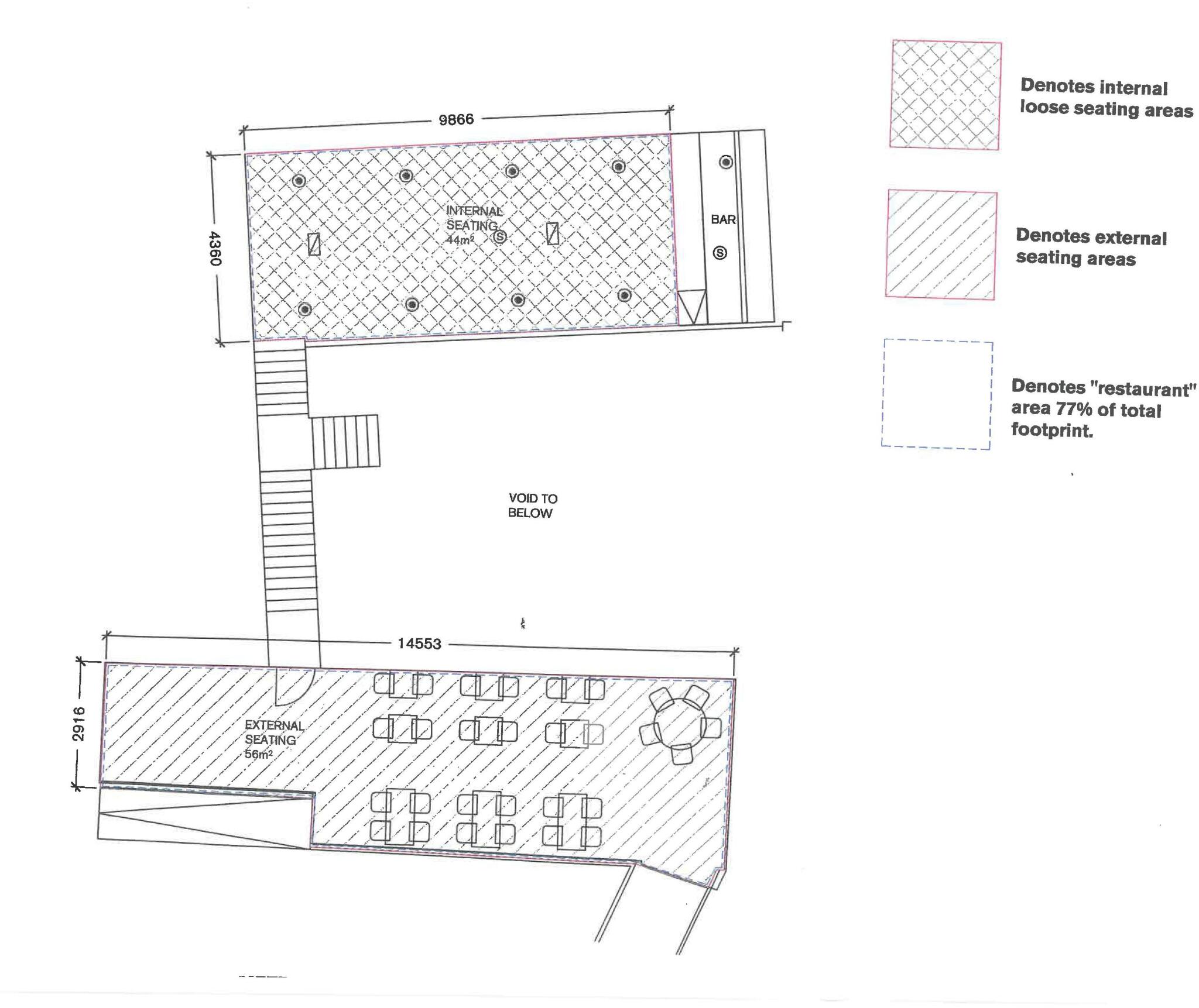
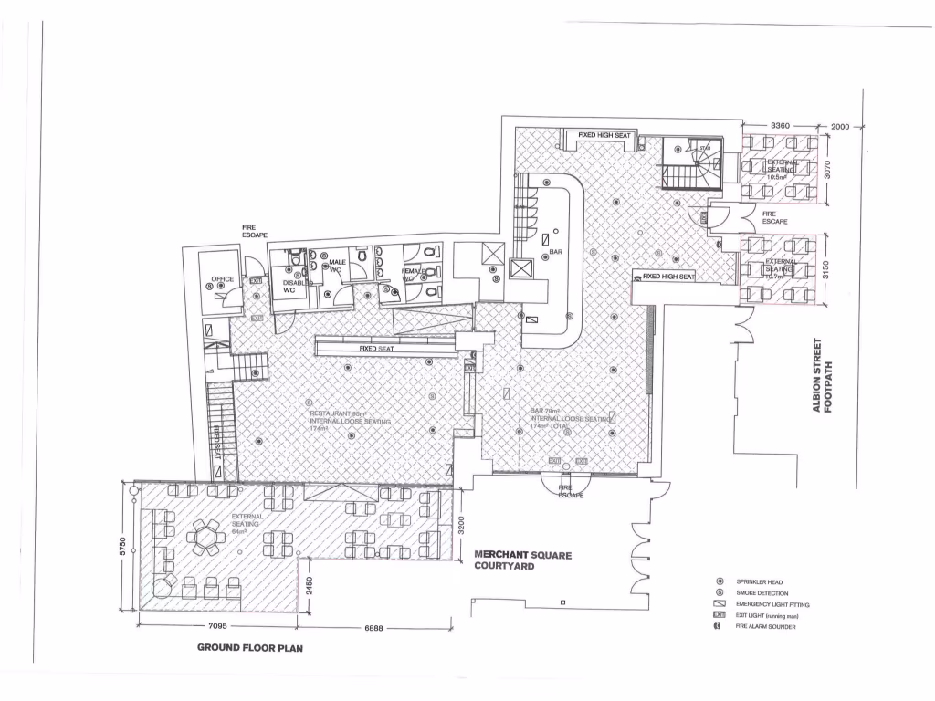
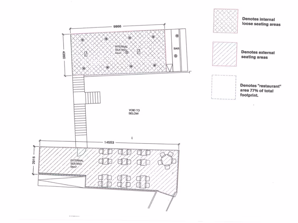
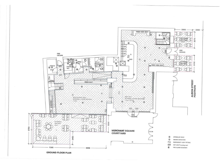
- Total area of 6,321 sq.ft with a 200-cover capacity
- Turnkey condition ready for immediate operation
- Fully fitted commercial kitchen in the basement
- Versatile layout suitable for various dining concepts
- Includes a premises license and existing fixtures and fittings
- Outdoor seating with a popular indoor terrace

**Potential Concerns:**
- Annual rent of £100,000 might be a consideration for ongoing costs
- Energy rating of G indicating potential for improvements
- Leasehold status with 10 years remaining, which might impact financing options

**Summary:**
Unlock the potential of this spacious 6,321 sq.ft restaurant located in the bustling Merchant City area of Glasgow, known for its lively dining and entertainment scene. With a capacity of 200 covers, this venue is perfect for hosting large events and gatherings, complete with an integral commercial kitchen and stylish indoor and outdoor seating areas. The location benefits from on-street parking and is within walking distance from key transport links, making it easily accessible to diners and guests alike.

This business opportunity is particularly appealing for a hands-on owner-operator looking to capitalize on its turnkey condition, allowing for immediate trade without refurbishment delays. While the annual rent stands at £100,000, and the premises holds an energy rating of G, the area’s vibrant community promises a steady stream of customers, especially in light of ongoing developments in the vicinity, including the £300 million Candleriggs Square project. Whether you are looking to delve into the culinary industry or expand an existing portfolio, this established venue offers the flexibility to explore new dining concepts in a thriving urban location. Don’t miss your chance to be part of Glasgow’s flourishing hospitality scene!

Property Details

Brochure Descriptions

Image Descriptions

Floorplan Description

Rooms

Textual Property Features

Detected Visual Features

Nearest Bars And Restaurants

,,,,}

Nearest General Shops

,,}

Nearest Grocery shops

,,}

Nearest Supermarkets

,,}

Nearest Religious buildings

,,}

Nearest Medical buildings

,,,}

Nearest Airports

,}

Nearest Leisure Facilities

,,,,}

Nearest Tourist attractions

,,}

Nearest Train stations

,,,,}

Nearest Bus stations and stops

,,,,}

Nearest Hotels

,,}

Tags

Local Market Stats

AirBnB Data

Similar Properties

Meta

High Res Images

Compatible Images

Low res Images

Thumbnails

Raw Images

High Res Floorplan Images

Compatible Floorplan Images

Low res Floorplan Images

FloorplanImages Thumbnail

Raw Floorplan Images