**Standout Features:**
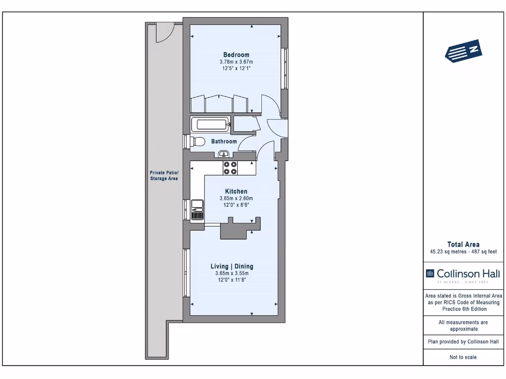
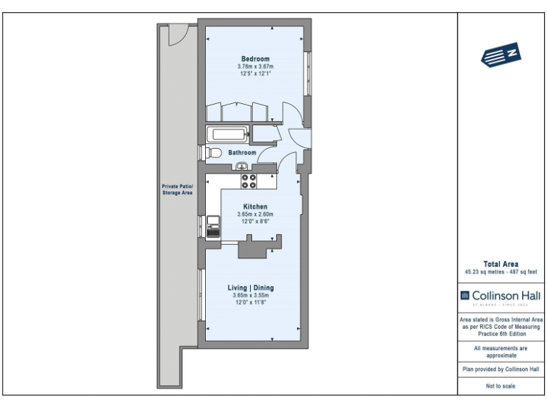
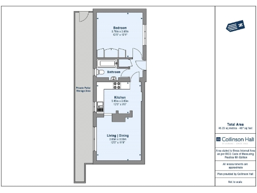
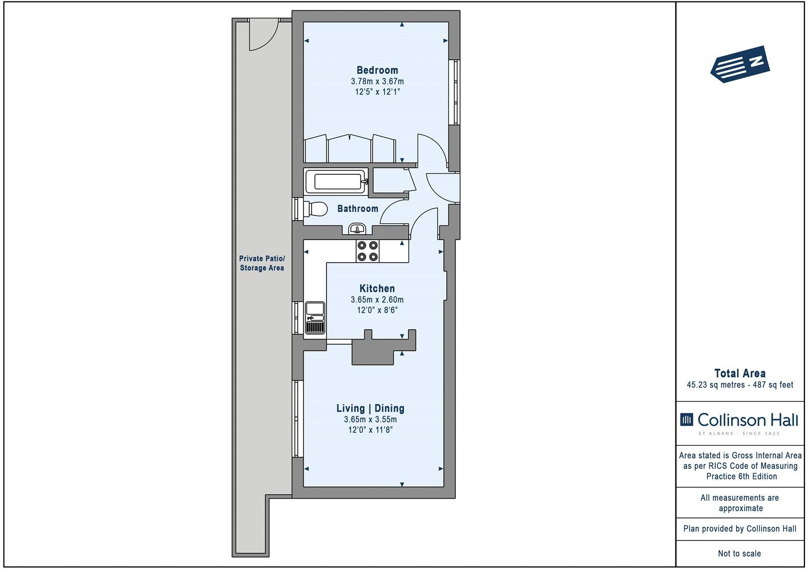
- Spacious 1-bedroom flat with approximately 487 square feet of living space.
- Modern, bright interior including a generous lounge and double bedroom.
- Private outdoor space with a secluded patio and dedicated parking.
- Share of freehold with an active, maintenance-conscious resident community.
- Conveniently located near St. Albans mainline station and amenities.
**Potential Concerns:**
- High crime rate in the area (Very High).
- Solid brick walls with no insulation (assumed).
Discover this charming Edwardian-style flat, beautifully converted in a character-rich environment close to St. Albans mainline station and recreational areas such as Clarence Park. Ideal for first-time buyers or couples, the space includes an airy living room, a sizable double bedroom, and a well-positioned kitchen with breakfasting area. Make the most of your own private outdoor patio and a dedicated off-street parking space—perfect for lounging or light gardening.
Although the property comes with the advantage of shared freehold and well-maintained communal areas, potential buyers should take note of the area's high crime rate. The solid brick walls, a historic charm, come with no insulation (assumed), which may require attention. This flat offers a unique blend of convenience, character, and potential for the perfect starter home—act quickly to seize this opportunity in a sought-after neighborhood!
1 bedroom flat for sale in Hatfield Road, St. Albans, Hertfordshire, AL1 — £280,000 • 1 bed • 1 bath • 467 ft²
1 bedroom flat for sale in Camp Road, St. Albans, AL1 5EA, AL1 — £290,000 • 1 bed • 1 bath • 431 ft²
1 bedroom flat for sale in Sutton Road, St. Albans, Hertfordshire, AL1 — £315,000 • 1 bed • 1 bath • 500 ft²
1 bedroom flat for sale in Chequer Street, St. Albans, Hertfordshire, AL1 — £315,000 • 1 bed • 1 bath • 507 ft²
2 bedroom flat for sale in Lichfield Place, Lemsford Road, St. Albans, Hertfordshire, AL1 — £400,000 • 2 bed • 2 bath • 800 ft²
1 bedroom flat for sale in Westminster Court, St Albans, Herts, AL1 — £280,000 • 1 bed • 1 bath • 533 ft²














































