**Standout Features:**
- First-floor maisonette in a characterful cul-de-sac
- Bright lounge/dining room with ample natural light
- Modern kitchen with a range of appliance space
- Spacious double bedroom with storage
- Long lease remaining (978 years)
- Off-street parking available
- Close proximity to city center, parks, and amenities
**Concerns:**
- High local crime rate
- No cavity wall insulation assumed
- Economy 7 heating may need review for energy efficiency
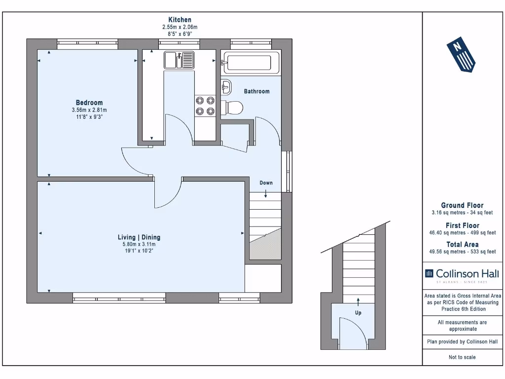
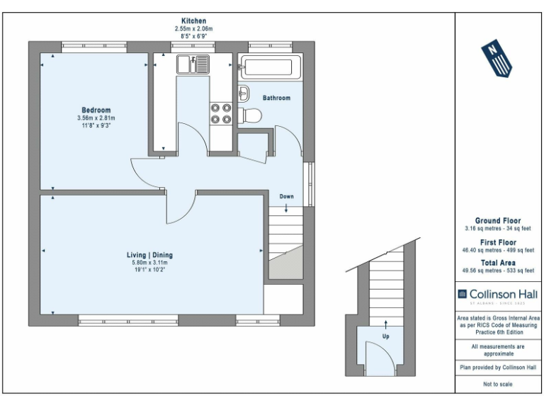
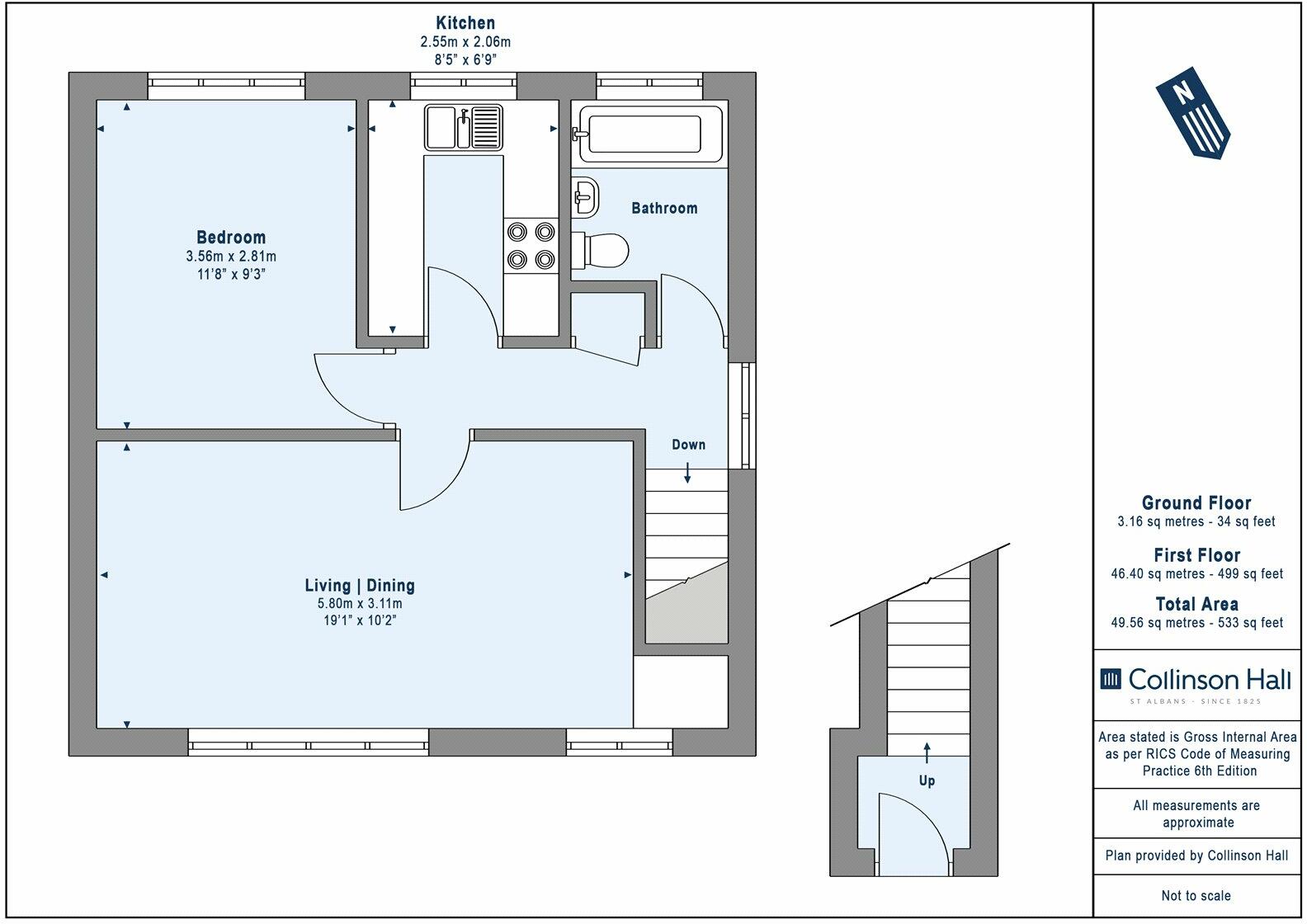
This beautifully presented first-floor maisonette offers a perfect blend of comfort and convenience for first-time buyers or investors. Nestled in a popular cul-de-sac, it boasts a bright and inviting lounge/dining area that invites relaxation and entertaining. The well-maintained modern kitchen provides practicality with space for all your appliances, while the spacious double bedroom features ample storage—ideal for cozy living.
With a long lease of 978 years and off-street parking, this property represents a fantastic investment in a highly qualified professional area. You’ll be within walking distance of the vibrant city center, lush Verulamium Park, and local amenities, ensuring a lifestyle of leisure and accessibility.
However, please note the property's high local crime rate and the assumption of no cavity wall insulation, which may affect energy costs. Don’t miss this opportunity to own a piece of tranquil urban living—properties like this don’t last long!
2 bedroom maisonette for sale in Westminster Court, St. Albans, AL1 2DX, AL1 — £385,000 • 2 bed • 1 bath • 361 ft²
1 bedroom maisonette for sale in Blueberry Close, St. Albans, AL3 6NH, AL3 — £265,000 • 1 bed • 1 bath • 529 ft²
2 bedroom flat for sale in Westminster Court, St. Albans, Hertfordshire, AL1 — £385,000 • 2 bed • 1 bath • 721 ft²
1 bedroom flat for sale in Grosvenor Road, St. Albans, Hertfordshire, AL1 — £290,000 • 1 bed • 1 bath • 555 ft²
2 bedroom maisonette for sale in Springfield Road, St. Albans, AL1 5LY, AL1 — £300,000 • 2 bed • 1 bath • 589 ft²
2 bedroom maisonette for sale in Dellfield, St. Albans, AL1 — £400,000 • 2 bed • 1 bath • 553 ft²


































