Four-bedroom detached home with large plot and renovation potential near Saffron Walden.
Large, private mature gardens and raised rear terrace
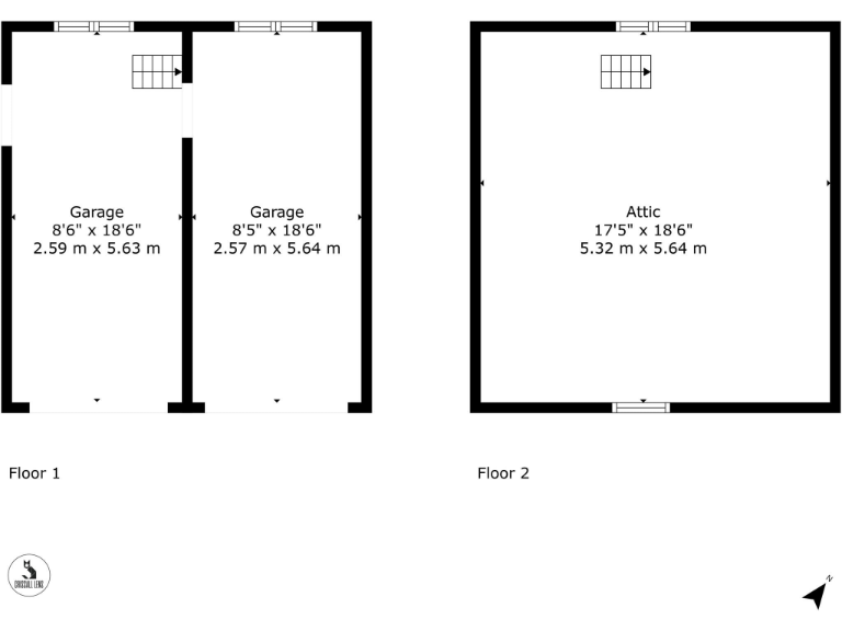
Apple Tree House is a spacious four‑bedroom detached home set on a large, private plot in the popular village of Ashdon. The house offers generous, well‑proportioned rooms including a sitting room with open fireplace, separate dining room, snug/family room, and a large kitchen/breakfast room opening to a raised terrace and mature gardens. A master bedroom suite plus three further bedrooms and attic/loft accommodation above the double garage add flexible family space.
The property was built in 1988 to a substantial standard and presents period styling externally with sash‑style windows and high ceilings internally. It now requires internal modernisation and cosmetic updating throughout, which provides clear scope to reconfigure, extend or improve finishes to suit contemporary tastes. An oil-fired boiler serves the house.
Practical advantages include large off‑street parking, double garage with loft room, good broadband speeds, very low local crime and proximity to Ashdon village amenities and highly regarded local primary schools. Travel links to Saffron Walden, Audley End station and the M11 are convenient for commuting.
Notable negatives are the need for renovation, an oil heating system rather than mains gas, an identified medium flood risk in the area and an expensive council tax band. Buyers should budget for updating and any flood‑mitigation measures when considering renovation or extension plans.
4 bedroom detached house for sale in Kates Lane, Ashdon, CB10 — £725,000 • 4 bed • 2 bath • 1830 ft²
5 bedroom detached house for sale in Walden Road, Ashdon, CB10 — £995,000 • 5 bed • 3 bath • 2557 ft²
3 bedroom semi-detached house for sale in Church End, Ashdon, Saffron Walden, CB10 — £525,000 • 3 bed • 1 bath • 1374 ft²
4 bedroom detached house for sale in Church End, Ashdon, Saffron Walden, CB10 — £800,000 • 4 bed • 3 bath • 1654 ft²
4 bedroom detached house for sale in Radwinter Road, Ashdon, Saffron Walden, CB10 — £800,000 • 4 bed • 3 bath • 1624 ft²
4 bedroom detached house for sale in Steventon End, Ashdon, Saffron Walden, CB10 — £1,000,000 • 4 bed • 2 bath • 2788 ft²














































































