High-spec apartment with concierge and strong rental potential near major transport links.
Private balcony with panoramic city views
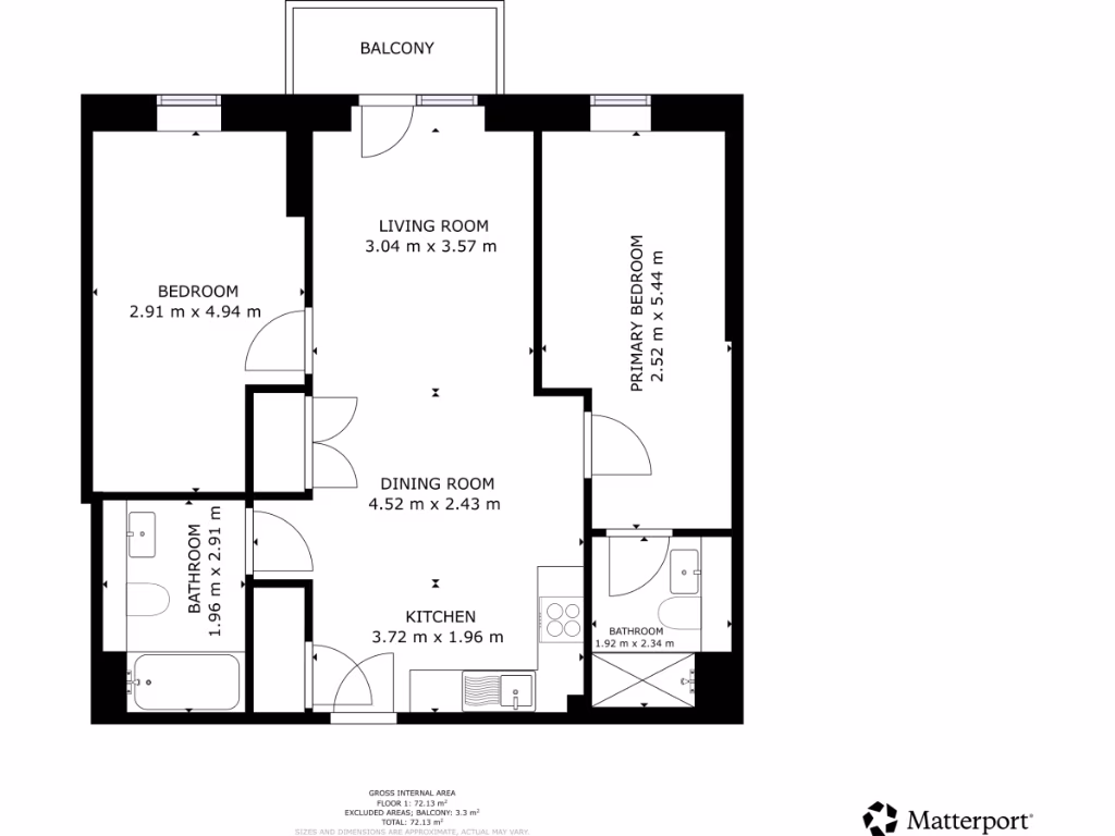
Set on the 13th floor of a 2021 development, this two-bedroom apartment delivers striking city views and a private balcony from a bright open-plan living space. The modern integrated kitchen, floor-to-ceiling windows and a master en suite create a high-spec, low-maintenance living environment suited to city professionals or buy-to-let investors.
Residents benefit from 24-hour concierge, gym and communal lounge, secure fob entry and lift access, plus excellent transport links to Deansgate and Manchester Victoria. At 776 sq ft, the apartment is a comfortable size for two occupants, with fast broadband and very low local crime supporting lettability in this cosmopolitan student neighbourhood.
Buyers should note the running costs: an annualised service charge around £2,853.54 and a ground rent of £698.02. Heating relies on electric room heaters, which can increase energy bills compared with gas-heated properties. EPC C and council tax band D are mid-range but worth factoring into yield calculations.
The lease is long (approx. 242 years remaining), and the building’s recent construction reduces immediate maintenance risk. The flat offers strong short- or long-term rental potential given its central location and on-site amenities, balanced against management fees and energy running costs.
2 bedroom apartment for sale in New Kings Head Yard, Salford, M3 7GL, M3 — £275,000 • 2 bed • 2 bath • 678 ft²
2 bedroom apartment for sale in Exchange Point, 3 New Kings Head Yard, SALFORD, M3 — £320,000 • 2 bed • 1 bath • 720 ft²
1 bedroom apartment for sale in New Kings Head Yard, Salford, Greater Manchester, M3 — £210,000 • 1 bed • 1 bath • 466 ft²
2 bedroom apartment for sale in Local Crescent, M5 — £259,950 • 2 bed • 2 bath • 710 ft²
2 bedroom apartment for sale in Apt 411 Castlegate, 2 Chester Road, Manchester, M15 — £290,000 • 2 bed • 2 bath • 767 ft²
2 bedroom apartment for sale in Dearmans Place, Salford, M3 — £245,000 • 2 bed • 2 bath • 786 ft²


















































