Renovated two-bedroom cottage with parking and village green views, chain free.
Direct views over village cricket green and historic church
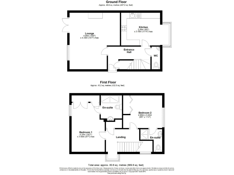
Set just off Chobham High Street, this two-bedroom semi-detached cottage offers village-centre living with direct views over the cricket green and historic church. Built in 1994 and recently renovated, the home benefits from a new kitchen, bathrooms and a new gas combi boiler — ready to move into without major works. The layout is compact and well planned across two floors, totalling about 869 sq ft, with two en-suite bedrooms ideal for flexible use or guests.
Outside there are two private, off-street parking spaces in the front courtyard and a part-walled rear garden with terrace and lawn that opens to the village green. The garden and small plot are well maintained but modest in size, suited to buyers who prioritise location and low garden maintenance rather than expansive grounds. Broadband speeds are average, though mobile signal is excellent.
Practical points to note: the property is freehold and offered chain free, making for a straightforward purchase if timing is important. Council tax is described as expensive, and the plot is small compared with larger suburban gardens — factors to weigh if running costs or outdoor space are key. Overall, this is a convenient, low-maintenance village home for someone seeking an attractive central location with immediate access to shops, pubs and well-regarded schools.
2 bedroom terraced house for sale in Chobham, Surrey, GU24 — £525,000 • 2 bed • 2 bath • 830 ft²
3 bedroom cottage for sale in Central Chobham Village, Surrey, GU24 — £525,000 • 3 bed • 1 bath • 1012 ft²
3 bedroom semi-detached house for sale in Station Road, Chobham, Woking, GU24 — £475,000 • 3 bed • 1 bath • 965 ft²
2 bedroom terraced house for sale in The Common, Cranleigh, GU6 — £425,000 • 2 bed • 1 bath • 975 ft²
2 bedroom terraced house for sale in Oakland Terrace, Hartley Wintney, Hook, Hampshire, RG27 — £425,000 • 2 bed • 1 bath • 733 ft²
2 bedroom detached house for sale in Scotts Grove Road, Chobham, Woking, GU24 — £500,000 • 2 bed • 1 bath • 907 ft²






























































































