Characterful 2-bed village cottage with garden and cricket-green views, ideal for downsizers..
- Two double bedrooms with high ceilings and period sash windows
- Views directly over the historic cricket green
- Refitted bathroom; country-style kitchen and rear utility/wc
- Private rear garden and small front garden
- Solid brick walls likely lack cavity insulation
- Medium flooding risk in the area
- Above-average local crime levels reported
- Modest plot size; suited to downsizers or couples
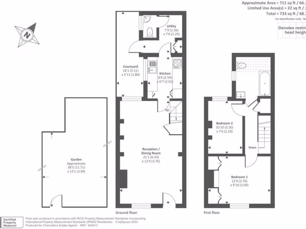
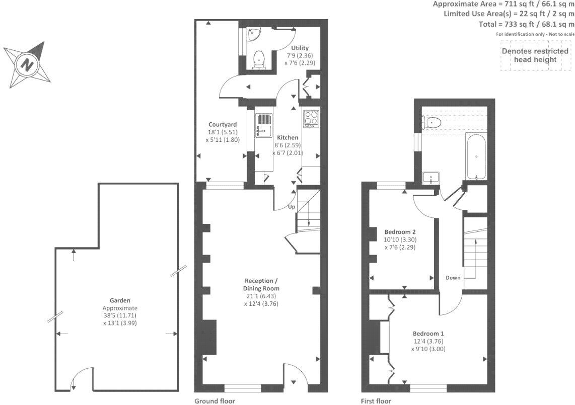
A charming two-bedroom Victorian terrace overlooking Hartley Wintney’s historic cricket green, this cottage blends period character with practical living. High ceilings, sash windows, exposed floorboards and a working fireplace create a warm village feel, while a refitted bathroom and country-style kitchen provide everyday convenience.
Outside, the property has a private rear garden and a small fenced front garden. The house sits on a modest plot typical of early 20th-century mid-terrace stock; the layout and garden are well suited to downsizers or a couple seeking low-maintenance village life close to shops and green spaces.
Buyers should note a medium flooding risk for the area and above-average local crime levels. The walls are original solid brick and assumed to lack modern cavity insulation, which may affect heating costs despite gas central heating and radiators. The house is an attractive period home but may require targeted upgrading (insulation, glazing specification) to improve energy performance.
Positioned within easy reach of local amenities, primary schools rated Good, and mainline rail links a short drive away, this property offers rare village living. It will suit purchasers who value character and location and are comfortable with the maintenance expectations of an older mid-terrace home.
2 bedroom end of terrace house for sale in Mildmay Terrace, Hartley Wintney, RG27 — £435,000 • 2 bed • 1 bath • 7545 ft²
2 bedroom detached house for sale in Park Corner Road, Hartley Wintney, RG27 — £450,000 • 2 bed • 1 bath • 678 ft²
2 bedroom cottage for sale in Hunts Cottages, Hunts Common, Hartley Wintney, RG27 — £380,000 • 2 bed • 1 bath • 400 ft²
3 bedroom end of terrace house for sale in Mildmay Terrace, Hartley Wintney, Hampshire, RG27 — £450,000 • 3 bed • 1 bath • 905 ft²
3 bedroom semi-detached house for sale in Parkside Cottages, The Green, Farnham, Surrey, GU9 — £675,000 • 3 bed • 1 bath • 1300 ft²
4 bedroom detached house for sale in Cricket Green Lane, Hartley Wintney, Hampshire, RG27 — £1,250,000 • 4 bed • 2 bath • 1865 ft²














































































































































