**Standout Features:**
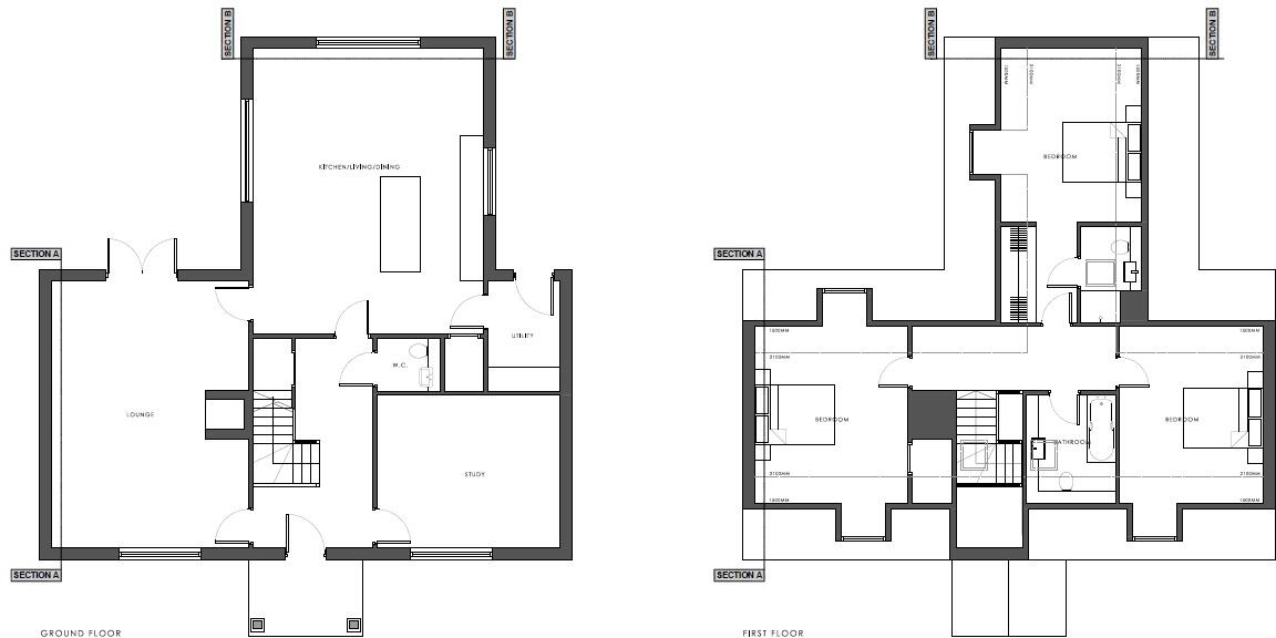
- Full planning permission for two detached homes (one 3-bed, one 2-bed)
- Generous 0.43-acre plots situated opposite the church
- Located in the desirable village of Donington-on-Bain with local amenities nearby
- Ideal for developers or investors with potential rental yield
**Concise Summary:**
Seize this exceptional opportunity to invest in two spacious building plots located in the charming village of Donington-on-Bain. Each plot comes with full planning permission (Ref: N/042/01395/23) to construct a detached either 2-bedroom or 3-bedroom home, perfectly tailored for modern living. The generous 0.43-acre site benefits from a prime location opposite a historic church, offering tranquility and picturesque views.
With a new price to assist buyers with archaeological dig costs, it’s a perfect time for developers looking to capitalize on this rare offering. The village boasts local amenities such as shops, pubs, and excellent schools, all while being within easy reach of Louth and major road networks. While the property comes with some requirements for future archaeological evaluations, it holds great potential for significant return on investment. Don’t miss this rare chance to create your dream homes in a peaceful and community-oriented locale!
Land for sale in Plot 2, Chapel Lane, Donington-on-bain, LN11 — £125,000 • 1 bed • 1 bath • 10019 ft²
Land for sale in Plot 1, Main Road, Donington-on-bain, LN11 — £100,000 • 1 bed • 1 bath • 8712 ft²
Land for sale in Building Plot, Linwood Road. Market Rasen., LN8 — £115,000 • 1 bed • 1 bath • 6534 ft²
Detached house for sale in 154 Horncastle Road Louth LN11 9QT, LN11 — £150,000 • 1 bed • 1 bath
Land for sale in Church Lane, Alvingham LN11 0QD, LN11 — £125,000 • 1 bed • 1 bath
Plot for sale in East Road, Tetford, LN9 — £130,000 • 4 bed • 1 bath • 2422 ft²






















































